ІНТЕР’ЄР ДОМУ В С. ІВАНКОВИЧІ У КИЇВСЬКІЙ ОБЛАСТІ
Власний будинок - це свобода дій та максимальна автономність. В таких забудовах ви не відчуваєте незручність через галас сусідів або шуму під вікнами, чужий ремонт тощо. Також немає ризиків псування майна через помилки інших людей - потопи, проблемі в роботі енергетики. У власному будинку ви самі плануєте всі технічні аспекти свого ремонту. Немає потреби погоджувати із сусідами час робіт, отримувати дозволи на перепланування тощо.
Достатньо знайти компетентного в галузі розробки проектів та їх реалізації дизайнера інтер'єрів. Довірившись від самого початку талановитому фахівцеві ви отримаєте придатний для комфортного життя інтер'єр дому.
Будуть втілені саме ті рішення, які закривають потреби вашої родини та особисто вас. Мова йде про розподіл простору, вибір кольорів, меблів, декору, фактур тощо.
Достатньо знайти компетентного в галузі розробки проектів та їх реалізації дизайнера інтер'єрів. Довірившись від самого початку талановитому фахівцеві ви отримаєте придатний для комфортного життя інтер'єр дому.
Будуть втілені саме ті рішення, які закривають потреби вашої родини та особисто вас. Мова йде про розподіл простору, вибір кольорів, меблів, декору, фактур тощо.
Дизайнер інтер'єрів вислухавши ваші побажання, ознайомившись з об'єктом та врахувавши фінансові можливості розробить детальний план дизайну. Повний та правильно складений дизайн проєкт - це не лише 3Д візуалізації.
Це тека з понад 20-ти креслень, в яких зібрано всю інформацію стосовно:
Це тека з понад 20-ти креслень, в яких зібрано всю інформацію стосовно:
- планувальних рішень кожної кімнати через схеми, плани, креслення - можна побачити не лише розміщення дверей, але й меблів у відповідних реальним розмірам кімнати масштабах;
- 3Д візуалізації - розроблені відповідно до креслень та розмірів кімнати, орієнтовані саме на ваші побажання та потреби;
- всю технічну документацію - в ній відображено, як саме досягнути рішень з візуалізацій через правильну послідовність та ремонтні процеси;
- Інформація, стосовно обраного оздоблення, меблів, декору, освітлення, впроваджених інновацій тощо.
В компанії Бєлік розробляють інтер'єр дому, який стає затишною оселею на довгі роки. Оформлюватися просторі об'єкти в один, два та три поверхи можуть максимально по-різному. Все залежить від запиту клієнта. Прикладом зручного, гармонійного та сучасного дизайну слід вважати будинок у с. Іванковичі.
З першого погляду інтер'єр дому виглядає цілісним та затишним. При цьому кожне рішення направлено на покращення рівня життя та створення максимально комфортних умов для кожного члена родини. В такій оселі зручно бути з дітьми, працювати віддалено, приймати компанію друзів та навіть залишати на ночівлю родичів.
З першого погляду інтер'єр дому виглядає цілісним та затишним. При цьому кожне рішення направлено на покращення рівня життя та створення максимально комфортних умов для кожного члена родини. В такій оселі зручно бути з дітьми, працювати віддалено, приймати компанію друзів та навіть залишати на ночівлю родичів.
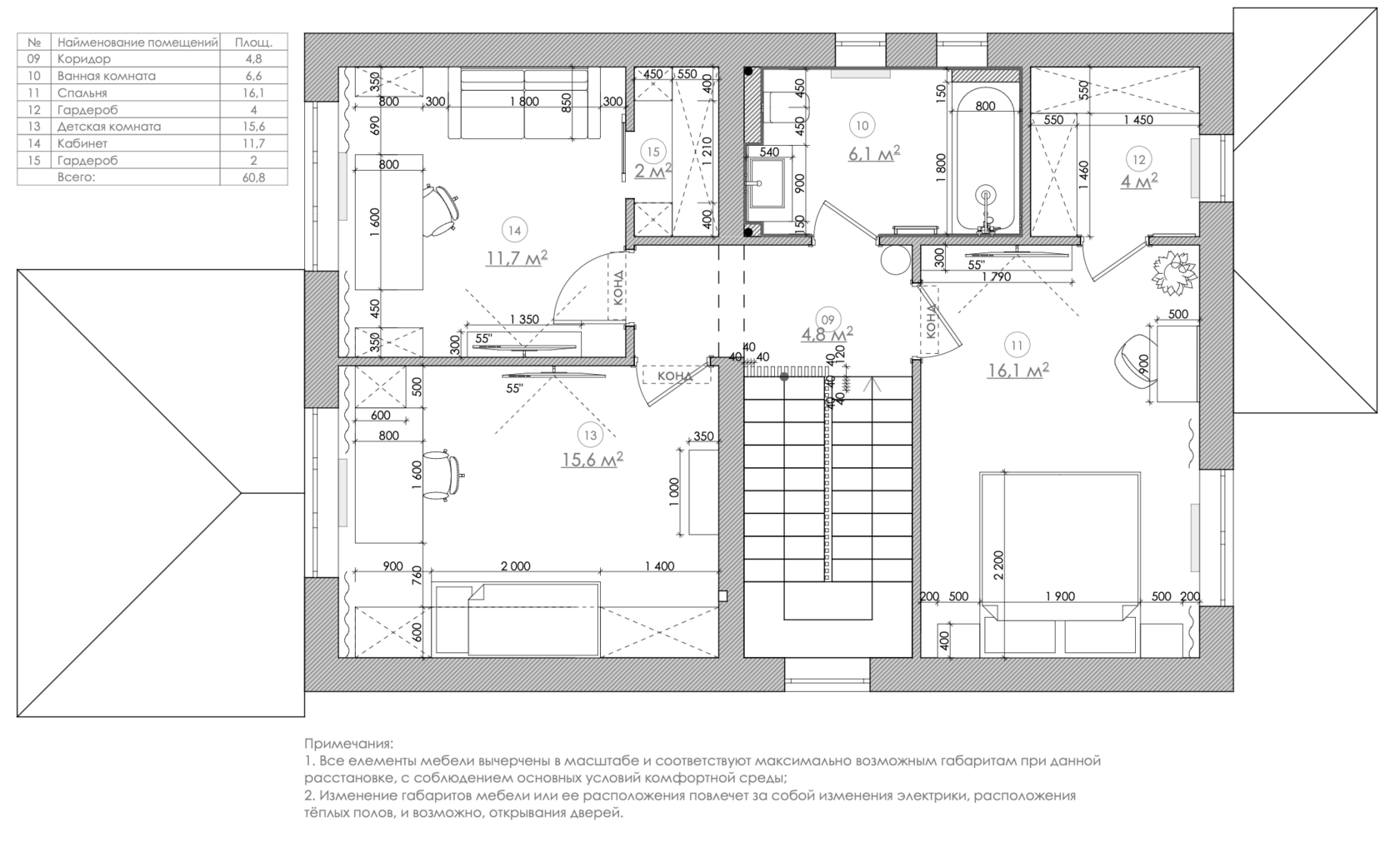
Інтер'єр дому в с. Іванковичі - особливості планування
Дизайн та ремонт цього будинку максимально пристосований для тривалого проживання всієї родини. Забудова у два поверхи має вдосталь місця для родини з дітьми та домашніми улюбленцями. Присутні кімнати, в яких можуть розміститися гості із ночівлею. Зроблено робочий кабінет, окремі дитячі, спальня, кілька гардеробних та санвузлів.
Будинок не вважається дуже великим. Приблизно 120 м2, але в ньому є все необхідне. Ремонт планувався таким чином, щоб нічого через роки не викликало дискомфорту.
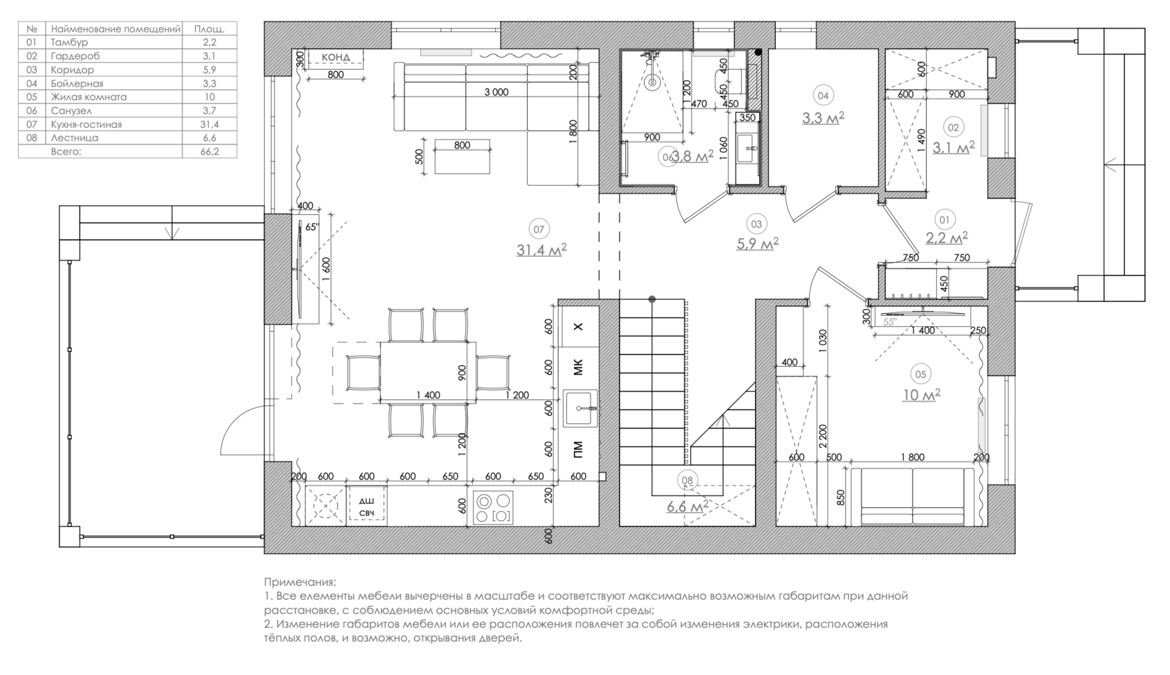
Перший поверх розраховано на приймання гостей та проведення часу із родиною. Була зроблена велика кухня-вітальня з затишною зоною столової. Також вдалося розмістити кабінет, який цілком виконує функцію гостьової кімнати. Санвузол, бойлерна, гардеробна - всі ці приміщення виконують необхідні в побуті функції.
Завдяки гардеробний уникнемо розташування шаф та корпусних меблів по всій оселі. Виключення - лише кухонний гарнітур, який виконано вздовж стіни максимально якісно. Інші габаритні конструкції не крадуть простір в будинку.
Бойлерна виступає технічним приміщенням. Дозволяє розмістити всередині весь садівничий та домовий інвентар, побутову техніку для прибирання та інше. Полиці мають різні розміри, тому всередині вийшло змістити все - від побутової хімії до невеликої техніки.
Бойлерна виступає технічним приміщенням. Дозволяє розмістити всередині весь садівничий та домовий інвентар, побутову техніку для прибирання та інше. Полиці мають різні розміри, тому всередині вийшло змістити все - від побутової хімії до невеликої техніки.
Відсутність шаф дозволило зробити кімнату-студію максимально функціональної:
Сходи було виконано під замовлення, за індивідуальними розмірами та відповідні конкретним вимогам. Вони мають підсвічування та зручний тип монтажу. Дітям та дорослим зручно, а головне безпечно пересуватися ними. Виконані з дерева. Присутні також вертикальні дерев'яні панелі, які захищають від падіння та виглядають дуже естетично.
- кухня - багато місця для приготування їжі, використання сучасної техніки, зберігання посуду та інвентарю;
- столова - великий стіл (розкладний) для приймання гостей та вечерь всією родиною;
- вітальня - дуже простора та містка, з окремими зонами для ігор з дітьми, читання книг або перегляду ТВ.
Сходи було виконано під замовлення, за індивідуальними розмірами та відповідні конкретним вимогам. Вони мають підсвічування та зручний тип монтажу. Дітям та дорослим зручно, а головне безпечно пересуватися ними. Виконані з дерева. Присутні також вертикальні дерев'яні панелі, які захищають від падіння та виглядають дуже естетично.
Другий поверх зроблено в тій самій концепції. Гардеробні в кожній кімнаті (дитяча, спальня) тут заощаджують простір. Дозволяють уникнути великих шаф та зберігати все необхідне за дверима, не привертаючи уваги. Інтер'єр дому в с. Іванковичі на другому поверсі має ідентичні з першим кольори, концепцію, фактури, декор, текстиль та освітлювальні прилади.
Це продовження загальної ідеї. Не дивлячись на те, що на другому поверсі розташовані саме житлові кімнати. Створена затишна атмосфера в спальні та двох окремих дитячих. Дитячі мають більш яскраве та цікаве оформлення, з орієнтованістю на вік, стать та інтереси дитини.
Це продовження загальної ідеї. Не дивлячись на те, що на другому поверсі розташовані саме житлові кімнати. Створена затишна атмосфера в спальні та двох окремих дитячих. Дитячі мають більш яскраве та цікаве оформлення, з орієнтованістю на вік, стать та інтереси дитини.
Всі позиції для інтер'єра (меблі, оздоблення, декор, сантехніка, освітлювальні прилади) підібрано з орієнтованістю на показники якості, зносостійкості та естетики. Багато планувальних рішень орієнтоване саме на зручність та ергономіку. В такому будинку ви не заблукаєте. Кожна кімната має чіткі кордони, зручні розміри та розподіл простору.
Коридор, двері прихованого монтажу, функціональні зони, достатнє освітлення, конкретна концепція та безпека - все це було передбачено дизайнером інтер'єрної компанії Бєлік заздалегідь.
Коридор, двері прихованого монтажу, функціональні зони, достатнє освітлення, конкретна концепція та безпека - все це було передбачено дизайнером інтер'єрної компанії Бєлік заздалегідь.
Сучасний інтер'єр дома с. Іванковичі в кольорах та фактурах
Планування цього об'єкта можна вважати ергономічним та вдалим. Щоб не лише зручність, але і візуал дарував відчуття затишку, дизайнери інтер'єру відповідально поставилися до вибору стилю. Було обрано сучасну концепцію, з оригінальними рішеннями та якісними матеріалами. Замість штучності та нав'язливості, обирали природність. Вона відображена через спокій монохромні кольори (беж, білий, сірий), світлі фактури дерева та мармуру. Навіть акценти тут - це не яскраві меблі.
Диван, м'які крісла, пуфи, текстиль, килими, декоративні подушки виконані у схожій колористиці (світлий відтінок сірого, ніжний блакитний та т.п.). Саме правильно підібрані та скомбіновані фактури, кольори в оздобленні створюють атмосферу цілісності. Затишку також додають живі рослини в горщиках, необхідний в побуті декор (вази, аромасвічки, література) та картини, відповідаючи концепції.
Звернувшись до інтер’єрної студії Бєлік ви отримаєте унікальний та пристосований до життя інтер'єр дому. Кожне обране рішення - є зваженим та ефективним. Крім естетики та якості всі технічні моменти обов’язково враховуються, промірковуються та виконуються у кращому вигляді. Надається детальна інструкція у форматі дизайн проєкта, яка дозволяє отримати інтер'єр мрії.
При замовленні в нас ремонту та авторського нагляду за проектом ви отримаєте повну відповідність результату. Позбавите себе необхідності відвідувати об’єкт та постійно спілкуватися з виконавцями, контролювати кожний процес, розв'язувати спірні питання та виниклі проблеми.
При замовленні в нас ремонту та авторського нагляду за проектом ви отримаєте повну відповідність результату. Позбавите себе необхідності відвідувати об’єкт та постійно спілкуватися з виконавцями, контролювати кожний процес, розв'язувати спірні питання та виниклі проблеми.
Якщо ви плануєте створити подібний простір для життя, варто завчасно замовити дизайн проект. Саме на цьому етапі формується не лише візуальна концепція, а й продумується логіка проживання, розподіл зон, зручність переміщення та всі технічні рішення, які впливають на комфорт у будинку протягом багатьох років.
Грамотно розроблений проект ремонту квартири або приватного будинку дозволяє уникнути помилок ще до початку робіт. Уся послідовність процесів, вибір матеріалів, меблів і технічних рішень прописується заздалегідь, що значно спрощує реалізацію та гарантує прогнозований результат.
Грамотно розроблений проект ремонту квартири або приватного будинку дозволяє уникнути помилок ще до початку робіт. Уся послідовність процесів, вибір матеріалів, меблів і технічних рішень прописується заздалегідь, що значно спрощує реалізацію та гарантує прогнозований результат.
Завдяки проєктному підходу ви заздалегідь розумієте ціни на ремонт квартир, обсяги робіт і бюджет. Це особливо важливо для великих об’єктів, де навіть дрібні неточності можуть призвести до значних перевитрат або втрати якості.
Усі ремонти у квартирі або приватному будинку, які виконуються за дизайн-проєктами студії Бєлік, реалізуються з урахуванням авторського задуму, ергономіки та технічних норм. Саме тому готовий інтер’єр повністю відповідає візуалізаціям і не потребує доопрацювань після завершення робіт.
Усі ремонти у квартирі або приватному будинку, які виконуються за дизайн-проєктами студії Бєлік, реалізуються з урахуванням авторського задуму, ергономіки та технічних норм. Саме тому готовий інтер’єр повністю відповідає візуалізаціям і не потребує доопрацювань після завершення робіт.
Звернувшись до дизайн студії Бєлік, ви отримаєте не просто гарний інтер’єр дому, а продуманий житловий простір, адаптований під ваш спосіб життя, родину та потреби. Будинок у с. Іванковичі — яскравий приклад того, як професійний підхід дозволяє створити комфортну, затишну та функціональну оселю на довгі роки.
Подивіться нашу презентацію