ПРОЕКТ ОДНОКІМНАТНОЇ КВАРТИРИ ЖК РУСАНІВСЬКА ГАВАНЬ
Проект однокімнатної квартири - як все зробити правильно?
Однокімнатна квартира сьогодні може стати ідеальним стартом у самостійному житті, прихистком для молодого подружжя або одинаків. Залежно від потреб та запитів, невеликі об’єкти оформлюються зовсім по різному. Єдине, що їх об'єднує - це функціональність та лаконічність. Адже на 30-40 м2 не надто розженешся. Тут потрібно вмістити все необхідне - всі комунікації, інноваціі, меблі, сантехніку та техніку. Самостійно спланувати дизайн інтер'єру однокімнатної квартири майже неможливо.
Розставляння дивану та шафи вздовж стін не допоможуть у створенні сучасного та комфортного простору. Використовуючи досвід та професійний підхід можна заощадити кілька м2, використати по-максимуму навіть незручні ніші та комори, візуально додати простору, вмістити всі необхідні елементи та досягти максимального комфорту всередині. Якщо замовляти розробку дизайн проекту, то разом з усіма технічним та пральними рішеннями, стосовно облаштування житла, ви отримаєте персоналізований та орієнтований на ваші потреби інтер'єр.
В студії дизайн інтер'єрів Бєлік створюють унікальні та сучасні простори. Ви можете замовити оформлення однокімнатної квартири для себе, на продаж або під оренду. Розміститися всередині самі або всією родиною. Робітники інтер’єрного бюро допоможуть досягти поставленої мети та полегшити процес ремонту. Для цього достатньо замовити одну лише послугу - розробку дизайн проекту.
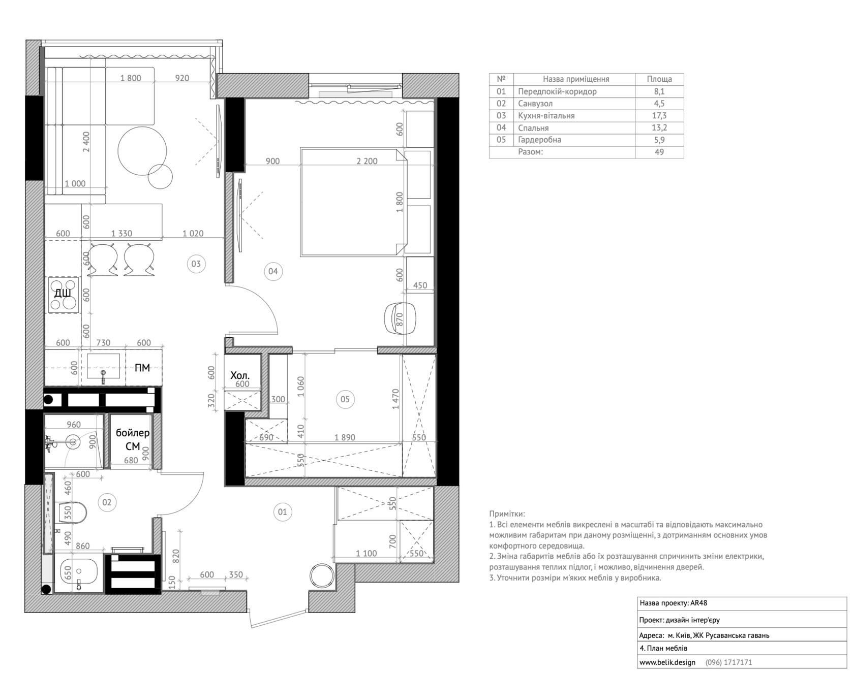
Саме проект однокімнатної квартири гарантує послідовний, якісний та поміркований до дрібниць ремонт. В ньому будуть відображені:
Дизайнери інтер'єрів виконують великий обсяг робіт для того, щоб процес реалізації всіх ідей минув якомога легше. Завдяки проекту ви уникнете переплат за помилки та не потрібні роботи (товари), затримок та невідповідності процесів, помилок та розчарувань.
Всі проекти розроблені інтер'єрною компанією Бєлік можна реалізувати на 100%. Підтвердженням цього є реальні приклади ремонтів, які виконувалися за нашою документацією. Особливий попит мають проекти для квартир в новобудовах (наприклад, Русанівська Гавань).
- всі планувальні рішення - через схеми, креслення, плани:
- вигляд майбутнього інтер’єр в дрібних деталях - через фотореалістичні 3Д візуалізації;
- прокладання всіх комунікацій та послідовність ремонтних процесів - через технічну документацію.
Дизайнери інтер'єрів виконують великий обсяг робіт для того, щоб процес реалізації всіх ідей минув якомога легше. Завдяки проекту ви уникнете переплат за помилки та не потрібні роботи (товари), затримок та невідповідності процесів, помилок та розчарувань.
Всі проекти розроблені інтер'єрною компанією Бєлік можна реалізувати на 100%. Підтвердженням цього є реальні приклади ремонтів, які виконувалися за нашою документацією. Особливий попит мають проекти для квартир в новобудовах (наприклад, Русанівська Гавань).
Особливості проектування однокімнатної квартири у Русанівська Гавань
Головна мета розробки дизайн проекту однокімнатної квартири - це максимально раціональне використання простору. Саме проєкт дозволяє створити інтер'єр кімнати, в якому комфортно знаходитися та зручно жити. Завдяки спланованому до дрібниць оформленню у квартирі будуть присутні всі необхідні меблі. Не потрібно буде ходити колами, щоб пройти на кухню або користуватися подовжувачами, для підключення ноутбука (техніки). Світло, опалення, доступ до мережі, зберігання речей, приготування їжі - ніщо не викликатиме проблем.
Упевнитися, що проект однокімнатної квартири відображатиме зручність та логічність всіх рішень максимально просто. Приклад однокімнатного об'єкта в Русанівська Гавань свідчить про це та дає чітке розуміння розумних рішень.
На такому об'єкті доцільним рішенням стало саме створення кімнати-студії. Вважаючи, що приміщення в ЖК здаються з вільним плануванням, така кімната має одразу кілька переваг.
Перша - це економія простору. Адже замість стін та перегородок ви зможете розмістити більш просторий диван, барну стіну або обідній стіл. Візуально перегородки не вкрадуть простір.
Друга - це економія ваших коштів та часу. Не потрібно купувати додаткові матеріали для оздоблення, намагатися вбудувати в стінах меблі тощо.
Використання світлих політр також найкраще рішення для однокімнатних квартир. Замість ідеального білого кольору використовувалися цікаві фактури та поєднання. Присутні мармурові візерунки на стінах та підлозі, сірі матові фасади на корпусних шафах.
Перша - це економія простору. Адже замість стін та перегородок ви зможете розмістити більш просторий диван, барну стіну або обідній стіл. Візуально перегородки не вкрадуть простір.
Друга - це економія ваших коштів та часу. Не потрібно купувати додаткові матеріали для оздоблення, намагатися вбудувати в стінах меблі тощо.
Використання світлих політр також найкраще рішення для однокімнатних квартир. Замість ідеального білого кольору використовувалися цікаві фактури та поєднання. Присутні мармурові візерунки на стінах та підлозі, сірі матові фасади на корпусних шафах.
Щоб квартира не здавалася стерильною та нецікавою інтер'єр розводять більш насиченими акцентами. У випадку із прикладом в Русанівська Гавань, це темно-зелений оксамитовий диван у вітальні, жовті крісла та текстиль - у спальні. Кілька картин на стінах з відповідною колористикою, декоративні подушки, текстиль - все це також додає затишку. Естетики та особливої краси додають золоті елементи. Вони присутні на меблях, освітлювальних приладах, декорі.
Розділ простору у вітальні-кухні відбувається завдяки використанню меблів. Саме барна стійка виступає елементом на межі. Також на зони допомагають поділити кімнату окремі освітлювальні прилади, переходи відтінків та палітр в оздобленні. Щоб не переобтяжувати простір дизайнер інтер'єрного бюро відмовився від важких штор. Замість них були обрані легкі фіранки, які підкреслюють панорамні вікна.
Розділ простору у вітальні-кухні відбувається завдяки використанню меблів. Саме барна стійка виступає елементом на межі. Також на зони допомагають поділити кімнату окремі освітлювальні прилади, переходи відтінків та палітр в оздобленні. Щоб не переобтяжувати простір дизайнер інтер'єрного бюро відмовився від важких штор. Замість них були обрані легкі фіранки, які підкреслюють панорамні вікна.
Це не квартира-студія, а саме однокімнатний об'єкт. Тому крім вітальні з кухнею тут також присутня спальня. Виконана вона у витриманому стилі. З м'яким ліжком посередині, приліжковими полицями та косметичним столиком. В кімнатах немає зайвих корпусних шаф, адже більшість речей сховано у гардеробних. Для них дизайнери зуміли виділити окремі місця, зробивши достатньо місткими та майже не помітними.
Санвузол - ще одне приміщення, на яке варто звертати увагу. Вважаючи обмеженість простору, замість ванни було обрано душ. Це не стандартна душ кабіна, а зручно облаштований простір. Кожне рішення має певну мету та виконує функцію. Термостат, відсутність незручних порогів, інсталяції, теплі підлоги, полиці всередині стін - все це передбачає проект однокімнатної квартири.
Санвузол - ще одне приміщення, на яке варто звертати увагу. Вважаючи обмеженість простору, замість ванни було обрано душ. Це не стандартна душ кабіна, а зручно облаштований простір. Кожне рішення має певну мету та виконує функцію. Термостат, відсутність незручних порогів, інсталяції, теплі підлоги, полиці всередині стін - все це передбачає проект однокімнатної квартири.
Звернувшись до інтер’єрної компанії Бєлік ви отримаєте детальний проект, який полегшить ваш ремонт та дозволить отримати дійсно сучасний, бажаний дизайн квартири.
Важливо розуміти, що світлі інтер’єри актуальні не лише для квартир, а й для приватної нерухомості. При роботі з котеджами та таунхаусами студія Бєлік застосовує ті самі принципи продуманості та логіки, адаптуючи їх до масштабу об’єкта. Саме дизайн проект будинку дозволяє заздалегідь продумати всі сценарії життя, взаємодію приміщень та технічні аспекти, щоб інтер’єр залишався зручним і естетичним роками. дизайн проект будинку є основою для якісної реалізації будь-якого житлового простору.
Для досягнення такого результату важливо своєчасно замовити дизайнера інтер’єру, який працює не з шаблонами, а з конкретним об’єктом та людьми. Професійний підхід передбачає аналіз способу життя, потреб родини, бюджету та особливостей планування. Саме тому рішення замовити дизайнера інтер’єру дозволяє уникнути хаотичних рішень і створити простір, у якому кожна деталь має сенс.
Для досягнення такого результату важливо своєчасно замовити дизайнера інтер’єру, який працює не з шаблонами, а з конкретним об’єктом та людьми. Професійний підхід передбачає аналіз способу життя, потреб родини, бюджету та особливостей планування. Саме тому рішення замовити дизайнера інтер’єру дозволяє уникнути хаотичних рішень і створити простір, у якому кожна деталь має сенс.
Окрему увагу клієнти приділяють фінансовому питанню. Дизайн проект квартири вартість формується з урахуванням площі, складності планувальних рішень, кількості приміщень та обсягу технічної документації. Важливо розуміти, що професійний проєкт — це інвестиція, яка дозволяє уникнути значно більших витрат на переробки та виправлення помилок у процесі ремонту. Детальніше про підходи до ціноутворення можна дізнатися на сторінці дизайн проект квартири вартість.
Замовляючи дизайн проєкт інтер’єру київ, клієнт отримує рішення, адаптоване до реалій столичних новобудов і житла старого фонду. Локальний досвід дозволяє врахувати технічні обмеження, особливості інженерних мереж та актуальні будівельні норми. Саме тому дизайн проєкт інтер’єру київ — це гарантія передбачуваного результату без імпровізацій на етапі реалізації.
Замовляючи дизайн проєкт інтер’єру київ, клієнт отримує рішення, адаптоване до реалій столичних новобудов і житла старого фонду. Локальний досвід дозволяє врахувати технічні обмеження, особливості інженерних мереж та актуальні будівельні норми. Саме тому дизайн проєкт інтер’єру київ — це гарантія передбачуваного результату без імпровізацій на етапі реалізації.
У підсумку професійний дизайн інтер’єрів — це не лише естетика, а й зручність, логіка та довготривала актуальність простору. Світлі палітри, продумані сценарії освітлення та грамотне зонування дозволяють створювати інтер’єри, які працюють на комфорт щодня. Саме такий дизайн інтер’єрів реалізує студія Бєлік, поєднуючи сучасні рішення з індивідуальним підходом до кожного об’єкта.
Подивіться нашу презентацію