СУЧАСНИЙ ДИЗАЙН БУДИНКУ ВСЕРЕДИНІ У КМ СОСНОВИЙ ГАЙ У М. ІРПІНЬ
• Локація - КМ Сосновий Гай у м. Ірпінь, Україна
• Площа квартири – 171,9 м²
• Формат роботи – дизайн проєкт інтер'єру
• Площа квартири – 171,9 м²
• Формат роботи – дизайн проєкт інтер'єру
Складно самостійно відтворити сучасний дизайн будинку всередині, щоб він був оптимальним та виглядав максимально органічно. Нестача знань в галузі дизайну, архітектури, ремонтних роботах призводять до помилок, які потребуватимуть часу та коштів на їх виправлення.
Тому, якщо ви прагнете дійсно якісного та візуально естетичного інтер'єру у оселі, варто звернутися до перевірених фахівців ще на старті планування ремонту. Дизайн студія інтер'єру Бєлік розробляє повну проектну документацію та реалізує її “під ключ”. Виконує ремонти та авторський нагляд.
Тому, якщо ви прагнете дійсно якісного та візуально естетичного інтер'єру у оселі, варто звернутися до перевірених фахівців ще на старті планування ремонту. Дизайн студія інтер'єру Бєлік розробляє повну проектну документацію та реалізує її “під ключ”. Виконує ремонти та авторський нагляд.
Завдяки багаторічному досвіду роботи (понад 10 років) наші дизайнери інтер'єру створюють персоналізовані, актуальні, сучасні та функціональні простори. Планують технічно правильні ремонтні роботи, які не викликають проблем у майбутньому. Сьогодні також працює студія інтер єру у Варшаві, надаючи послуги дизайну у повному обсязі.
У Польщі працює злагоджена та перевірена команда фахівців, яка не лише розробить детальний дизайн проєкт. Дизайн студія інтер єру Польща Бєлік реалізує всі ідеї зі схем, планів та технічної документації. За замовленням клієнта, також може бути надана послуга авторського нагляду. Нагляд гарантує відповідність результату до заявлених у проекті ідей на 100%.
У Польщі працює злагоджена та перевірена команда фахівців, яка не лише розробить детальний дизайн проєкт. Дизайн студія інтер єру Польща Бєлік реалізує всі ідеї зі схем, планів та технічної документації. За замовленням клієнта, також може бути надана послуга авторського нагляду. Нагляд гарантує відповідність результату до заявлених у проекті ідей на 100%.
Країна розташування будинку (квартири) не впливає на якість та професіоналізм роботи дизайнера інтер'єру, якщо звернутися до агенції Бєлік. Адже наші проекти створюють індивідуально під кожного замовника та його об'єкт. До уваги беруться: стиль життя, потреби та склад родини, індивідуальні побажання до оформлення та фінансові можливості. Весь дизайн підлаштовується під потреби родини, а не навпаки.
Звернутися до нас можна з конкретним запитом та побажаннями до результату. Також можна подивитися різні приклади оформлення приміщень, щоб надихнутися певними рішеннями та перейняти ефективні ідеї.
Звернутися до нас можна з конкретним запитом та побажаннями до результату. Також можна подивитися різні приклади оформлення приміщень, щоб надихнутися певними рішеннями та перейняти ефективні ідеї.
Власникам великих об'єктів та поціновувачам функціоналізму варто звернути увагу на сучасний дизайн будинку всередині. На прикладі відремонтованої нами забудови в КМ Сосновий Гай у м. Ірпінь, можна впевнитися у доречності кожного рішення та пройнятися “домашньою” атмосферою. Дизайнер інтер'єру запровадив одразу кілька ефективних ідей, створив дійсно затишний та зручний простір.
Ця оселя є вдалим прикладом комфорту та затишку. Місцем, куди хочеться повертатися після роботи та кликати друзів у вихідні. Де можна відпочивати, надихатися й весело проводити час.
Ця оселя є вдалим прикладом комфорту та затишку. Місцем, куди хочеться повертатися після роботи та кликати друзів у вихідні. Де можна відпочивати, надихатися й весело проводити час.
Оформлення будинку в КМ Сосновий Гай у м. Ірпінь
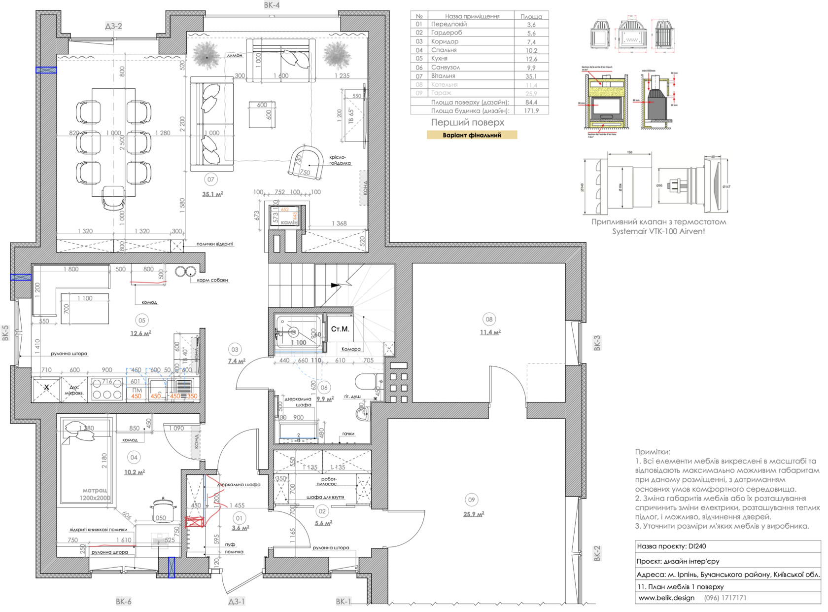
Це великий будинок — понад 300 м2, з двома поверхами (по 170 м2 на кожному). Він став ідеальним місцем для проживання великої родини або навіть двох родин. Адже в середені знаходяться:
- 5 спален;
- 2 санвузли;
- 2 гардеробні кімнати;
- кухня;
- вітальня-столова.
Кожне приміщення було промірковане до дрібниць. Велику увагу приділили кухні, зробивши їх окремо та максимально функціональною. Крім зони для приготування іжі, в ній також розмістити кутовий диван. Він слугує місцем для відпочинку та спілкування в невеликому родинному колі.
Вітальня-столова слугує приміщенням, яке здатно збирати великі компанії. Це мрія багатьох. Адже в середині присутні: величезний дерев'яний стіл, одразу два дивани та камін. Містка шафа з безліччю відкритих полиць для створення власної бібліотеки на одній зі стін виглядає у вітальній максимально органічно.
Кожне прийняте рішення в оздобленні, плануванні, меблюванні та декоруванні було орієнтоване на потреби клієнтів. Тому цей інтер’єр максимально задовольняє замовників, закриваючи всіх їх потреби та приносячи естетичну насолоду.
Кожне прийняте рішення в оздобленні, плануванні, меблюванні та декоруванні було орієнтоване на потреби клієнтів. Тому цей інтер’єр максимально задовольняє замовників, закриваючи всіх їх потреби та приносячи естетичну насолоду.
Дотримано сучасний дизайн будинку всередині в кожній з кімнат. Для цього вирішили одразу корпусні меблі купити під замовлення. Це дозволило використати однакові фактури та фасади, якісні системи, зробити цілі меблеві групи. Де це було можливо, вбудували конструкції в стіни, зробивши їх візуально непомітними.
Гардеробні дозволили мінімізувати кількість саме “важких” корпусних конструкцій та заощадити місце в кімнатах. За дверима в гардеробній приховали весь одяг, взуття, аксесуари, інвентар та техніку для чистоти тощо.
Гардеробні дозволили мінімізувати кількість саме “важких” корпусних конструкцій та заощадити місце в кімнатах. За дверима в гардеробній приховали весь одяг, взуття, аксесуари, інвентар та техніку для чистоти тощо.
Наповнення гардеробної також робили меблярі, що дозволило створити полиці різного розміру та навіть глибини, додати підсвічування та ефективні “фішки” для зручного зберігання.
Що стосується вибору кольорів та матеріалів для відтворення сучасного стиля? На об'єкті КМ Сосновий Гай у м. Ірпінь була зроблена ставка на натуральні текстури (дерево, камінь), приглушену природну палітру (беж, молочний, сірий) та продумані сценарії освітлення. Одразу кілька актуальних та ефективних дизайнерських рішень дозволили створити дійсно сучасний та гармонійний простір у великому домі.
Що стосується вибору кольорів та матеріалів для відтворення сучасного стиля? На об'єкті КМ Сосновий Гай у м. Ірпінь була зроблена ставка на натуральні текстури (дерево, камінь), приглушену природну палітру (беж, молочний, сірий) та продумані сценарії освітлення. Одразу кілька актуальних та ефективних дизайнерських рішень дозволили створити дійсно сучасний та гармонійний простір у великому домі.
1. Акцентні стіни з геометрією та підсвіткою — одна з найсильніших “фішок”.
Замість звичайних панелей використано комбінацію вертикальних рейок та діагональних ліній. Вбудована LED-стрічка між панелями створює глибину та ефект “паріння”. Це ідеальне нічне освітлення, яке не б'є в очі, але створює затишок.
2. Камін, як центральне архітектурне ядро будинку.
Камін пов’язано спільним оздобленням (камінь, дерево, підсвітка) зі сходами та іншими компонентами інтер’єра, що створює ефект монолітності.
Вбудований у масивну колону він зонує простір між вітальнею та холом.
Камінна зона плавно переходить у зону ТВ. Оздоблення великоформатним керамогранітом під світлий камінь візуально “піднімає” стелю.
Використання Г-подібного скла у кутовій топці дозволяє насолоджуватися вогнем з двох боків (з дивана,з обідньої зони). Це розмиває межі між функціональними зонами.
Замість звичайних панелей використано комбінацію вертикальних рейок та діагональних ліній. Вбудована LED-стрічка між панелями створює глибину та ефект “паріння”. Це ідеальне нічне освітлення, яке не б'є в очі, але створює затишок.
2. Камін, як центральне архітектурне ядро будинку.
Камін пов’язано спільним оздобленням (камінь, дерево, підсвітка) зі сходами та іншими компонентами інтер’єра, що створює ефект монолітності.
Вбудований у масивну колону він зонує простір між вітальнею та холом.
Камінна зона плавно переходить у зону ТВ. Оздоблення великоформатним керамогранітом під світлий камінь візуально “піднімає” стелю.
Використання Г-подібного скла у кутовій топці дозволяє насолоджуватися вогнем з двох боків (з дивана,з обідньої зони). Це розмиває межі між функціональними зонами.
3. Приховане зберігання та інтеграція техніки.
Кухня та гардеробна спроєктовані за принципом “невидимості”.
Шафи до самої стелі (антресолі) візуально збільшують висоту приміщення та прибирають “візуальний шум”. На кухні білі верхні фасади зливаються зі стіною, а нижні дерев'яні додають тепла.
Використання пральної та сушильної машин у колоні в санвузлі — стандарт для сучасного комфорту, що економить місце.
4. Світловий дизайн сходів.
Підсвітка кожної сходинки — це не лише естетика, а й безпека.
Контурне світло виділяє форму сходів, роблячи масивну конструкцію легшою. Темне дерево поручнів контрастує зі світлими стінами, створюючи чітку графічність.
Кухня та гардеробна спроєктовані за принципом “невидимості”.
Шафи до самої стелі (антресолі) візуально збільшують висоту приміщення та прибирають “візуальний шум”. На кухні білі верхні фасади зливаються зі стіною, а нижні дерев'яні додають тепла.
Використання пральної та сушильної машин у колоні в санвузлі — стандарт для сучасного комфорту, що економить місце.
4. Світловий дизайн сходів.
Підсвітка кожної сходинки — це не лише естетика, а й безпека.
Контурне світло виділяє форму сходів, роблячи масивну конструкцію легшою. Темне дерево поручнів контрастує зі світлими стінами, створюючи чітку графічність.
5. Обідня зона з “живим” краєм.
Стіл із масиву з нерівним краєм стає центром композиції, який додає характеру та статусності. Плетені плафони над столом пом'якшують суворість ліній.
6. Складне освітлення.
Дизайн відходить від класичної схеми “одна люстра по центру”. Тут світло працює як інструмент архітектури:
Стіл із масиву з нерівним краєм стає центром композиції, який додає характеру та статусності. Плетені плафони над столом пом'якшують суворість ліній.
6. Складне освітлення.
Дизайн відходить від класичної схеми “одна люстра по центру”. Тут світло працює як інструмент архітектури:
- вертикальні світлові лінії — на стінах у вітальні та кухні вбудовані тонкі світлові профілі;
- акцентні “споти” та бра (використовуються локально) — над ліжком для читання або на стінах для підсвітки фактури панелей;
- нижнє світло — підсвітка сходів та камінної зони дозволяє ввечері вимкнути основне світло, залишивши лише затишні світлові акценти.
7. Текстиль та багатошаровість.
Використання декількох подушок різної фактури та щільних штор ”в підлогу” створює ефект готельного люксу.
Тіньовий профіль для штор (коли здається, що вони виходять прямо зі стелі) робить вікна візуально вищими.
8. Розумне зонування у санвузлі.
Навіть у невеликому просторі під скосом даху (другий поверх) вдалося розмістити все необхідне.
Використано керамограніт під мармур з активним малюнком на підлозі та одній стіні. Це відвертає увагу від складної геометрії стелі. Наявність пісуара — рідкісне, але дуже практичне рішення для сімейних будинків.
Спланувати та реалізувати для вас сучасний дизайн будинку всередині інтер'єрна компанія Бєлік може не лише у Києві, передмісті. Працює “під ключ” наша дизайн студія інтер єру у Гданську, Варшаві.
Використання декількох подушок різної фактури та щільних штор ”в підлогу” створює ефект готельного люксу.
Тіньовий профіль для штор (коли здається, що вони виходять прямо зі стелі) робить вікна візуально вищими.
8. Розумне зонування у санвузлі.
Навіть у невеликому просторі під скосом даху (другий поверх) вдалося розмістити все необхідне.
Використано керамограніт під мармур з активним малюнком на підлозі та одній стіні. Це відвертає увагу від складної геометрії стелі. Наявність пісуара — рідкісне, але дуже практичне рішення для сімейних будинків.
Спланувати та реалізувати для вас сучасний дизайн будинку всередині інтер'єрна компанія Бєлік може не лише у Києві, передмісті. Працює “під ключ” наша дизайн студія інтер єру у Гданську, Варшаві.
Подивіться нашу презентацію