РЕМОНТ У ДВОКІМНАТНІЙ КВАРТИРІ В ЖК ОЗЕРНИЙ У КИЄВІ
Ремонт у двокімнатній квартирі ЖК Озерний
Двокімнатне житло вважається розповсюдженим та актуальним варіантом. В таких об’єктах зручно проживати самому, будувати родину, ростити одну чи навіть двоє дітей, зустрічати гостей. Двушки - це часто стартове житло для молодят або ідеальний варіант для працюючих одинаків, родини без дітей тощо.
Безумовно, від потреб мешканців залежить, як саме буде облаштовано об'єкт. Одні бажають створити справжнє родинне гніздечко, в той час, як іншим потрібно вдосталь місця для роботи та занять творчістю. Неможливо робити ремонт у двокімнатній квартирі, орієнтуючись на загальноприйняті стандарти та приклади знайомих. Дуже важливо звернутися до фахівця, який реалізує ваші запити в реальності.
Дизайнер інтер’єрів - це саме та людина, як спланує персоналізований та покращуючий ваш рівень життя ремонт. Через дизайн проект будуть сплановані всі робочі етапи та процеси, візуально відображений інтер'єр мрії, уникненні помилки та досягнуто максимального функціоналу. Ви не просто отримаєте гарну картинку.
Вам будуть надані:
Вам будуть надані:
- детальна інструкція майбутнього ремонту;
- прораховані кращі для вас варіанти планування та оформлення житла;
- обрані оптимальні рішення конкретно для вашого об'єкта;
- прорахований приблизний кошторис майбутнього ремонту, часто сума орієнтована на ваші можливості та зазначений бюджет;
- вся технічна інформація, стосовно проведення інженерних комунікацій, їх приховування тощо.
В дизайн студії Бєлік виконують ремонт у двокімнатній квартирі на професійному рівні. У нас ви можете знайти сучасні та максимально різні приклади оформлення. Особливої уваги заслуговує об’єкт в ЖК Озерний. В ньому вдало об'єднані акценти сміливого лофту з затишним еко та стриманим мінімалізмом. Цей інтер'єр персоналізований та ідеально відображає внутрішній світ, інтереси, стиль життя власників.
Ремонт у двокімнатній квартирі ЖК Озерний виконувався за проектом, тому не лише візуал, але й всі технічні аспекти відповідають високим показникам якості. Впроваджено багато оригінальних та цікавих рішень, які можна взяти собі на замітку, використати з користю на своєму об'єкті.
Ремонт у двокімнатній квартирі ЖК Озерний виконувався за проектом, тому не лише візуал, але й всі технічні аспекти відповідають високим показникам якості. Впроваджено багато оригінальних та цікавих рішень, які можна взяти собі на замітку, використати з користю на своєму об'єкті.
Оригінальні рішення в оформленні двокімнатної квартири ЖК Озерний
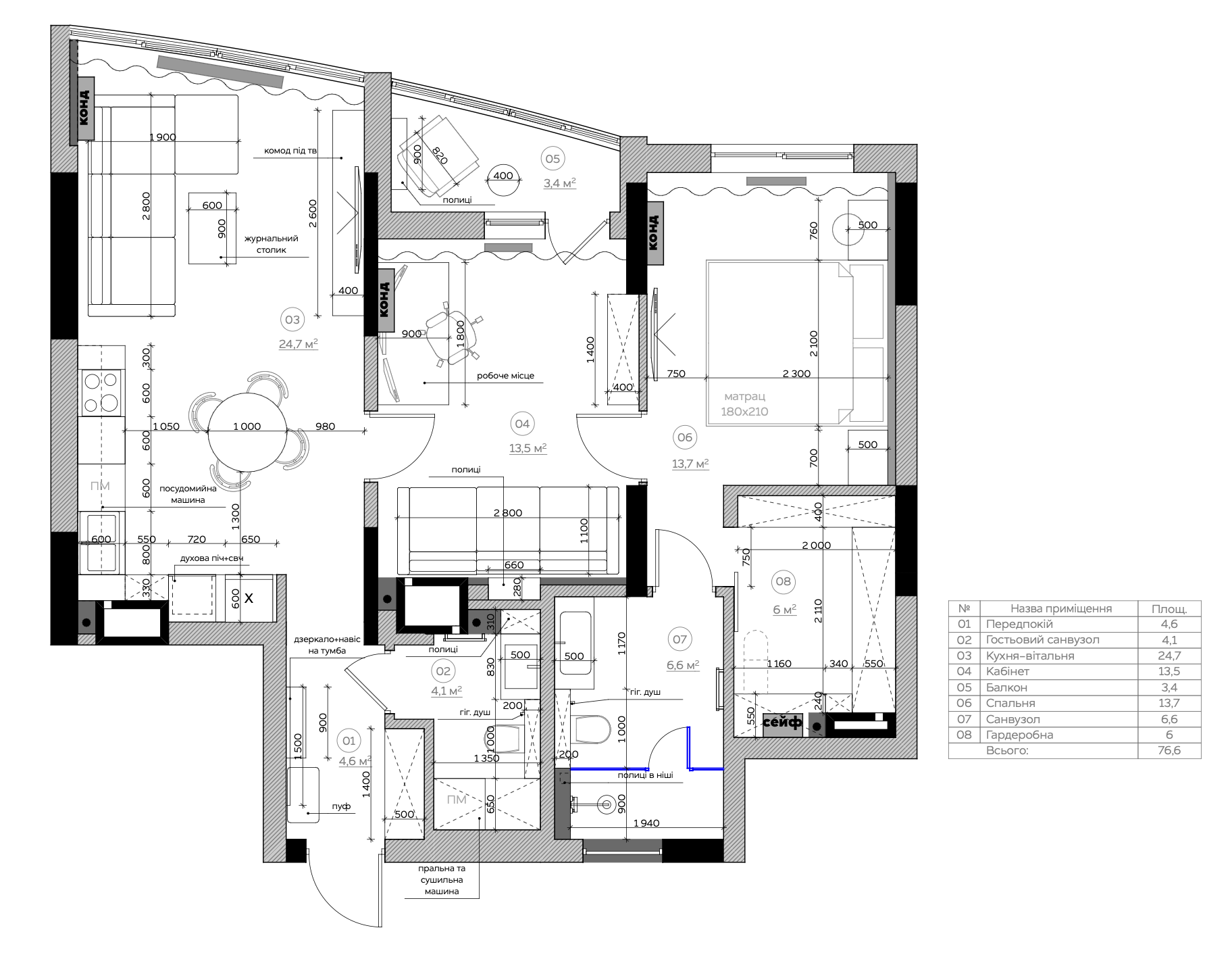
Це доволі просторий об’єкт, в якому вийшло розмістити 2 житлові кімнати (спальня, кабінет), вітальню-кухню, 2 санвузли, гардеробну. Кожне приміщення доволі просторе та оснащено всіма необхідними меблями. Зручне планування досягнуто завдяки відсутності непотрібних стін та перегородок. Вони є лише у кімнатах, де потрібно усамітнення.
Між передпокоєм та вітальнею-кухнею немає дверей. Але присутні корпусні шафи, які є подовженням стін. Саме вони візуально створюють ефект відокремленості. Зрозуміти де завершується одна функціональна зона та починається інша дозволяє підлогове покриття. В зоні кухні його оформлено керамогранітною плиткою великого формату. У вітальні вже покладена паркетна дошка. Перехід між дошкою та плиткою рівний. Немає порогів. Все виконано на одному рівні, завдяки професійній роботі ремонтників.
Саме оздоблення стін та стелі у квартирі ЖК Озерний йде в одному, сірому кольорі. Стилістика цієї квартири нагадує лофт. Тут присутнього багато сірих кольорів, фактур дерева та кладка цеглою однієї зі стін. В спальні на стіні використані декоративні панелі з дерева, в центрі яких знаходиться відрізок бетонної стіни. В кабінеті акценту стіну прикрашено декоративною мозаїкою в чорному кольорі. В кожному приміщенні власні акценти, які виконані в тих самих кольорах та стилістиці.
Присутньо багато промислових елементів, а саме:
Ремонт у двокімнатній квартирі в ЖК Озерний вважається максимально проміркованим та функціональним. Меблі зібрані в єдиній колористиці, без різних перепадів. Виключення - диван, наниченого темно-синього кольору. Цікавість дизайну підкреслюється не за допомогою кольорів, а через “гру” з фактурами. Дерева плавно перетікає у цеглу чи бетон, глушиться однотонними кольорами та практичними меблями.
- фактури керамічної плити з ефектом бетону чи скелі в санвузлах, житлових кімнатах, оздобленні підлоги тощо;
- однотонні та ідеально пофарбовані в матовий сірий стіни, плінтуси, вбудовані двері, фасади шаф;
- бетонна стіна у спальні;
- вбудовані світильники у стелі, які не мають зайвого декору, рамок або кольорів;
- різнорівневе освітлення з вбудованих світильників, підсвічування по периметру кімнат, підлогової та настільних ламп з дизайном в промисловому стилі;
- відмова від зайвого декору та текстилю на користь потрібним в побуті елементів (вази, книги, свічки, дзеркала) - виключення предмети живопису.
Ремонт у двокімнатній квартирі в ЖК Озерний вважається максимально проміркованим та функціональним. Меблі зібрані в єдиній колористиці, без різних перепадів. Виключення - диван, наниченого темно-синього кольору. Цікавість дизайну підкреслюється не за допомогою кольорів, а через “гру” з фактурами. Дерева плавно перетікає у цеглу чи бетон, глушиться однотонними кольорами та практичними меблями.
Кожний елемент підібрано з орієнтованістю на функціональність. Висота ліжка та дивани, положення ніжок обіднього стола, розміщення сантехніки - всі це обиралося з орієнтовністю на роботу робота пилосмока. Щоб квартира не загрузла у практичності та сірості, був доданий текстиль. Штори з щільної тканини, не надо пухнасті килими, декоративні подушки - все це додає елементів затишку.
Зі спальні є вихід до санвузлу та гардеробної. Це максимально зручно під час збирання на роботу тощо. Гардеробна - це MustHave, який заощадив багато простору. Завдяки цьому, в приміщеннях вдалося уникнути шаф в більшості приміщень квартири. Також це забезпечило зручність зберігання речей, техніки та іншого приладдя. Кабінет облаштовано таким чином, щоб в ньому могли поміститися гості. Є місце для роботи, бібліотека, невелика шафа та зручний диван.
Зі спальні є вихід до санвузлу та гардеробної. Це максимально зручно під час збирання на роботу тощо. Гардеробна - це MustHave, який заощадив багато простору. Завдяки цьому, в приміщеннях вдалося уникнути шаф в більшості приміщень квартири. Також це забезпечило зручність зберігання речей, техніки та іншого приладдя. Кабінет облаштовано таким чином, щоб в ньому могли поміститися гості. Є місце для роботи, бібліотека, невелика шафа та зручний диван.
Якщо ви бажаєте отримати ремонт у двокімнатній квартирі, який задовольнятиме ваші потреби, варто звернутися до професіоналів. Наша компанія інтер’єрів Бєлік понад 10 років спеціалізується на наданні послуг в цій галузі. Ми не просто маємо бригади перевірених майстрів. Співробітники інтер'єрної компанії Бєлік планують ремонти, через дизайн проекти та доводять їх до досконалості. При цьому дотримуються кошторис, терміни, етапи робіт та виправдовуються очікування.
Щоб ремонт у двокімнатній квартирі був передбачуваним і дійсно зручним для життя, основою завжди має бути проект інтер єру. Саме він дозволяє заздалегідь продумати планування, стилістику, технічні рішення та уникнути помилок, які зазвичай виникають під час ремонту без чіткого плану.
Звертаючись до дизайн студія інтер’єру Бєлік, замовник отримує не лише естетичний інтер’єр, а й системний підхід до організації простору. Усі рішення приймаються з урахуванням реального способу життя, кількості мешканців, сценаріїв використання кімнат і довготривалої експлуатації житла.
Ще на етапі планування клієнт розуміє, якою буде дизайн інтер’єру київ ціни, що входить у проєкт і як формується бюджет. Така прозорість дозволяє уникнути непередбачених витрат та чітко контролювати фінансову сторону ремонту.
Для зручності замовників у Бєлік доступні послуги з дизайну квартири з індивідуальним підходом до кожного об’єкта. Це оптимальне рішення для тих, хто хоче отримати продуманий інтер’єр без зайвих експериментів і втрати часу.
Звертаючись до дизайн студія інтер’єру Бєлік, замовник отримує не лише естетичний інтер’єр, а й системний підхід до організації простору. Усі рішення приймаються з урахуванням реального способу життя, кількості мешканців, сценаріїв використання кімнат і довготривалої експлуатації житла.
Ще на етапі планування клієнт розуміє, якою буде дизайн інтер’єру київ ціни, що входить у проєкт і як формується бюджет. Така прозорість дозволяє уникнути непередбачених витрат та чітко контролювати фінансову сторону ремонту.
Для зручності замовників у Бєлік доступні послуги з дизайну квартири з індивідуальним підходом до кожного об’єкта. Це оптимальне рішення для тих, хто хоче отримати продуманий інтер’єр без зайвих експериментів і втрати часу.
А коли дизайн-проєкт переходить у фазу реалізації, важливо довірити роботи професіоналам. Саме тому послуги з ремонту квартир київ від інтер’єрної компанії Бєлік виконуються з дотриманням усіх технічних норм, узгодженого кошторису та затверджених термінів.
Саме такий підхід дозволяє створювати ремонти у двокімнатних квартирах, які поєднують стиль, функціональність і комфорт — як у проєкті ЖК Озерний, де кожне рішення має логіку та практичну цінність.
Саме такий підхід дозволяє створювати ремонти у двокімнатних квартирах, які поєднують стиль, функціональність і комфорт — як у проєкті ЖК Озерний, де кожне рішення має логіку та практичну цінність.
Подивіться нашу презентацію