ДИЗАЙН ПРОЕКТ МІСЦЬ ЗАГАЛЬНОГО КОРИСТУВАННЯІ
Дизайн інтер'єру місць загального користування
Дизайн інтер'єру місць загального користування може здаватися не важливим. Адже на сходовому майданчику, у під'їзді, вестибюлі або коридорах ЖК не мешкатимуть люди. Але саме ці приміщення створюють певну атмосферу та відображають концепцію всієї забудови.
Дизайн місць загального користування - це те, на що першочергове звертають увагу відвідувачі комплексів та забудов. Якщо все захаращено та застаріле, не викликає довіри та свідчить про небезпеку - навряд чи в такому ЖК захочуть мешкати. Отже в ньому не куплять квартиру, приміщення під магазин або офіс Дуже важливо, під час облаштування забудови, передбачити оформлення всіх зон загального користування. При правильному підході ви можете створити затишне та зручне місце, куди будуть повертатися. Саме той простір, який будуть рекомендувати та бажати відвідувати постійно.
Сучасний інтер'єр місць загального користування дозволяє там проводити час з користю. В холах ЖК та зонах очікувань можна зустрічатися зі знайомим та партнерами, працювати, очікувати на когось.Затишне та сучасне оформлення спонукає до гарного настрою.
Особливо цінується, якщо дизайн інтер'єру вестибюля у житловому комплексі має окремі зони для дітей. Невеликі та цікаво оформленні ігрові столи зі стільцями дозволяють малечі малювати або гратися, не заважаючи іншим та не нудьгуючи.
Також сучасні дизайнери інтер'єрів роблять окремі зони відпочинку в холах ЖК для дорослих. Тут мешканцям або відвідувачам зручно буде працювати, читати книжки, пити каву, комфортно проводити час в очікуванні (партнерів, таксі, кур’єра тощо).
Особливо цінується, якщо дизайн інтер'єру вестибюля у житловому комплексі має окремі зони для дітей. Невеликі та цікаво оформленні ігрові столи зі стільцями дозволяють малечі малювати або гратися, не заважаючи іншим та не нудьгуючи.
Також сучасні дизайнери інтер'єрів роблять окремі зони відпочинку в холах ЖК для дорослих. Тут мешканцям або відвідувачам зручно буде працювати, читати книжки, пити каву, комфортно проводити час в очікуванні (партнерів, таксі, кур’єра тощо).
Самостійно майже неможливо оформити всі місця загального користування. Адже крім візуальної концепції, тут важливим є розв'язання технічних питань. Достатнє освітлення, створення комфортних умов завдяки кондиціонуванню (опаленню, системам вентиляції), якісне оздоблення, використання кожного м2 по-максимуму, окреме зонування та відображення загальної ідеї комплексу - все це можливо зробити, маючи спеціальні знання та професійний досвід.
Першою та головною послугою при плануванні інтер'єру в таких приміщеннях є дизайн проект місць загального користування. Саме в ньому відображатимуться всі етапи та процеси. Наперед будуть вирішені спірні питання та уникнено 90% проблем, які б могли виникнути під час ремонту.
Першою та головною послугою при плануванні інтер'єру в таких приміщеннях є дизайн проект місць загального користування. Саме в ньому відображатимуться всі етапи та процеси. Наперед будуть вирішені спірні питання та уникнено 90% проблем, які б могли виникнути під час ремонту.
Дизайн проєкт місць загального користування та його особливості
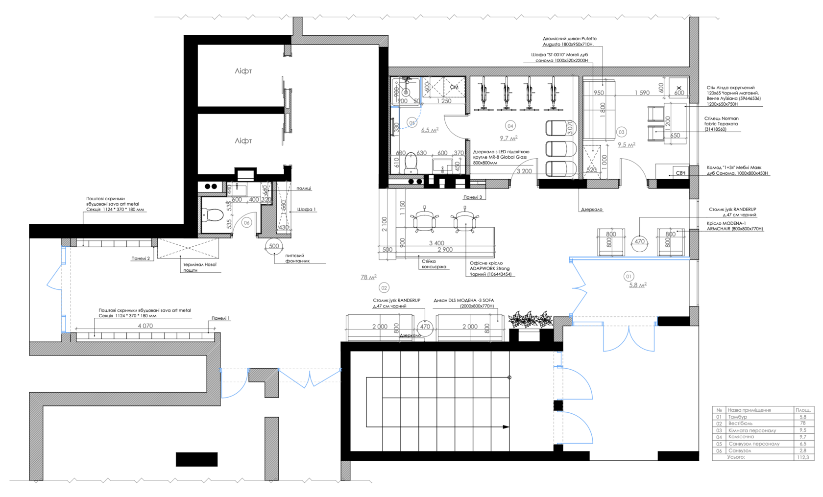
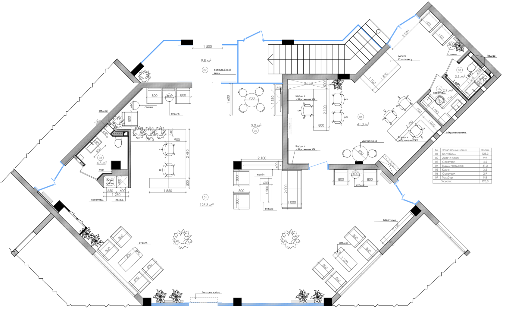
Проектна документація місць загального користування дозволить завчасно спланувати візуальну та технічну частину об'єкта. Ви можете створити привабливий, функціональний та безпечний простір. Він відображатиме певну концепцію ЖК, налаштовуватиме на потрібний настрій та підвищуватиме рівень комфорту мешканців. Персоналу дизайн інтер'єру ресепшн у житловому комплексі дозволить ефективно виконувати свою роботу.
Саме у проекті місць загального користування дизайнер інтер'єрів:
- планує правильне розміщення зон;
- підбирає якісні та зносостійкі матеріали (оздоблення, меблі, освітлювальні прилади, декор, сантехніка);
- створює безпечні та орієнтовані на потреби мешканців елементи - покриття, які не ковзають, пандуси, поручні тощо;
- забезпечує зручну навігацію по ЖК - мова йде про нумерування поверхів та під'їздів, створення схем тощо;
- прописує послідовність всіх робочих процесів - обираючи необхідні етапи та уникаючи зайвих робіт;
- передбачає всі можливі помилки та уникає їх, обираючи більш вдалі альтернативи та знаходячи ідеальні компроміси;
- планує всі комунікації, через технічну документацію - забезпечує безперебійну та ефективну роботу всіх зон;
- створює чіткий план майбутніх витрат - через рішення з проєкту можна розрахувати бюджет на ремонт певної зони та скорегувати майбутній кошторис.
Щоб отримати дійсно гарний та зручний дизайн інтер'єру холу у житловому комплексі, варто відповідально поставитися до вибору фахівця. Краще звертатися до компаній інтер'єрів, які не просто “малюють” візуалізації, а створюють дизайн проекти на професійному рівні. Мається на увазі, крім розробки 3Д візуалізацій, надання всіх відповідних розрахунків, схем, планів, креслень. Можливість замовлення реалізації вже розробленого проєкта - це пряма перевага компанії дизайну. Як і послуга авторського нагляду, що гарантує майже 100% відповідність результату ідеям з візуалізацій.
Саме такою є студія інтер'єрів Бєлік, яка впродовж 10 років розробляє та створює дизайни для комерційних, житлових приміщень. Нашою головною особливістю є надання всіх типів послуг. Ви можете замовити проект в повному форматі, ремонт під ключ, авторський нагляд. Можливе надання послуг в комплексі або окремо.
Саме такою є студія інтер'єрів Бєлік, яка впродовж 10 років розробляє та створює дизайни для комерційних, житлових приміщень. Нашою головною особливістю є надання всіх типів послуг. Ви можете замовити проект в повному форматі, ремонт під ключ, авторський нагляд. Можливе надання послуг в комплексі або окремо.
Кожному своєму клієнтові інтер'єрне бюро Бєлік пропонує індивідуальний підхід. Саме така концепція ведення бізнесу дозволяє нам створювати персоналізовані та унікальні простори. Навіть розроблений нашими фахівцями дизайн інтер'єру коридору в житловому комплексі ви не зустрінете у сусідньому ЖК або на сторінках в мережі. Кожна атмосфера розробляється індивідуально, з урахуванням особливостей самих приміщень, побажань та можливостей замовника.
Проєктна документація та ремонт місць загального користування від Бєлік
Наша студія дизайн інтер'єрів надає послуги виключно в повному форматі. Ви отримаєте дизайн проект з:
- усіма планувальними схемами - розміщення кімнат, дверних отворів, освітлювальних приладів, меблів, техніки тощо;
- детальними фото реалістичними 3Д візуалізаціями всіх приміщень з різних ракурсів - оздоблення, меблі, освітлювальні прилади, декор беруться з каталогів реальних виробників (реалізаторів);
- всією технічною документацією (понад 20 креслень та схем) - детальна інструкція, щодо прокладання та приховування інженерних комунікацій (освітлення, опалення, кондиціонування, водопостачання, вентилювання, точки доступу, відеонагляд тощо) стане незамінною інструкцією для ремонтно-будівельної бригади;
- впровадженими інноваціями та останніми трендами;
- інформацією про поетапність та обсяги робіт;
- типи та кількість необхідних позицій - оздоблення, меблі, освітлювальні прилади, сантехніка тощо.
З таким проєктом вам залишиться лише звернутися до досвідченої бригади майстрів. Варто обирати виконавців, які вміють та знають, як працювати з дизайн проектами. В цьому випадку вони можуть легко та точно реалізувати ідеї, досягти максимальної відповідності.
Для мешканців Києва та передмістя інтер'єрне бюро Бєлік пропонує послугу реалізації проєктів. Ми співпрацюємо з перевіреними бригадами майстрів, які реалізували вже не один проєкт наших дизайнерів. В такому випадку робота ведеться швидко, а результат відповідає закладеній ідеї.
Також можливо замовити послугу авторського нагляду. В цьому випадку дизайнер стежитиме за реалізацією проєкту та відповідністю результату 3Д візуалізаціям. При замовленні послуг “під ключ” ви збереже свій час, кошти та нерви. Адже спеціально навчені та професійні в цій галузі фахівці візьмуть на себе всі турботи, стосовно ремонту на об'єкті.
Вам будуть надсилатися фото та відео звіти кожного етапу робіт, результату. Ви не братимете активної участі у спілкування з окремими майстрами та виконробом, не доведеться “на пальцях” пояснювати ідеї з проекта, доводити свої бачення результату, займатися закупівлею всього необхідного та приймати роботу кожного майстра окремо.
Також можливо замовити послугу авторського нагляду. В цьому випадку дизайнер стежитиме за реалізацією проєкту та відповідністю результату 3Д візуалізаціям. При замовленні послуг “під ключ” ви збереже свій час, кошти та нерви. Адже спеціально навчені та професійні в цій галузі фахівці візьмуть на себе всі турботи, стосовно ремонту на об'єкті.
Вам будуть надсилатися фото та відео звіти кожного етапу робіт, результату. Ви не братимете активної участі у спілкування з окремими майстрами та виконробом, не доведеться “на пальцях” пояснювати ідеї з проекта, доводити свої бачення результату, займатися закупівлею всього необхідного та приймати роботу кожного майстра окремо.
Ідеальний варіант дизайн інтер'єру під'їзду у житловому комплексі “під ключ” для бізнесменів, які постійно перебувають у виїздах або взагалі мають об’єкт у Києві, але самі там не мешкають. Також обирають комплексні послуги ті, хто цінує свій спокій та час. Хто розуміє, що кожен повинен займатися своєю справою та надавати дійсно якісні результати.
Студія дизайн інтер'єрів працює за договором. Кожна послуга надається окремо, має свою вартість та умови. Якщо мова йде про розробку дизайн проекта - то він має фіксовану ціну. Залежить вартість розробки від площі об'єкта.
Щодо ремонту, суму та точні терміни вам назве виконроб. Орієнтуватися він буде саме на дизайн проект. Тому, під час розробки документації можна коригувати суму майбутніх витрат на ремонт. Дизайнер інтер’єрів обирає певні матеріали та планує роботи, виходячи з фінансових можливостей замовника. Навіть, якщо кошторис буде більшим за розрахований у проєкті, він не перевищуватиме суми у кілька разів. Це часто коливання у 10-15% через подорожчання матеріалів та меблів, виникнення необхідності дещо переробити або бажання в замовника щось додати.
Студія дизайн інтер'єрів працює за договором. Кожна послуга надається окремо, має свою вартість та умови. Якщо мова йде про розробку дизайн проекта - то він має фіксовану ціну. Залежить вартість розробки від площі об'єкта.
Щодо ремонту, суму та точні терміни вам назве виконроб. Орієнтуватися він буде саме на дизайн проект. Тому, під час розробки документації можна коригувати суму майбутніх витрат на ремонт. Дизайнер інтер’єрів обирає певні матеріали та планує роботи, виходячи з фінансових можливостей замовника. Навіть, якщо кошторис буде більшим за розрахований у проєкті, він не перевищуватиме суми у кілька разів. Це часто коливання у 10-15% через подорожчання матеріалів та меблів, виникнення необхідності дещо переробити або бажання в замовника щось додати.
Дизайн інтер'єру місць загального користування у житловому комплексі - характерні особливості
Оформлення місць загального користування від Бєлік має характерні особливості. Нашими дизайнерами створено не один інтер'єр у ЖК, тому вони розуміються на кольористиці та стилістиці оформлення цих об'єктів. Загальна ідея - це відображення певного настрою та рівня життя.
Всі рішення направлені на підвищення комфорту, зручність та естетичну насолоду. Тому дизайн інтер'єру відділу продажів у житловому комплексу виглядатиме сучасним та викликатиме довіру. Прийшовши туди для ознайомлення з умовами купівлі житла, одразу видно високий рівень компанії. Як саме вона веде свою діяльність та чи готова вкладати кошти у розвиток справи.
Оформлення холу, ресепшн ЖК, відділу продаж роблять сучасним та витриманим. Обов'язково присутні зони для відпочинку - з м'якими кріслами, зручними круглими столами, окремою дитячою зоною.
Надана перевага природним фактурами та матеріалам. Замість недоречного декору та надто яскравих кольорів переважає монохром. Сірі, коричневі, мармурові, бежеві кольори виглядають вишукано. Атмосфери затишку та комфорту додають природні елементи (дерев’яні панелі) та декор (рослини у горщиках, жива стіна), багаторівневе та не надто яскраве освітлення, акцентні витримані кольори (темний зелений, насичений синій тощо). Матеріали обирають з високими показниками якості та стійкості.
Присутні в таких приміщеннях також м’які та корпусні меблі. М’які меблі максимально зручні, витримані та практичні. Корпусні роблять майже непомітними - із закритими фасадами, з дерев’яними фактурами, без зайвого декору та ручок. Іноді виробляють шафи з відкритими полицями, для додавання візуально приємного декору (годинники, свічки, лампи, книги). Можуть також в зоні очікування створити шафу кшталт бібліотеки, поставити кавомашину тощо.
Присутні в таких приміщеннях також м’які та корпусні меблі. М’які меблі максимально зручні, витримані та практичні. Корпусні роблять майже непомітними - із закритими фасадами, з дерев’яними фактурами, без зайвого декору та ручок. Іноді виробляють шафи з відкритими полицями, для додавання візуально приємного декору (годинники, свічки, лампи, книги). Можуть також в зоні очікування створити шафу кшталт бібліотеки, поставити кавомашину тощо.
Ефект візуальної естетики досягається завдяки:
Крім холу, також важливо спланувати дизайн проект типового поверху у житловому комплексі. Роблять поверхи в одному стилі, щоб не викликати конфлікту сприяння та протилежних відчуттів. Витримують загальну ідею. Використовують однакову колористику, схоже тепле освітлення та декор (панелі, настінні бра, різьблення тощо). Іноді розміщують на поверхах м’які меблі (крісла, диван).
Необхідно облаштувати місця загального користування у вашому ЖК? Робітники студії дизайн інтер'єрів Бєлік залюбки допоможуть це зробити. Виконають все професійно, унікально та в зазначені терміни.
- правильному комбінуванню кольорів, фактур та відтінків;
- використанню доцільного та гарного декора;
- багаторівневому освітленню та підбору освітлювальних приладів цікавих форм;
- крашим планувальним рішенням - відвідувачам не доведеться колами ходити по кімнаті, щоб дістатися ресепшн, крісла або виходу;
- створенню зручних зон (для відпочинку та очкування, дитячого місцезнаходження);
- максимальному приховуванню всіх комунікацій - не будуть впадати в око дроти та труби, техніка та устаткування.
Крім холу, також важливо спланувати дизайн проект типового поверху у житловому комплексі. Роблять поверхи в одному стилі, щоб не викликати конфлікту сприяння та протилежних відчуттів. Витримують загальну ідею. Використовують однакову колористику, схоже тепле освітлення та декор (панелі, настінні бра, різьблення тощо). Іноді розміщують на поверхах м’які меблі (крісла, диван).
Необхідно облаштувати місця загального користування у вашому ЖК? Робітники студії дизайн інтер'єрів Бєлік залюбки допоможуть це зробити. Виконають все професійно, унікально та в зазначені терміни.
Плануючи інтер’єр місць загального користування, важливо одразу враховувати, що навіть найкращий задум потребує якісної реалізації. Саме тому досвід, отриманий студією Бєлік у процесі ремонти в квартирах, успішно застосовується і для просторів ЖК, холів, коридорів, ресепшн та типових поверхів. Принципи залишаються незмінними: функціональність, довговічність рішень та естетика, яка не втрачає актуальності з часом.
Перед початком робіт важливо розуміти, від чого залежить ціна дизайн проекту місць загального користування. Вона формується з урахуванням площі, складності зонування, кількості інженерних систем та обсягу технічної документації. Саме проєкт дозволяє спрогнозувати бюджет, уникнути перевитрат та отримати контрольований результат без імпровізацій на етапі ремонту.
Перед початком робіт важливо розуміти, від чого залежить ціна дизайн проекту місць загального користування. Вона формується з урахуванням площі, складності зонування, кількості інженерних систем та обсягу технічної документації. Саме проєкт дозволяє спрогнозувати бюджет, уникнути перевитрат та отримати контрольований результат без імпровізацій на етапі ремонту.
Для замовників, які хочуть чітко зрозуміти можливості свого об’єкта, оптимальним рішенням стануть послуги дизайнера інтер’єру ціна. Під час консультації фахівець допоможе визначити концепцію оформлення місць загального користування, підібрати стиль, оцінити бюджет та запропонувати доцільні рішення саме для вашого житлового комплексу.
Якщо вам важливо працювати з перевіреним фахівцем, який розуміє специфіку житлових комплексів, дизайнер інтер’єрів київ від студії Бєлік забезпечить комплексний підхід — від ідеї до реалізації. Досвід роботи з комерційними та житловими об’єктами дозволяє створювати простори, що підкреслюють статус ЖК та підвищують його інвестиційну привабливість.
Якщо вам важливо працювати з перевіреним фахівцем, який розуміє специфіку житлових комплексів, дизайнер інтер’єрів київ від студії Бєлік забезпечить комплексний підхід — від ідеї до реалізації. Досвід роботи з комерційними та житловими об’єктами дозволяє створювати простори, що підкреслюють статус ЖК та підвищують його інвестиційну привабливість.
Важливо розуміти, що якісний хол, коридор чи ресепшн — це логічне продовження концепції, яку мешканці бачать у власному інтер’єр квартири. Саме цілісність усіх просторів формує довіру, комфорт та бажання жити в цьому комплексі роками.
Інтер’єрні рішення для місць загального користування від студії Бєлік — це не просто дизайн, а продумана система, яка працює на репутацію забудови, комфорт мешканців та довгострокову цінність об’єкта.
Інтер’єрні рішення для місць загального користування від студії Бєлік — це не просто дизайн, а продумана система, яка працює на репутацію забудови, комфорт мешканців та довгострокову цінність об’єкта.
Чому варто вибрати нас?