ІНТЕР’ЄР ОДНОКІМНАТНОЇ КВАРТИРИ СТУДІЇ В ЖК ФАЙНА ТАУН
Інтер єр однокімнатної квартири студії
Квартири студії - це актуальні варіанти нерухомості. Ідеальний варіант для молодих родин, одинаків та закоханих. Навіть родина з однією дитиною можуть зручно розміститися в такій оселі. Маючи власне, навіть невелике, житло дуже важливо відповідально віднестися до його облаштування.
Інтер єр однокімнатної квартири студії - це не про бажання розмістити всередині якомога більше речей та предметів. Спроба запровадити всі тренди та інновації на 40 м2. Дизайн студії повинен бути направленим на максимально раціональне та ергономічне використання простору.
Впровадивши вдалі архітектурні та дизайнерські рішення можна створити дійсно сучасний, затишний та зручний простір. Допоможуть в досягненні цієї мети дизайнери інтер'єрної компанії Бєлік. В нас є численні приклади облаштування невеликих об'єктів, які виглядають ідеально та цілком задовільняють всі потреби з власників. В портфоліо з реальними прикладами ви можете подивитися різні варіанти оформлення. В жк файна таун присутні наші дизайні, які відрізняються вартістю реалізації, стилістикою, кольорами, ідеєю.
Оригінальна та зручна студія в жк файна таун
Роздивляючись реальні приклади ви можете надихнутися на певні рішення. Це не означає, що дизайнер буде робити такий самий інтер'єр однокімнатної студії на вашому об'єкті. Певні рішення та поєднання покажуть, як може бути у квартирі зі схожими параметрами. Адже нерухомість в жк файна таун має однакове планування, підведення комунікацій тощо.
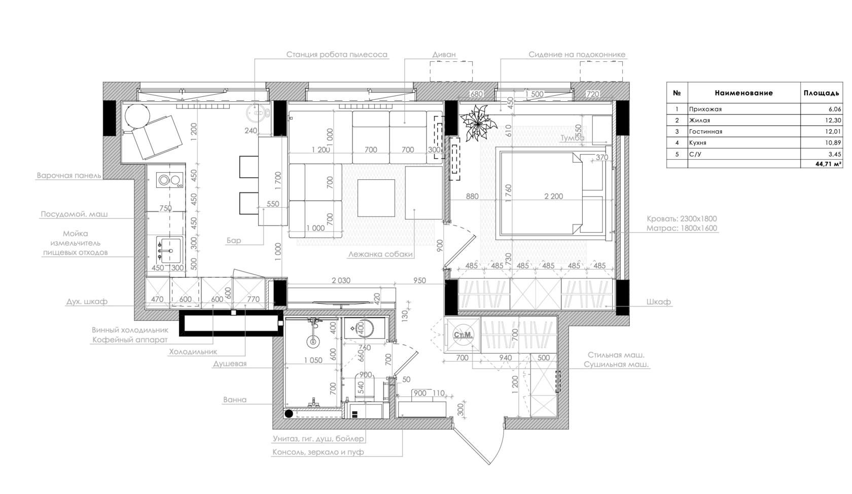
Нашими дизайнерами інтер'єрів оформлювалась не одна студія. На кожному об'єкті були запроваджені максимально ефективні рішення. З реального прикладу можно побачити, як передпокій плавно перетікає в кімнату загального користування. У приміщенні, одразу біля входу, присутні корпусні меблі. Великі вбудовані шафи слугують продовженням стіни не крадуть простору. Дозволяють вмістити все необхідне, при цьому не “перетягуючи” на себе візуальну увагу.
Просторі кімнати-студії - це особливість невеликих осель. Відмовившись від зайвих та непотрібних стін можна зберегти кілька м2. Візуально простора кімната дарує відчуття легкості та свіжості. Не переобтяжує та не вимагає додаткових витрат на облаштування - монтаж дверей, оформлення стін тощо.
Зонувати кімнату студію максимально легко. Для цього не потрібно змінювати колір стін або встановлювати перегородки. Достатньо виділити функціональні зони за допомогою меблів, освітлення, текстилю.
Зонувати кімнату студію максимально легко. Для цього не потрібно змінювати колір стін або встановлювати перегородки. Достатньо виділити функціональні зони за допомогою меблів, освітлення, текстилю.
Кухня, наприклад, займає одну зі стін. Дуже відповідно ставляться дизайнери інтер'єрного бюро Бєлік до оформлення робочої поверхні, підбору меблів. Всю техніку роблять вбудованою. Корпусні меблі обираються високі, аж до стель. Для фасадів використовують однотонну матову колористику (темно зелений, сірий). Від ручок та зайвого декору на меблях при облаштуванні однокімнатної студії відмовлятися. Чудово поєднуються матові фасади с фактурами дерева.
Розводять сірість якісним та багаторівневим освітленням. Робоча поверхня, барна стійка, зона приймання їжі та кожна окрема частина приміщення додатково підсвічуються. Обравши освітлювальні прилади цікавих форм дизайнерам вдається додати акцентів. Вони слугують не просто джерелом світла, а додатковими декоративними елементами.
Вважаючи на те, що квартири студії в жк файна таун невеликі (приблизно 40-50 м2), дизайнери інтер’єрів використовують кожний метр по-максимуму. Навіть підвіконня виконують певні функції. Можна їх зробити барною стійкою або продовженням робочої поверхні. Також актуальним стале облаштування зон для відпочинку. Дизайнери інтер'єрів роблять м'якими підвіконня, що дозволяє на них відпочивати (з чашкою кави, книгою тощо).
Вважаючи на те, що квартири студії в жк файна таун невеликі (приблизно 40-50 м2), дизайнери інтер’єрів використовують кожний метр по-максимуму. Навіть підвіконня виконують певні функції. Можна їх зробити барною стійкою або продовженням робочої поверхні. Також актуальним стале облаштування зон для відпочинку. Дизайнери інтер'єрів роблять м'якими підвіконня, що дозволяє на них відпочивати (з чашкою кави, книгою тощо).
Рішення з м'якими підвіконнями підходить для дитячої, кабінету, спальні або вітальні. Вітальня у квартирах студіях поєднана з кухнею, тому вона слугує її продовженням та відтворює загальну ідею. У випадку з об’єктом жк файна таун Інтер єр однокімнатної квартири студії має досить стриману та темну колористику. Зона вітальні тут також зроблена в кольорах темного зеленого, чорного, сірого. З додавання фактур дерева на підлозі, стінах, меблях. Затишок та цікаві акценти створено у студії завдяки м'яким меблям та декору в теплій колористиці (жовтий, бургунді). Дуже органічно та оригінально виглядає електрокамін у ТВ зоні.
В цій квартирі студії ще є спальня. В ній дотримана колористика та стилістика інтер'єру. Зроблена велика вбудована шафа, яка не виділяється. Підвіконня також використано в якості додаткового місця для відпочинку, сидіння. Велике зручне ліжко по центру виступає головним елементом спальні, спонукаючи до відпочинку.
В цій квартирі студії ще є спальня. В ній дотримана колористика та стилістика інтер'єру. Зроблена велика вбудована шафа, яка не виділяється. Підвіконня також використано в якості додаткового місця для відпочинку, сидіння. Велике зручне ліжко по центру виступає головним елементом спальні, спонукаючи до відпочинку.
Замовити дизайн інтер'єрів однокімнатної студії в ЖК Файна Таун
Звернувшись до інтер'єрної агенції Бєлік ви можете замовити дизайн однокімнатної квартири під ключ. Наші дизайнери створять унікальний інтер'єр, орієнтуючись на особливості об’єкта, ваші потреби, бюджет на індивідуальні побажання.
Окрім “промальованого” у 3Д візуалізаціях інтер'єру, нашими фахівцями прописується вся послідовність робіт. Тобто, з готовим дизайн проєктом вам лишиться звернутися до професійної бригади майстрів Не потрібно буде стирчати на об'єкті постійно, пояснювати кожний процес виконробу та контролювати послідовність. Якщо ви не знаєте до кого звернутися, студія інтер'єрів Бєлік може запропонувати послуги дизайну під ключ або ремонту. У першому випадку весь ремонт та реалізація проекта контролюватимуться дизайнером інтер'єрів від Бєлік. Це дозволить досягти максимальної відповідності результату до рішенні з візуалізацій. Ви не прийматимете активної участі у ремонті.
Замовляючи ремонт в компанії інтер’єрів Бєлік ви отримуєте якісну реалізацію всіх ідей. Укомплектована та перевірена бригада візьметься за відтворення дизайнерських рішень. Маючи реальний досвід майстри досягнуть результату, який був запланований на початку. Всі наші дизайн проєкти можна реалізувати. Підтвердженням цього виступають чисельні приклади з різних об'єктів (ЖК, вторинне житло, офіси тощо).
Саме дизайн проект квартири дозволяє перетворити студію на повноцінний житловий простір, де кожен метр має своє призначення. Для однокімнатних студій це особливо важливо, адже помилки у плануванні або розташуванні меблів можуть суттєво вплинути на комфорт. Завдяки продуманій документації, кресленням і візуалізаціям дизайн проект квартири дає чітке розуміння фінального результату ще до початку ремонту.
Не менш важливу роль у цьому процесі відіграє дизайнер для квартири. Саме він аналізує спосіб життя мешканців, кількість сценаріїв використання простору, потребу у зберіганні речей та технічні обмеження об’єкта. Професійний дизайнер для квартири допомагає уникнути хаотичних рішень і створює логічну структуру простору, в якій зручно жити щодня.
Не менш важливу роль у цьому процесі відіграє дизайнер для квартири. Саме він аналізує спосіб життя мешканців, кількість сценаріїв використання простору, потребу у зберіганні речей та технічні обмеження об’єкта. Професійний дизайнер для квартири допомагає уникнути хаотичних рішень і створює логічну структуру простору, в якій зручно жити щодня.
В умовах мегаполіса особливо актуальним є дизайн інтер’єру у києві, адже квартири-студії часто купують у сучасних житлових комплексах з типовими плануваннями. Саме локальний досвід дозволяє врахувати особливості будівництва, інженерних мереж та реальних умов експлуатації. Тому дизайн інтер’єру у києві завжди базується на поєднанні практичності, естетики та довготривалої актуальності рішень.
Варто розуміти, що дизайн квартири в києві — це не універсальний шаблон. Навіть студії з однаковим плануванням можуть мати абсолютно різний характер та атмосферу. Саме тому дизайн квартири в києві від студії Бєлік завжди створюється з урахуванням індивідуальних побажань клієнта, бюджету та майбутніх планів щодо використання житла — для себе, оренди чи продажу.
Варто розуміти, що дизайн квартири в києві — це не універсальний шаблон. Навіть студії з однаковим плануванням можуть мати абсолютно різний характер та атмосферу. Саме тому дизайн квартири в києві від студії Бєлік завжди створюється з урахуванням індивідуальних побажань клієнта, бюджету та майбутніх планів щодо використання житла — для себе, оренди чи продажу.
Завершальним і ключовим етапом стає дизайн проект інтер’єру квартири студії, який об’єднує всі рішення в єдину систему. Він включає планування, зони, освітлення, матеріали, меблі та технічні вузли, що дозволяє реалізувати проєкт без зайвих витрат і компромісів. Замовляючи дизайн проект інтер’єру квартири студії, ви отримуєте прогнозований результат і впевненість у тому, що простір буде не лише красивим, а й максимально зручним у щоденному житті.
Подивіться нашу презентацію