ВНУТРІШНІЙ РЕМОНТ БУДИНКУ У М. БРОВАРИ У КИЇВСЬКІЙ ОБЛАСТІ
Внутрішній ремонт будинку м. Бровари
Внутрішній ремонт будинку - це комплексний підхід та багато різних процесів, які дозволяють створити всередині комфортну атмосферу. Незалежно від величини забудови потрібно потурбуватися про зручність простору, безпеку та функціональність.
Інтер'єр повинен задовольняти потреби родини, покращувати їх рівень життя та дарувати відчуття затишку. Самостійно складно спланувати візуал та проміркувати всі процеси. Адже гарна картинка потребує багато дій та робіт. Складність ремонту, планування всіх процесів, підбір матеріалів та товарів, прийняття правильних рішень - це можна передбачити у дизайн проекті.
Дизайнер інтер'єрів планує всі процеси через схеми, креслення, 3Д візуалізації, розрахунки. Далі, ремонтно-будівельна бригада виконує внутрішній ремонт будинку за планом. Досягається бажаний результат без помилок, недопрацювань, очікувань та зайвих витрат.
Студія дизайн інтер'єрів Бєлік виконує якісні ремонти, згідно з договором та надаючи гарантії. Кожний наш простір є сучасним, персоналізованим, безпечним та функціональним. Особисто впевнитися в оригінальності та доцільності рішень можна, подивившись різні приклади реалізованих проектів. Власникам просторих будинків рекомендуємо ознайомитися з внутрішнім ремонтом будинку в м. Бровари.
Студія дизайн інтер'єрів Бєлік виконує якісні ремонти, згідно з договором та надаючи гарантії. Кожний наш простір є сучасним, персоналізованим, безпечним та функціональним. Особисто впевнитися в оригінальності та доцільності рішень можна, подивившись різні приклади реалізованих проектів. Власникам просторих будинків рекомендуємо ознайомитися з внутрішнім ремонтом будинку в м. Бровари.
Цей об’єкт не просто сучасний та естетичний. Кожне рішення в ньому орієнтовано на потреби та побажання власників. Процеси виконані якісно. Тому навіть через роки не виникає проблем в роботі комунікацій, використанні техніки або ефективності ідей.
Персоналізований ремонт для будинку в м. Бровари
Внутрішній ремонт будинку в м. Бровари заслуговує на ТОП сучасних інтер'єрів. Дивлячись на фото об'єкта, здається, що роздивляєшся картинки з Pinterest або ШІ. Кожне рішення - це ідеї та детально прописані рішення дизайнерів компанії Бєлік.
Вони не просто відобразили камін, а:
- спроектували його монтаж;
- додали місце для розташування дров;
- спланували ефективну роботу витяжки;
- підібрали матеріали, стійки до полум'я та високих температур тощо.
Кожне унікальне та оригінальне рішення прописували спочатку на схемах, після 3Д візуалізаціях та у технічній документації. Якщо були сумніви та питання, дизайнер інтер'єрів радився з іншими вузькопрофільними фахівцями, стосовно доцільності певних рішень.В такому випадку, маючи готовий дизайн проєкт, було легше виконувати внутрішній ремонт будинку в м. Бровари.
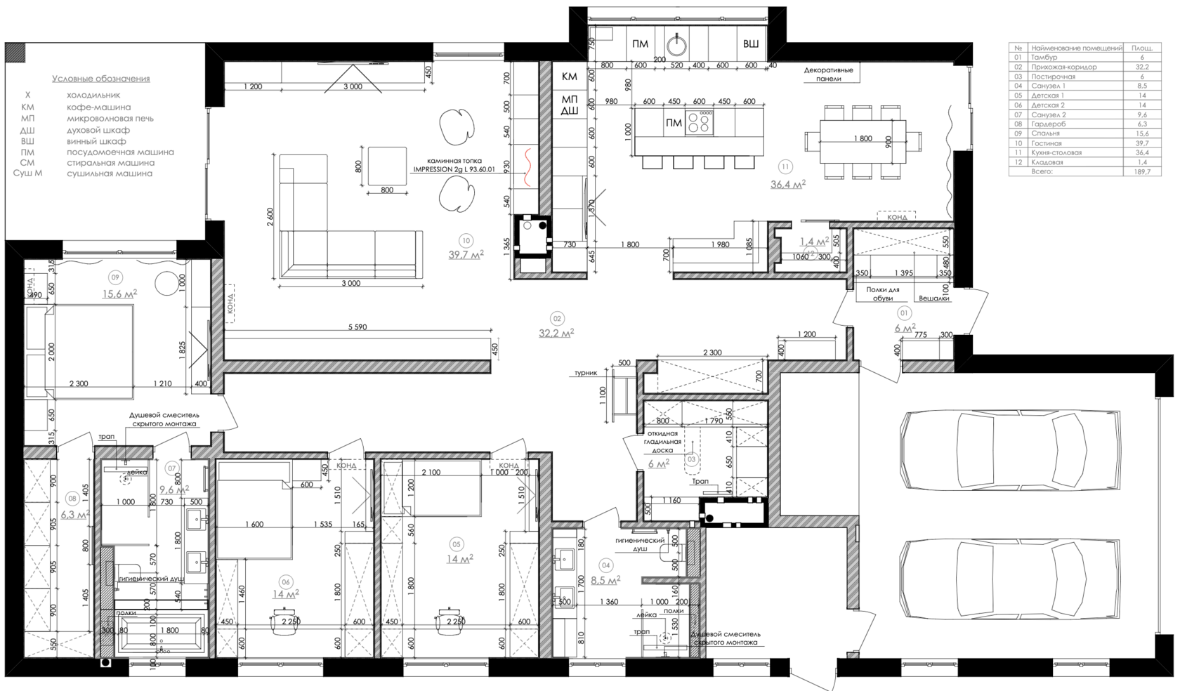
Цей об'єкт великий та призначений для проживання цілої родини. Тому обов'язково присутні житлові кімнати та приміщення загального користування. Замість того щоб поєднувати кухню з вітальнею, їх зробити окремими.
Цей об'єкт великий та призначений для проживання цілої родини. Тому обов'язково присутні житлові кімнати та приміщення загального користування. Замість того щоб поєднувати кухню з вітальнею, їх зробити окремими.
Від зайвих дверей відмовилися, але ці приміщення роз'єднані стінами та коридором. Причина полягає в тому, що вітальня стала особливим місцем відпочинку та релаксу. В ній розташовано великий та зручний диван. Камін - головна принада інтер'єру вітальні. Також в ній присутнього багато відкритих полиць, місць для зберігання за скляними дверима тощо. Декоративні елементи, книги, вази, посуд - все це не приховано за фасадами, а додано, як частина інтер'єру.
Ремонт виглядає вишукано завдяки використанню природних фактур та преміальних матеріалів. На підлозі великоформатна плита з фактурами мармуру. Присутні такі ж панелі в оздобленні акцентної стіни (зона каміна, ТВ). Оформлення виконано в сірих, нейтральних палітрах. Освітлення - у вигляді трекових систем та LED-підсвічування окремих зон (всередині шаф, над каміном та ТВ тощо).
Ремонт виглядає вишукано завдяки використанню природних фактур та преміальних матеріалів. На підлозі великоформатна плита з фактурами мармуру. Присутні такі ж панелі в оздобленні акцентної стіни (зона каміна, ТВ). Оформлення виконано в сірих, нейтральних палітрах. Освітлення - у вигляді трекових систем та LED-підсвічування окремих зон (всередині шаф, над каміном та ТВ тощо).
Не дивлячись на те, що кухня не була поєднана з вітальнею, вона все одно має вигляд кімнати-студії.Тут розмістили зону для приготування їжі та столову. Зона кухні максимально простора, функціональна та зручна. Присутня вся необхідна техніка (вбудована), інвентар та посуд. Зроблена велика робоча поверхня.
Особливістю виступає острів, в який вмонтована індукційна плита та рукомийник. В кухні багато посадкових місць, що дозволяє приймати якомога більше гостей. Крім просторого обіднього столу в зоні столової додатково є барна стійка. Вона виконувалася під замовлення, тому що є частиною острова. Родина може разом проводити час готуючи та коштуючи їжу, насолоджуватися кавою наодинці або в компанії гостей.
Особливістю виступає острів, в який вмонтована індукційна плита та рукомийник. В кухні багато посадкових місць, що дозволяє приймати якомога більше гостей. Крім просторого обіднього столу в зоні столової додатково є барна стійка. Вона виконувалася під замовлення, тому що є частиною острова. Родина може разом проводити час готуючи та коштуючи їжу, насолоджуватися кавою наодинці або в компанії гостей.
Дотримана в кухні сіра колористика з якісним природними матеріалами та матовими фактурами на меблях. Розводять такий витриманий інтер'єр живі рослини, фактури дерева. Дерев’яні фактури виконані у вигляді паркетної дошки на підлозі, панелей на стінах в житлових кімнатах, корпусів та фасадах шаф. Дерева не багато та воно виступає невеликим акцентом в інтер'єрі.
Естетика витриманого сірого дотримана в оформленні ванної кімнати, спальні, дитячої. Остання розбавлена насиченими кольорами синього, відповідно до індивідуальних інтересів та віку дитини. Кімната для меншого мешканця оформлена з урахуванням особливості його віку, статі. Тому присутні яскраві елементи, зони для ігор та відпочинку. Вмонтована шведська стінка для занять спортом, зручний стіл біля вікна для комфортного навчання. Додані зручні меблі для зберігання іграшок, літератури, особистих речей. Декорування стін за мотивами космосу - це саме те, що бажала бачити дитина у своїй кімнаті.
Естетика витриманого сірого дотримана в оформленні ванної кімнати, спальні, дитячої. Остання розбавлена насиченими кольорами синього, відповідно до індивідуальних інтересів та віку дитини. Кімната для меншого мешканця оформлена з урахуванням особливості його віку, статі. Тому присутні яскраві елементи, зони для ігор та відпочинку. Вмонтована шведська стінка для занять спортом, зручний стіл біля вікна для комфортного навчання. Додані зручні меблі для зберігання іграшок, літератури, особистих речей. Декорування стін за мотивами космосу - це саме те, що бажала бачити дитина у своїй кімнаті.
В будинку обов’язково (крім житлового простору) присутні технічні приміщення. В них також виконано внутрішній ремонт будинку. Обов’язково проводилися комунікації, монтувалася вся необхідна побутова техніка та електроніка, встановлювалися шафи та системи для зберігання. Правильно помірковані технічні приміщення дозволяють приховати більшість речей (швабри, сушарка, прасувальна дошка, кошик для білизни, точка доступу, праска, робот пилосмок, мийні засоби тощо).
Сезонний одяг та взуття, застарілі речі та багато іншого також зберігають в цих приміщеннях. Це дозволяє зберегти простір та досягнути візуальної естетики. Перед очима лишаються лише естетичні та відповідаючи загальній концепції інтер'єру речі.
Сезонний одяг та взуття, застарілі речі та багато іншого також зберігають в цих приміщеннях. Це дозволяє зберегти простір та досягнути візуальної естетики. Перед очима лишаються лише естетичні та відповідаючи загальній концепції інтер'єру речі.
Замовити внутрішній ремонт будинку з гарантіями якості та бажаною естетикою ви можете в інтер'єрній студії Бєлік. Ми не просто виконуємо роботи професійно. Ми відповідально ставимося до кожного процесу та орієнтуємося на особливості конкретного об'єкта. Створюємо затишні та придатні для тривалого життя простори. Навіть через 10-20 років вони залишаються сучасними та функціональним, не викликають незручностей та бажання кардинальних змін.
Плануючи внутрішній ремонт будинку або квартири, важливо ще на старті розуміти дизайн проект вартість. Саме дизайн-проєкт дозволяє спрогнозувати бюджет, визначити обсяги робіт і уникнути хаотичних рішень у процесі реалізації. Усі етапи, матеріали та технічні рішення прописуються заздалегідь, що забезпечує контроль якості та фінального результату.
Компанія Бєлік виконує квартири ремонт та ремонти приватних будинків за чітко розробленими проєктами. Такий підхід дозволяє досягти повної відповідності між 3D-візуалізаціями та готовим інтер’єром, уникнути переробок і забезпечити довговічність усіх рішень — від комунікацій до декоративних елементів.
Компанія Бєлік виконує квартири ремонт та ремонти приватних будинків за чітко розробленими проєктами. Такий підхід дозволяє досягти повної відповідності між 3D-візуалізаціями та готовим інтер’єром, уникнути переробок і забезпечити довговічність усіх рішень — від комунікацій до декоративних елементів.
Якщо вас цікавить замовити ремонт квартири Київ або внутрішній ремонт будинку з повним супроводом, фахівці студії допоможуть підібрати оптимальний формат співпраці. Ви отримаєте чіткий план дій, зрозумілий бюджет і впевненість у якості виконаних робіт.
Над кожним об’єктом працюють найкращі дизайнери інтер’єру Києва, які поєднують естетику, функціональність та технічну доцільність. Саме завдяки цьому інтер’єри студії Бєлік залишаються актуальними, зручними та комфортними навіть через багато років після завершення ремонту.
Над кожним об’єктом працюють найкращі дизайнери інтер’єру Києва, які поєднують естетику, функціональність та технічну доцільність. Саме завдяки цьому інтер’єри студії Бєлік залишаються актуальними, зручними та комфортними навіть через багато років після завершення ремонту.
Ознайомитися з реалізованими об’єктами та переконатися в рівні виконання робіт ви можете, переглянувши дизайн інтер’єру портфоліо. Внутрішній ремонт будинку в м. Бровари — яскравий приклад того, як професійний підхід дозволяє створити простір, у якому поєднані комфорт, безпека та продумана естетика.
Подивіться нашу презентацію