ДИЗАЙН ДАЧНОГО БУДИНКУ У С. ВИШЕНЬКИ У КИЇВСЬКІЙ ОБЛАСТІ
• Локація - с. Вишеньки у Київській області, Україна
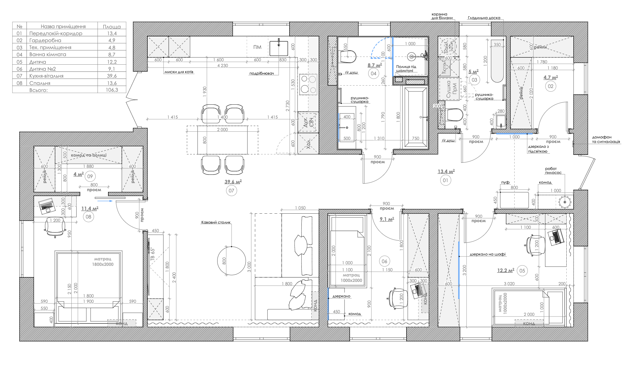
• Площа будинку – 106,3 м²
• Формат роботи – дизайн проєкт інтер'єру
• Площа будинку – 106,3 м²
• Формат роботи – дизайн проєкт інтер'єру
Дизайн дачного будинку доволі складно самостійно поміркувати до дрібниць. Крім візуала дуже важливим є створення комфортного простору для всіх мешканців. Також варто заздалегідь подбати про технічні аспекти прокладання комунікацій, безпеку та зручність в середні. Адже знаходячись на дачі тривалий час або короткий термін люди прагнуть відпочивати, а не постійно щось лагодити та доводити ремонт до ідеалу.
Отримати дійсно збалансований, візуально естетичний та комфортний простір не за всі гроші світу цілком реально. Для цього достатньо звернутися до перевірених виконавців, довірити їм дизайн інтер'єру ремонт.
Отримати дійсно збалансований, візуально естетичний та комфортний простір не за всі гроші світу цілком реально. Для цього достатньо звернутися до перевірених виконавців, довірити їм дизайн інтер'єру ремонт.
Інтер’єрна компанія Бєлік професійно спеціалізується на створенні сучасних, персоналізованих та затишних просторів. Ви можете замовити дизайн проект окремо або інтер'єр “під ключ” (з ремонтом, авторським наглядом). Незалежно від типу наданої послуги, агенція Бєлік робить це професійно та якісно.
Підтвердження цього є 100+ вдалих прикладів. В портфоліо ви можете побачити оформлення квартир у новобудовах та старому фонді, дизайн дачного будинку, таунхаусу чи коттеджу. Для кожного об'єкту та безпосередньо замовника використовують індивідуальний підхід.
Не лише вартість дизайн проєкта буде відома на старті. Вона фіксована в студії Бєлік. Дизайн квартири ціна за квадратний метр також є прогнозованою наперед. Розробляючи проектну документацію дизайнер орієнтується на зазначений клієнтом бюджет, обираючи матеріали, архітектурні та ремонтні роботи, меблі тощо.
Підтвердження цього є 100+ вдалих прикладів. В портфоліо ви можете побачити оформлення квартир у новобудовах та старому фонді, дизайн дачного будинку, таунхаусу чи коттеджу. Для кожного об'єкту та безпосередньо замовника використовують індивідуальний підхід.
Не лише вартість дизайн проєкта буде відома на старті. Вона фіксована в студії Бєлік. Дизайн квартири ціна за квадратний метр також є прогнозованою наперед. Розробляючи проектну документацію дизайнер орієнтується на зазначений клієнтом бюджет, обираючи матеріали, архітектурні та ремонтні роботи, меблі тощо.
Шукаючи приклад затишного, функціонального та естетичного інтер'єра, радимо звернути увагу на об’єкт в с. Вишеньки у Київській області. Цей дизайн дачного будинку відображає ідеальну гармонію функціональності та психологічного комфорту.
Дачний будинок в с. Вишеньки у Київській області — переваги інтер'єру
Виглядає будинок в с. Вишеньки у Київській області максимально спокійним. З професійного погляду, його навряд чи можна назвати “посереднім”. Адже це якісний та комерційно успішний сучасний стандарт.
Високо оцінити цей дизайн дачного будинку можна відразу за кількома критеріями:
- висока технічна грамотність — ідеально продумані вузли примикання, вбудовані трекові системи освітлення, прихований монтаж карнизів для штор та тіньові шви;
- дорога палітра матеріалів — використання широкоформатного керамограніту, шпонованих панелей та інтегрованої підсвітки потребує значних бюджетів;
- естетика “тихої розкоші” — дизайн не вражає кричущими деталями, а бере якістю текстур і гармонією пропорцій;
- універсальність — кожне рішення є “безпечним”, що ідеально для комфортного життя.
Колірна гама в дачному будинку с. Вишеньки у Київській області базується на теплих природних відтінках (бежевий, пісочний, дерево, сірий камінь). Поєднання дерева, текстилю та м’якого освітлення створює атмосферу спокою, що допомагає розслабитися.
Дизайнером було використано велику кількість сценаріїв світла (трекові системи, підсвітка дзеркал, акцентні люстри над столом). Все це дозволяє змінювати настрій приміщення — від яскравого робочого до приглушеного вечірнього.
Дизайнером було використано велику кількість сценаріїв світла (трекові системи, підсвітка дзеркал, акцентні люстри над столом). Все це дозволяє змінювати настрій приміщення — від яскравого робочого до приглушеного вечірнього.
Зонування та простір у дачному будинку
Щоб досягти комфорту дизайнер інтер'єру максимально грамотно підійшов до планування та зонування. Забудова має 100 м2 в один поверх. На цій площі вдало розмістили:
- вітальню-кухню;
- спальню;
- 2 дитячі;
- гардеробну;
- технічне приміщення (пральня);
- ванну кімнату.
Інтер'єр демонструє грамотне використання відкритого простору (open space). Кухня-вітальня об’єднує зону приготування їжі, обідню групу та зону відпочинку. Це дозволяє членам родини бути разом, навіть займаючись різними справами. Обідній стіл для родини тут виступає розділовим елементом між кухнею та вітальнею, який не краде простір та виконує свою функцію.
Чіткий, зрозумілий розподіл та зонування дозволили раціонально використати кожний м2. Замовлені напряму у виробників корпусні меблі це ідеальне рішення, яке сприяло цьому. Завдяки індивідуальному виготовленню гарнітура вдалося інтегрувати певні елементи, зробити цілі меблеві групи, навіть в нішах та невеликих просторах створити місця для зберігання.
Вибір матеріалів та форм для меблів від самого початку було зроблено з орієнтованістю на спрощення побуту. Мова йде про закрите зберігання. Велика кількість вбудованих шаф дозволяє легко підтримувати візуальний порядок, ховаючи побутові речі. Гладкі поверхні, відсутність зайвого декору та підвісна сантехніка значно полегшують прибирання.
Вибір матеріалів та форм для меблів від самого початку було зроблено з орієнтованістю на спрощення побуту. Мова йде про закрите зберігання. Велика кількість вбудованих шаф дозволяє легко підтримувати візуальний порядок, ховаючи побутові речі. Гладкі поверхні, відсутність зайвого декору та підвісна сантехніка значно полегшують прибирання.
Господарська зона у вигляді пральної зони з сушильною машиною та місцем для прасування — це "серце" логістики будинку. Багато вбудованих та відкритих систем зберігання дозволяє зручно розмістити техніку, інвентар, мийні засоби. Для зручності в цьому приміщенні було зроблено зону додаткового санвузла (унітаз+рукомийник).
Господарський санвузол завдяки винесенню техніки в технічні приміщення вдалося зробити максимально просторим. В середні вдало розмістили душову кабіну та окрему ванну, відділивши їх частиною стіни. Великий рукомийник, кругле дзеркало з підсвічуванням, інтегровані у стіни полиці, інсталяції та приховані системи зберігання створили особливий затишок в цьому приміщенні.
Господарський санвузол завдяки винесенню техніки в технічні приміщення вдалося зробити максимально просторим. В середні вдало розмістили душову кабіну та окрему ванну, відділивши їх частиною стіни. Великий рукомийник, кругле дзеркало з підсвічуванням, інтегровані у стіни полиці, інсталяції та приховані системи зберігання створили особливий затишок в цьому приміщенні.
Окремо варто відзначити гардеробну систему. Чітке розділення на секції для вішаків, полиці та висувні шухляди дозволяє кожному члену родини мати свій простір для речей, що мінімізує ранковий хаос.
Спальня та дитячі зони виглядають сучасними, але при цьому затишними. Вони не перевантажені яскравими кольорами, що сприяє кращому фокусуванню та якісному сну. Наявність всіх необхідних меблів та їх у тон загальному інтер’єру зробили перехід між кімнатами гармонійним.
Замовити розробку інтер'єру в схожій концепції (тиха розкіш) можна, як для будинку, так і для квартири. В такому випадку ціна на ремонт квартир Київ залежатиме від закладеного на старті бюджету, прийнятих дизайнерських рішень та площі об’єкта.
В інтер’єрній компанії Бєлік створюються дизайни, які виглядають дорого, але залишаються живими та пристосованими до реальних потреб щоденного життя родини.
Спальня та дитячі зони виглядають сучасними, але при цьому затишними. Вони не перевантажені яскравими кольорами, що сприяє кращому фокусуванню та якісному сну. Наявність всіх необхідних меблів та їх у тон загальному інтер’єру зробили перехід між кімнатами гармонійним.
Замовити розробку інтер'єру в схожій концепції (тиха розкіш) можна, як для будинку, так і для квартири. В такому випадку ціна на ремонт квартир Київ залежатиме від закладеного на старті бюджету, прийнятих дизайнерських рішень та площі об’єкта.
В інтер’єрній компанії Бєлік створюються дизайни, які виглядають дорого, але залишаються живими та пристосованими до реальних потреб щоденного життя родини.
Подивіться нашу презентацію