УКРАЇНСЬКИЙ ЕТНО СТИЛЬ В ІНТЕР’ЄРІ КВАРТИРИ В ЖК WEST HOUSE У КИЄВІ
• Локація - ЖК West House, Київ, Україна
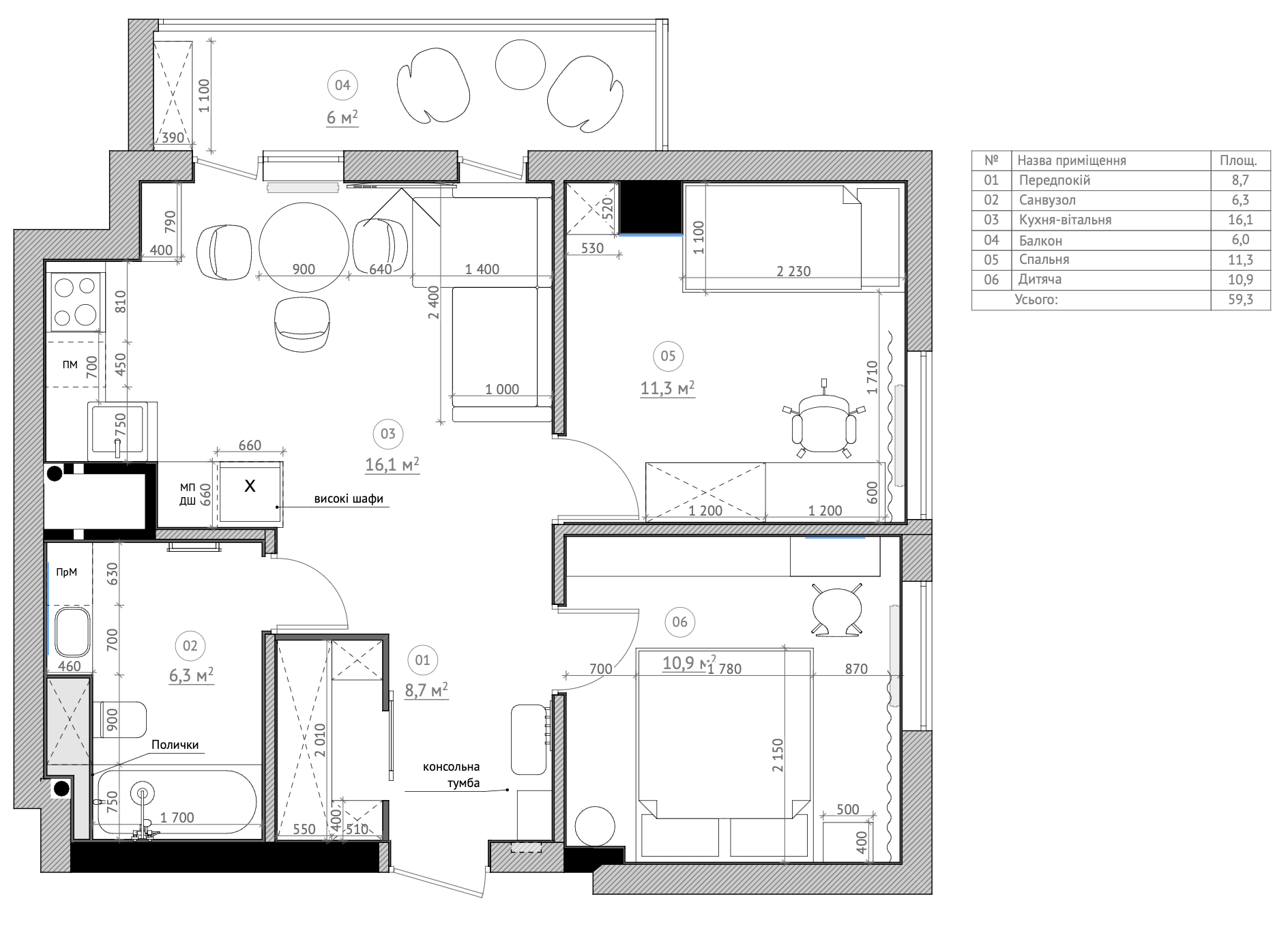
• Площа квартири – 59,3 м²
• Формат роботи – дизайн проєкт інтер'єру
• Площа квартири – 59,3 м²
• Формат роботи – дизайн проєкт інтер'єру
Складно знайти фахівця, який відобразіть ваші забаганки та задовольнить потреби при облаштуванні інтер'єру. Ще складніше, якщо потрібен дизайнер інтер єру у Польщі. Адже мовний бар’єр, нерозуміння побуту українців, не бажання підлаштовуватися під індивідуальні запити, висока вартість робіт та багато інших проблем можуть виникати вже під час планування дизайну.
Якщо ви хочете український етно стиль в інтер'єрі квартири, то доведеться довго шукати фахівця, який відтворить подібний запит. Інтер'єрна компанія Бєлік облаштує ваш побут, згідно з індивідуальними побажаннями, навіть, якщо ви знаходитесь за кордоном. Для цього в нас зібрана команда, де присутній дизайнер інтер єру Варшава, Гданськ, Краків та інші Польські міста.
Якщо ви хочете український етно стиль в інтер'єрі квартири, то доведеться довго шукати фахівця, який відтворить подібний запит. Інтер'єрна компанія Бєлік облаштує ваш побут, згідно з індивідуальними побажаннями, навіть, якщо ви знаходитесь за кордоном. Для цього в нас зібрана команда, де присутній дизайнер інтер єру Варшава, Гданськ, Краків та інші Польські міста.
Розробляється не лише дизайн проект, але й виконується ремонт під ключ з авторським наглядом (за потреби). Агенція інтер'єрів Бєлік працює за чіткими принципами, ставлячи на перше місце індивідуальні потреби мешканців, їх побажання до оформлення, здоровий глузд та правила ергономіки. Якщо ви бажаєте побачити український етно стиль в інтер'єрі квартири чи будинку, знаходячись у Польщі (іншому місті Європи), наші дизайнери врахують це.
Студія інтер'єрів Бєлік має багато прикладів розробки та реалізації просторів в етно направленнях. Традиційний український стиль має особливий попит, адже він відображає ідентичність та повагу до своєї нації.
Студія інтер'єрів Бєлік має багато прикладів розробки та реалізації просторів в етно направленнях. Традиційний український стиль має особливий попит, адже він відображає ідентичність та повагу до своєї нації.
Існує величина різноманітність матеріалів та дизайнерських “фішок”, які роблять оформлення житла в етнічному направленні сучасним. Якщо мова йде про вартість дизайн квартир вона в інтер'єрній компанії Бєлік не залежить від обраного стиля та колористики. Приблизний кошторис розраховується на стадії розробки проєкт, з орієнтованістю на бюджет замовників.
Ідеальним прикладом того, як може виглядати український етно стиль в інтер'єрі квартири слід вважати об’єкт в ЖК West House. Тут наочно показаний код нації, але він дуже гармонійно вплетений в концепцію сучасного житла.
Стиль не кричить про своє походження, а шепоче про нього через фактури, об'єми та ледь помітні символи. Виглядає квартира максимально оригінально та затишно. Сам ремонт є функціональним, зручним та проміркованим до дрібниць.
Ідеальним прикладом того, як може виглядати український етно стиль в інтер'єрі квартири слід вважати об’єкт в ЖК West House. Тут наочно показаний код нації, але він дуже гармонійно вплетений в концепцію сучасного житла.
Стиль не кричить про своє походження, а шепоче про нього через фактури, об'єми та ледь помітні символи. Виглядає квартира максимально оригінально та затишно. Сам ремонт є функціональним, зручним та проміркованим до дрібниць.
Український етно стиль в інтер'єрі квартири — вдалі рішення в оформленні
Перетинаючи поріг квартири в ЖК West House одразу складається враження, що потрапив у дизайнерську квартиру. Оформлена вона у сучасному етно мінімалізмі. Придивляючись до дрібниць стає зрозуміла загальна концепція та глибокий сенс оформлення. Адже саме в деталях відчувається тонка межа традицій, історії та менталітету.
Український етно стиль в інтер'єрі квартири ЖК West House — це не буквальне відтворення традиційної хати, а інтелектуальна стилізація під український культурний код. Проявляється етно стиль у таких рішеннях:
- текстурний символізм — об’ємні настінні панно у дитячій кімнаті є прямою відсилкою до традиційної вишивки або ткацтва;
- геометричний орнамент — виконанийвиконаний у техніці барельєфа, він нагадує візерунки "світового дерева" або восьмикутні зірки, характерні для українського рушника;
- ефект мазанки — матові, злегка фактурні стіни у спальні та вітальні нагадують оновлену техніку глиняного тинькування, але у сучасному виконанні;
- матеріали та "землисті" відтінки — етно-стиль завжди тяжіє до природності, тому на об'єкті присутньо багато дерева у оздобленні, виборні меблів, декоруванні;
- колірна гама — використані автентичні відтінки фарбованого льону, вовни та теракоти (в акцентах дитячої);
- сучасне переосмислення текстилю — круглий плетений килим у дитячій має фактури традиційних домотканих доріжок, але у більш сучасному форматі;
- текстиль ліжка — використання грубих переплетень тканини та багатошаровості створює затишок, характерний для сільського інтер'єру, де ліжко завжди було центром оселі;
- декор як артефакт — етнос нашого народу відображено через обрані вази недосконалі форми та інші предмети;
- люстри-хмари — світло у дитячій нагадує паперові ліхтарики або вироби з соломки, що додає простору легкості та автентичного настрою.
Якщо дизайнери інтер єру Гданськ або іншому місті світу будуть відтворювати оселю в традиційному стилі, він виглядатиме доцільно. На цьому об'єкті всі цікаві етно елементи ідеально поєднанні з сучасними рішеннями оформлення. Дзайнери інтер'єру вдало поєднали "старе" та "нове". Тому дизайн лишиться актуальним тривалий час та відповідатиме всім європейським стандартам оформлення.
У квартирі класичні молдинги на стінах (європейська традиція) межують з українським орнаментом. Це демонструє образ сучасної української родини, яка інтегрована у світ, але пам'ятає своє коріння. Також виконана мебель на замовлення з вбудованими системами зберігання, скляними фасадами, підсвічуванням полиць, “паруючими” елементами. Впроваджені на об'єкті також останні інновації. Обрана сучасні побутова техніка та сантехніка. Дотримано вільне планування, з відсутністю непотрібних перегородок та дверей (де це можливо).
У квартирі класичні молдинги на стінах (європейська традиція) межують з українським орнаментом. Це демонструє образ сучасної української родини, яка інтегрована у світ, але пам'ятає своє коріння. Також виконана мебель на замовлення з вбудованими системами зберігання, скляними фасадами, підсвічуванням полиць, “паруючими” елементами. Впроваджені на об'єкті також останні інновації. Обрана сучасні побутова техніка та сантехніка. Дотримано вільне планування, з відсутністю непотрібних перегородок та дверей (де це можливо).
Кілька сценаріїв освітлення з використанням трекових систем та точкових світильників, LED-підсвічуванням окремих зон та елементів — ще один елемент сучасності, який створює функціональний простір.
В загальному розумінні цей дизайн квартири виглядає максимально естетично, зрозуміло та гармонійно. Без різких переходів, переобтяження простору непотрібними деталями та незрозумілими конструкціями. Кожне рішення тут плавно вплетено в інтер'єр. Відображає певну ідею та має реальний сенс. В такій квартирі буде комфортно знаходитись тривалий час, без бажання щось додати чи переробити.
Отримати дійсно якісний ремонт з відображенням вашого сприйняття світу цілком реально. Потрібно лише довірити реалізацію проектної документації перевіреним фахівцям. Звернувшись до інтер'єрної компанії Бєлік ви отримаєте результат, який на 100% відповідатиме ідеям з проекта. Буде це етно стиль, сучасна класика, сміливий хай-тек чи вишуканий артдеко — кожний наш об’єкт реалізується на професійному рівні, з дотриманням чітких термінів та бюджету. З наданням гарантій якості.
В загальному розумінні цей дизайн квартири виглядає максимально естетично, зрозуміло та гармонійно. Без різких переходів, переобтяження простору непотрібними деталями та незрозумілими конструкціями. Кожне рішення тут плавно вплетено в інтер'єр. Відображає певну ідею та має реальний сенс. В такій квартирі буде комфортно знаходитись тривалий час, без бажання щось додати чи переробити.
Отримати дійсно якісний ремонт з відображенням вашого сприйняття світу цілком реально. Потрібно лише довірити реалізацію проектної документації перевіреним фахівцям. Звернувшись до інтер'єрної компанії Бєлік ви отримаєте результат, який на 100% відповідатиме ідеям з проекта. Буде це етно стиль, сучасна класика, сміливий хай-тек чи вишуканий артдеко — кожний наш об’єкт реалізується на професійному рівні, з дотриманням чітких термінів та бюджету. З наданням гарантій якості.
Подивіться нашу презентацію