СТИЛЬ АРТ ДЕКО В ІНТЕР’ЄРІ КВАРТИРИ В ЖК МІСТО КВІТІВ У КИЄВІ
Стиль арт деко в інтер'єрі квартири - це про бажання проживати в витонченій елегантності та комфортні. Обирають це направлення справжні візуали та естети. Ті, хто прагне оточувати себе красою кожного дня. Самостійно складно відтворити арт-деко, адже для цього потрібно знатися на всіх тонкощах цього стиля. Крім вибору кольорів та товарів за власним бажанням, варто орієнтуватися в особливостях розподілу простору. Його оптимального використання. Поєднанні всіх елементів між собою. Технічних питаннях проведення ремонту.
Треба не лише досягти краси та розставити по кімнаті коштовні меблі. Важливо створити ту саму атмосферу розкоші, без втрати зручності та комфорту. В арт деко всі комунікації та певні ремонтні процеси, техніка з електронікою повинні бути прихованими. Саме дизайн проєкт квартири київ відображає, як це можна правильно зробити. Через проектну документацію ви знайомитеся з майбутнім інтер'єром вашого об'єкта, всіма ремонтними та технічними процесами. Дизайнер підбере правильні матеріали та товари для інтер'єру, досягне зручності простору, спланує всі ремонтні роботи у правильній послідовності.
Треба не лише досягти краси та розставити по кімнаті коштовні меблі. Важливо створити ту саму атмосферу розкоші, без втрати зручності та комфорту. В арт деко всі комунікації та певні ремонтні процеси, техніка з електронікою повинні бути прихованими. Саме дизайн проєкт квартири київ відображає, як це можна правильно зробити. Через проектну документацію ви знайомитеся з майбутнім інтер'єром вашого об'єкта, всіма ремонтними та технічними процесами. Дизайнер підбере правильні матеріали та товари для інтер'єру, досягне зручності простору, спланує всі ремонтні роботи у правильній послідовності.
Послуга дизайн проекту надається на старті. Вона є фундаментом для всього подальшого ремонту. Сама вартість дизайн проекту будинку чи квартири в перевірених компаніях фіксована (залежить від площі об'єкта). В інтер’єрній компанії Бєлік створюють затишні, естетичні, сучасні та унікальні простри.
Наші співробітники не лише гармонійно зображують стиль арт деко в інтер'єрі квартири на 3Д візуалізаціях. Дизайнери інтер’єрної студії покроково прописують весь шлях з досягнення мети через схеми, плани, технічну документацію, чіткі розрахунки. В інтер’єрному бюро Бєлік ви можете замовити проєкт та його реалізацію (ремонт, нагляд) з гарантіями якості.
Наші співробітники не лише гармонійно зображують стиль арт деко в інтер'єрі квартири на 3Д візуалізаціях. Дизайнери інтер’єрної студії покроково прописують весь шлях з досягнення мети через схеми, плани, технічну документацію, чіткі розрахунки. В інтер’єрному бюро Бєлік ви можете замовити проєкт та його реалізацію (ремонт, нагляд) з гарантіями якості.
Студія інтер'єрів Бєлік має 10 річний досвід створення розкішних та функціональних просторів. Складно визначитися серед великої кількості реалізованих прикладів. Якщо ви прагнете жити в благородному, коштовному та максимально вишуканому арт-деко, радимо подивитися фото з об'єкта ЖК Місто Квітів.
Це затишна та вишукана квартира, яка створювалася з орієнтованістю на індивідуальні побажання замовників. Кожна дрібниця тут має значення. При всій розкоші стиля, саме приміщення зроблено функціональним та ергономічним. Доцільність рішень роблять цей артдеко оптимальним. Якісний ремонт не викличе необхідності щось виправити або бажання щось змінити навіть через десятиріччя.
Це затишна та вишукана квартира, яка створювалася з орієнтованістю на індивідуальні побажання замовників. Кожна дрібниця тут має значення. При всій розкоші стиля, саме приміщення зроблено функціональним та ергономічним. Доцільність рішень роблять цей артдеко оптимальним. Якісний ремонт не викличе необхідності щось виправити або бажання щось змінити навіть через десятиріччя.
Арт деко в інтер'єрі квартири ЖК Місто Квітів - естетика в кожній дрібниці
В цій квартирі були використані кольори, фактури та відтінки білого кольору. Чітка геометрія в зонуванні, оздобленні, виборі меблів, освітлювальних приладів, декоруванні - база артдеко, яка була використана.
Естетика створена завдяки використанню декоративних акцентів. В кожній з кімнат присутнє декорування стін:
- дзеркальними та металевими елементами;
- підсвічуванням по периметру стін та стель LED стрічками;
- панелями із каремогранітних плит у фактурах мармуру;
- використання м’яких паленій - цей хід використали в спальні, замість м’якого узголів'я.
Квартира в ЖК Місто Квітів максимально світла. Має багато вікон, які не закриті корпусними меблями. Багато природного світла гарно відбивається від глянцевих поверхонь і металевих деталей.
Не дивлячись на те, що це арт деко, у квартирі немає багато декору та складних архітектурних рішень. Краси досягнуто завдяки якісним роботам та матеріалам. Багаторівневе освітлення, декоровані стіни, дизайнерські меблі та оздоблення з сегмента преміум вже створюють цей ефект розкоші.
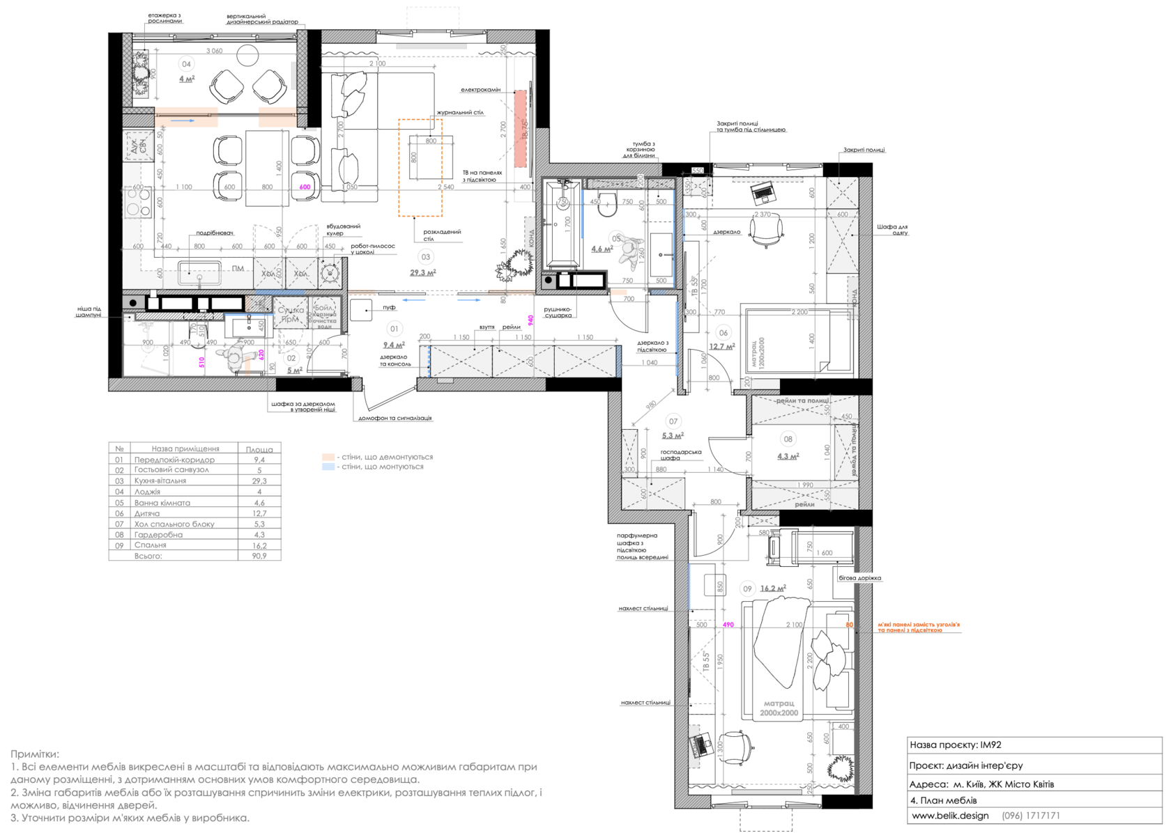
На об’єктні не робити великого перепланування, лишивши більшість кімнат в тому ж вигляді. Невеликі ніші перетворити в приховані шафи, гардеробні, зручні полиці для зберігання. Ці меблі не впадають в очі, але дозволяють зберігати майже всі речі за дверима. Техніка та інвентар для прибирання також. Щитові, бойлери, сушарка, кошик для білизни, пральна машина, подрібнювач їжі - це все не привертає зайвої уваги та не займає місця в зонах відпочинку.
Не дивлячись на те, що це арт деко, у квартирі немає багато декору та складних архітектурних рішень. Краси досягнуто завдяки якісним роботам та матеріалам. Багаторівневе освітлення, декоровані стіни, дизайнерські меблі та оздоблення з сегмента преміум вже створюють цей ефект розкоші.
На об’єктні не робити великого перепланування, лишивши більшість кімнат в тому ж вигляді. Невеликі ніші перетворити в приховані шафи, гардеробні, зручні полиці для зберігання. Ці меблі не впадають в очі, але дозволяють зберігати майже всі речі за дверима. Техніка та інвентар для прибирання також. Щитові, бойлери, сушарка, кошик для білизни, пральна машина, подрібнювач їжі - це все не привертає зайвої уваги та не займає місця в зонах відпочинку.
Стиль арт деко в інтер'єрі квартири в ЖК Місто Квітів має такі ефективні рішення:
- біокамін у вітальні;
- окремі меблеві групи в кімнатах - в дитячій стіл переходить у шафу, у спільні вздовж стіни розміщено комод з робочим місцем та косметичним столиком, розкладний стіл у вітальні;
- виконаний із дзеркально-металевих фасадів журнальний столик;
- скляні розсувні двері між вітальнею та кімнатою студією, які дозволяють або зробити дві окремі кімнати або залишити приміщення більш просторим;
- ТВ розташовано на декоративній панеляі, яка виступає додатковим акцентним елементом дизайну;
- м’які меблі (диван, крісла, пуф, ліжко) виготовлялися під замовлення з преміальних тканин, з використанням рельєфних форм;
- теплі підлоги - майже по всій квартирі укладка керамогранітної плити в мармурових фактурах, тому дизайнер подбав про комфорт та тепло мешканців;
- освітлення - багаторівневе та максимально різноманітне.
Окремо варто відзначити рішення в освітленні. У квартирі використані світлодіодні стрічки в стелі та стінах, трекові системи, точкові світильники, дизайнерські люстри геометричних форм, настінні прилади. Освітлення задає акцентів та дозволяє підсвітити окремі зони. Використовуючи різні прилади можна впливати на атмосферу. Спокій та затишок ввечері через теплий світ. Активній дії та робочий настрій через більш насичене, яскраве освітлення.
В інтер'єрній компанії Бєлік створюють дивовижні простори, які є втіленням мрії клієнтів про власний простір. Наші дизайн виступають відтворенням особистості, прагнень, рівня життя та світогляду клієнтів. Є реалізовані об’єкти, максимально не схожі за візуалом. Але всі вони є ергономічними, технічно правильно спроектованими, безпечними, зручними та затишними.
В інтер'єрній компанії Бєлік створюють дивовижні простори, які є втіленням мрії клієнтів про власний простір. Наші дизайн виступають відтворенням особистості, прагнень, рівня життя та світогляду клієнтів. Є реалізовані об’єкти, максимально не схожі за візуалом. Але всі вони є ергономічними, технічно правильно спроектованими, безпечними, зручними та затишними.
Через дизайн проєкт квартири Київ ціна якого окуповує себе вже на початку ремонту, ви можете побачити бажаний візуал. В цьому документі не просто “намалюють” вашу мрію. В ньому пропишуть чіткий шлях до результату. Незалежно від того, який саме стиль чи складність ремонту буде обрана вартість дизайн проекту інтер'єру у Києві від компанії Бєлік буде фіксованої. Впливає на ціну лише площа об'єкта.
Подивіться нашу презентацію