ДИЗАЙН ПРОЕКТ ДВОКІМНАТНОЇ КВАРТИРИ У ЖК ВАРШАВСЬКИЙ 2
Отримавши ключ від власної квартири більшість людей починають активно уявляти інтер'єр всередині. Крім візуальної частини, дуже важливо проміркувати весь ремонт, з послідовністю процесів та необхідними товарами. Припустившись помилок від самого початку, можна занапастити все житло та позбавити себе можливості комфортно мешкати. Навіть наявність квартири у сучасному ЖК Варшавський 2 не дає гарантії затишку. Адже такі об'єкти, частіше за все, здаються повністю пустими та з вільним плануванням.
Ви отримуєте “голі” стіни та одну простору коробку. Навіть перегородок та розподілу на кімнати часто забудовник не робить. Таке приміщення схоже на “чистий аркуш”. Ви сумісно з дизайнером інтер'єрів створюєте на цьому об’єкті персоналізоване житло.
Ви отримуєте “голі” стіни та одну простору коробку. Навіть перегородок та розподілу на кімнати часто забудовник не робить. Таке приміщення схоже на “чистий аркуш”. Ви сумісно з дизайнером інтер'єрів створюєте на цьому об’єкті персоналізоване житло.
Дизайн проект двокімнатної квартири з вільним плануванням дарує багато переваг. Не потрібно переробляти застаріли рішення, займатися переплануванням та зміною всіх комунікацій, робити утеплення та шумоізоляцію. Більшість зручних рішень вже запроваджені забудовником. Інші, легше втілити на пустуючому об'єкті.
Ремонти у ЖК з професійним дизайнером за проєктною документацією суттєво заощадять ваш час та кошти. Окрім того, все буде у квартирі ідеально. Всі рішення прийматимуться помірковано, а помилок вдасться уникнути на 99%. Дуже важливо звернутися до професійної команди, яка відтворює дизайн проект двокімнатної квартири, згідно з усіма правилами ергономіки, стандартами та естетичними аспектами. Орієнтованість на ваші індивідуальні потреби та побажання також повинні бути присутні.
Ремонти у ЖК з професійним дизайнером за проєктною документацією суттєво заощадять ваш час та кошти. Окрім того, все буде у квартирі ідеально. Всі рішення прийматимуться помірковано, а помилок вдасться уникнути на 99%. Дуже важливо звернутися до професійної команди, яка відтворює дизайн проект двокімнатної квартири, згідно з усіма правилами ергономіки, стандартами та естетичними аспектами. Орієнтованість на ваші індивідуальні потреби та побажання також повинні бути присутні.
В Києві студія дизайну Бєлік створила з десяток унікальних, неповторних, зручних та сучасних інтер'єрів квартир. Особливий попит мають об'єкти саме в ЖК, адже з'являється все більше новобудов, орієнтованих на потреби населення. Окремо хочеться зазначити дизайн проект двокімнатної квартири у ЖК Варшавський 2, який надихає та дарує відчуття комфорту своїм власникам.
Двокімнатна квартира у Варшавський 2 - кращі рішення від дизайнерів
Сьогодні майже нікого не здивуєш наявністю кімнати-студії. Для невеликих об'єктів це не лише візуально естетично. Це логічне та технічно правильне рішення. Адже відсутність стін між гостиною та кухнею дозволяють заощадити декілька м2. На місці стін можна розмістити обідній стіл або більш просторий диван. Що стосуються розподілу кімнати на зони? Сьогодні це максимально легко зробити за допомогою переходів фактур та відтінків, декору, використання освітлювальних приладів у кожній з них.
Кухня-студія виглядає дуже сучасно та доречно у новобудовах.В ній вдається легко розмістити місткий диван, ТВ зону, барну стійку або обідній стіл, увесь кухонний гарнітур з технікою. При цьому кімната не виглядає захаращеною та перевантаженою меблями. Достатня кількість світла (природного, штучного) додає атмосфери легкості та чистоти.
В цій квартирі було легко досягти цього ефекту, адже з кімнати студії є вихід на балкон. Великі панорамні вікна та двері дозволяють “впустити” максимум світла всередину. Дизайнер інтер'єру відмовився від зайвого та надмірного текстилю, який би перекреслив цю перевагу та візуально крав би простір.
Використання переважно світлих та монохромних палітр візуально додають простору, роблять приміщення максимально затишним та практичним.
Саме ці засади використала інтер'єрна компанія Бєлік облаштовуючи об'єкт в ЖК Варшавський 2. Крім світлих кольорів дизайнер інтер'єрів вирішив додати соковитих акцентів та цікавих фактур. Меблі (диван, фасади корпусних виробів) були обрати насичених відтінків синього. Не лише білий та синій кольори використали при оформленні квартири. Також їх “розвели” різними відтінками монохрому (сірий, беж, бетон, граніт).
Використання переважно світлих та монохромних палітр візуально додають простору, роблять приміщення максимально затишним та практичним.
Саме ці засади використала інтер'єрна компанія Бєлік облаштовуючи об'єкт в ЖК Варшавський 2. Крім світлих кольорів дизайнер інтер'єрів вирішив додати соковитих акцентів та цікавих фактур. Меблі (диван, фасади корпусних виробів) були обрати насичених відтінків синього. Не лише білий та синій кольори використали при оформленні квартири. Також їх “розвели” різними відтінками монохрому (сірий, беж, бетон, граніт).
Обов’язково створюючи сучасні інтер'єри, дизайнери компанії Бєлік впроваджують елементи еко стиля. Дуже сучасно та доречно виглядають в сучасних ремонтах фактури дерева. Барна стійка, журнальний столик, елементи корпусних меблів, декор, оздоблення підлоги та навіть стін (панелі) роблять з дерева. Дерев’яні фактури додають візуальної естетики, роблять простір більш затишним та унікальним. Також вони ідеально об'єднуються зі світлими та темними палітрами, позбавляючись від ефекту перевантаження та стерильності.
Кухня у квартирі є частиною загальної кімнати. Завдяки барній стійці вона ніби-то відгороджена від вітальні. Беручи до уваги невелику площу об’єкта, дизайнери інтер'єрного бюро Бєлік зробили кухонний гарнітур максимально містким. Меблі мають висоту до стелі. Вся побутова техніка вбудована, інвентар та посуд приховано за фасадами. Таке рішення дозволило лишити вдосталь місця на робочій поверхні.
Крім кухні-гостиної в цій квартирі були облаштовані всі інші кімнати у відповідній концепції. Мова йде про спальню та кабінет. Використання тих самих матеріалів, фактур, відтінків, стилістично схожого декору та освітлювальних приладів дозволити створити єдину композицію на всьому об'єкті. Спальня та кабінет виконують головні функції, з чим допомагають правильно підібрані меблі. Простір в них не переобтяжений масивними шафами та комодами. Корпусні меблі зробили переважно вбудованими та майже непомітними. Фасади та двері були підібрані у тон з оздобленням, тому ці меблі не впадають в око, а виступають частиною стін.
Крім кухні-гостиної в цій квартирі були облаштовані всі інші кімнати у відповідній концепції. Мова йде про спальню та кабінет. Використання тих самих матеріалів, фактур, відтінків, стилістично схожого декору та освітлювальних приладів дозволити створити єдину композицію на всьому об'єкті. Спальня та кабінет виконують головні функції, з чим допомагають правильно підібрані меблі. Простір в них не переобтяжений масивними шафами та комодами. Корпусні меблі зробили переважно вбудованими та майже непомітними. Фасади та двері були підібрані у тон з оздобленням, тому ці меблі не впадають в око, а виступають частиною стін.
Дизайн проект двокімнатної квартири у ЖК Варшавський 2, як і будь-якого об'єкта, неможливий без оформлення ванної кімнати. Дизайнери бюро інтер'єрів Бєлік не лише зробили це приміщення гарним. Максимум зусиль було покладено на досягнення функціональності та безпеки в санвузлі. Обиралися якісні та стійкі до вологи матеріали, зручна сантехніка та вбудовані елементи меблів для зберігання (рушники, засоби гігієни та догляду тощо). Всі технічні аспекти прокладання комунікацій (каналізація, освітлення, теплі підлоги, водопостачання) також було промірковано до дрібниць.
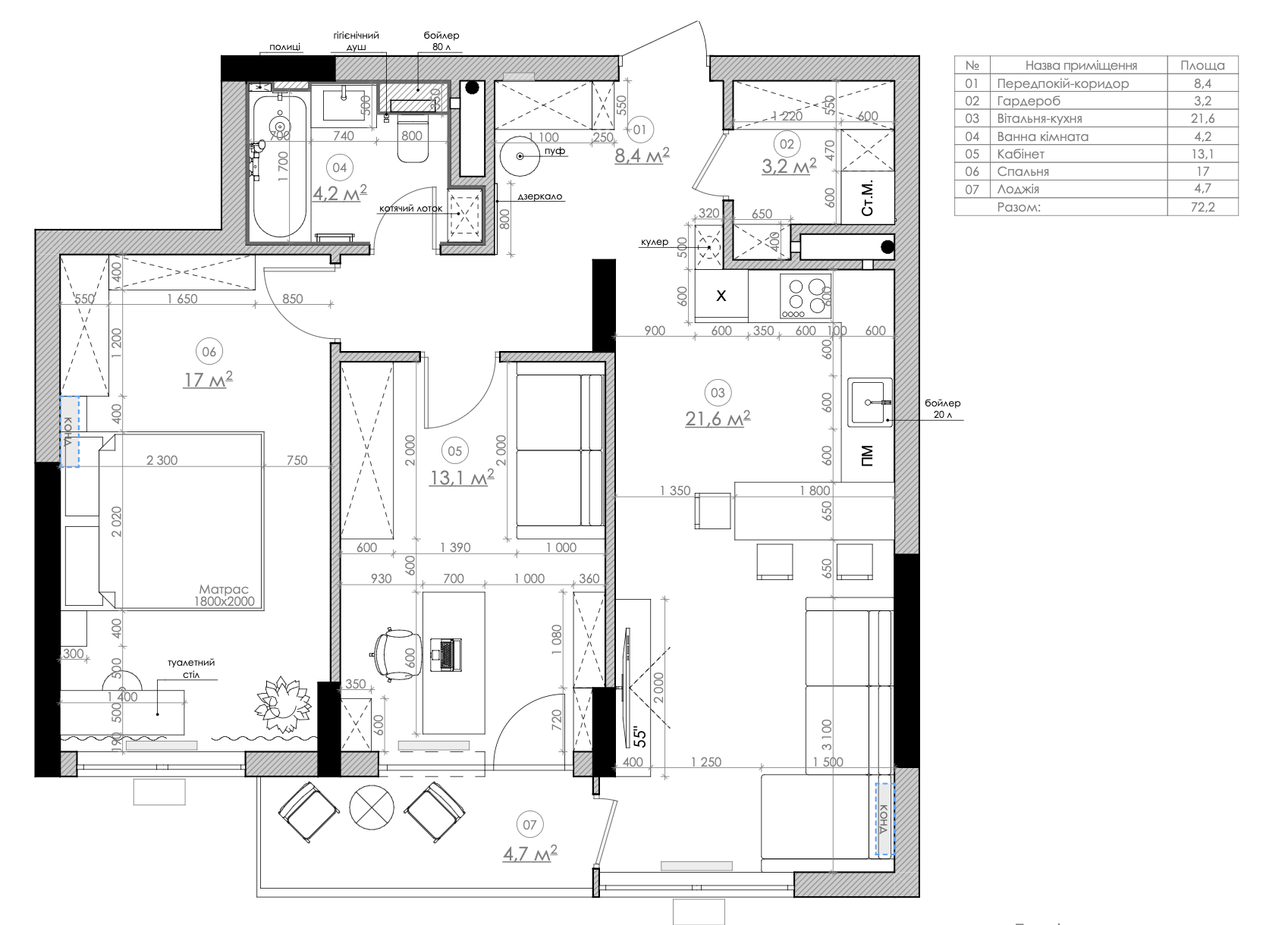
Варто зазначити, що в студії дизайн інтер'єрів Бєлік не “малюють” гарні візуалізації. Тут створюють повні дизайн проєкти, в яких присутні детальні пояснення для бригади майстрів з досягнення результату. Тобто, надаються всі схеми, креслення, плани та технічна документація для реалізації дизайн проекта.
Варто зазначити, що в студії дизайн інтер'єрів Бєлік не “малюють” гарні візуалізації. Тут створюють повні дизайн проєкти, в яких присутні детальні пояснення для бригади майстрів з досягнення результату. Тобто, надаються всі схеми, креслення, плани та технічна документація для реалізації дизайн проекта.
Саме проєкт дизайн інтер’єру є основою для якісної реалізації будь-якого сучасного ремонту, особливо у квартирах з вільним плануванням, як у ЖК Варшавський 2. Такий проєкт дозволяє заздалегідь узгодити всі рішення — від розташування стін і меблів до сценаріїв освітлення та технічних вузлів. Завдяки цьому проєкт дизайн інтер’єру стає не просто набором креслень, а чіткою інструкцією для створення комфортного та продуманого житла.
Для багатьох власників актуальним залишається питання, де знайти дизайнера інтер’єру у києві, який здатен працювати з новобудовами та складними плануваннями. Важливо обирати фахівців з реальним портфоліо реалізованих об’єктів, а не лише візуалізаціями. Саме тому де знайти дизайнера інтер’єру у києві — це питання, відповідь на яке варто шукати у професійних студіях з комплексним підходом до проєктування.
Для багатьох власників актуальним залишається питання, де знайти дизайнера інтер’єру у києві, який здатен працювати з новобудовами та складними плануваннями. Важливо обирати фахівців з реальним портфоліо реалізованих об’єктів, а не лише візуалізаціями. Саме тому де знайти дизайнера інтер’єру у києві — це питання, відповідь на яке варто шукати у професійних студіях з комплексним підходом до проєктування.
Не менш важливим аспектом для замовників є дизайн проект квартири ціни. Вартість формується з урахуванням площі об’єкта, складності планувальних рішень, кількості приміщень та обсягу технічної документації. Варто розуміти, що інвестиція в якісний дизайн-проєкт дозволяє уникнути значно більших витрат під час ремонту. Детальніше з цим питанням можна ознайомитися на сторінці дизайн проект квартири ціни.
Замовляючи дизайн проект інтер’єру київ, клієнт отримує рішення, адаптоване під реальні умови столичних новобудов, будівельні норми та стиль життя мешканців мегаполіса. Такий підхід гарантує, що всі дизайнерські ідеї будуть не лише естетичними, а й технічно обґрунтованими. дизайн проект інтер’єру київ — це впевненість у прогнозованому результаті без хаосу та імпровізацій на будівельному майданчику.
Замовляючи дизайн проект інтер’єру київ, клієнт отримує рішення, адаптоване під реальні умови столичних новобудов, будівельні норми та стиль життя мешканців мегаполіса. Такий підхід гарантує, що всі дизайнерські ідеї будуть не лише естетичними, а й технічно обґрунтованими. дизайн проект інтер’єру київ — це впевненість у прогнозованому результаті без хаосу та імпровізацій на будівельному майданчику.
У підсумку грамотно продуманий дизайн інтер’єра двокімнатної квартири дозволяє створити простір, який відповідає ритму життя власників, залишається актуальним роками та не потребує постійних змін. Саме такий дизайн інтер’єра поєднує естетику, функціональність і технічну досконалість — те, що є основою філософії студії дизайну інтер’єрів Бєлік.
Подивіться нашу презентацію