ПРОЄКТИ ОДНОКІМНАТНИХ КВАРТИР В ЖК ВІЛАР У С. ХОДОСІВКА У КИЇВСЬКІЙ ОБЛАСТІ
• Локація - ЖК Вілар у с. Ходосівка, Україна
• Площа квартири – 49,5 м²
• Формат роботи – дизайн проєкт інтер'єру
• Площа квартири – 49,5 м²
• Формат роботи – дизайн проєкт інтер'єру
Маючи невелике житло не варто засмучуватися чи прагнути самостійно швидко закінчити ремонт. Навіть обмежену площу можна перетворити на затишний, функціональний та сучасний простір. Маючи спеціальні знання, досвід, інструменти та навички зробити це досить легко.
Перше, що потрібно — замовити дизайн проект інтер єру. Через проєктну документацію набагато зручніше спланувати розподіл простору, розташування меблів (техніки, текстилю, комунікацій), передбачити необхідні ремонтні процеси та досягти візуальної естетики. Маючи дизайн проект на руках ви чітко будете розуміти обсяги ремонтних робіт та їх послідовність. Зможете придбати лише необхідні оздоблювальні матеріали, меблі, декор, освітлювальні прилади та інші товари для інтер'єру.
Перше, що потрібно — замовити дизайн проект інтер єру. Через проєктну документацію набагато зручніше спланувати розподіл простору, розташування меблів (техніки, текстилю, комунікацій), передбачити необхідні ремонтні процеси та досягти візуальної естетики. Маючи дизайн проект на руках ви чітко будете розуміти обсяги ремонтних робіт та їх послідовність. Зможете придбати лише необхідні оздоблювальні матеріали, меблі, декор, освітлювальні прилади та інші товари для інтер'єру.
Чітка послідовна інструкція дозволяє уникнути 99% помилок під час оформлення житла. Заощаджує ваші кошти та час. Ціна за дизайн проект квартири частіше всього фіксована та залежить від площі об'єкта. Для невеликих квартир це не більше 8% від вартості всього ремонту, але користі ви отримаєте на всі 100%.
Саме за таким принципом працює студія інтер'єру Бєлік. В нас створюються дизайни будь-якої складності. Наші фахівці вміють розробляти пристосовані для комфортного життя простори, які відповідають сучасним трендам та цілком задовольняють потреби мешканців. Кожний наш дизайн є відображенням індивідуальності власників. Простори працюють на покращення умов життя та створення відчуття максимального комфорту (естетичного, функціонального).
Саме за таким принципом працює студія інтер'єру Бєлік. В нас створюються дизайни будь-якої складності. Наші фахівці вміють розробляти пристосовані для комфортного життя простори, які відповідають сучасним трендам та цілком задовольняють потреби мешканців. Кожний наш дизайн є відображенням індивідуальності власників. Простори працюють на покращення умов життя та створення відчуття максимального комфорту (естетичного, функціонального).
Власникам невеликих приміщень варто від самого початку детальніше подивитися проекти однокімнатних квартир. В інтер’єрній компанії Бєлік присутньо достатньо різних варіантів, які заслуговують на увагу.
При обмеженнях в просторі дизайнери тримають фокус на спокої, ергономіці та порядку. Чудовим прикладом затишного та збалансованого оформлення є квартира в ЖК Вілар у с. Ходосівка.
Створений дизайн інтер'єру вартість були орієнтовані на можливості замовника. АЦе не завадило додати цікавих трендів, ефективних дизайнерських “фішок” та оригінальних рішень в оформленні житла.
При обмеженнях в просторі дизайнери тримають фокус на спокої, ергономіці та порядку. Чудовим прикладом затишного та збалансованого оформлення є квартира в ЖК Вілар у с. Ходосівка.
Створений дизайн інтер'єру вартість були орієнтовані на можливості замовника. АЦе не завадило додати цікавих трендів, ефективних дизайнерських “фішок” та оригінальних рішень в оформленні житла.
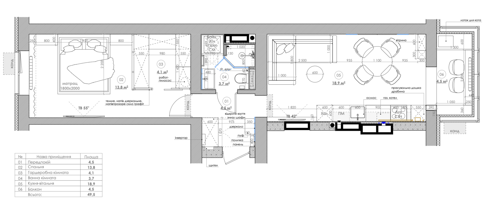
Ключові рішення в оформленні квартири ЖК Вілар у с. Ходосівка
Від самого початку проекти однокімнатних квартир базуються на раціональному розподілі простору. Квартира в ЖК Вілар у с. Ходосівка не стала виключенням. Щоб візуально збільшити місце, дизайнер відмовився від надлишку стін та непотрібних дверей (де це було можливо).
Потрапляючи до квартири одразу помітні рішення з Оpen space (вільний простір). З коридору є окремі два входи до кімнат (спальня, санузел) із дверима прихованого монтажу. Пересування рештою квартири максимально вільне. Коридор від вітальні не відділено дверима. Сама вітальна об’єднана з кухнею. Присутня також обідня зона та місце для роботи.
Цілісно та гармонійно квартира в ЖК Вілар у с. Ходосівка виглядає завдяки повторенню текстур дерева, антрациту та теплих акцентів у кожній кімнаті. Були впроваджені одразу кілька ключових рішень для створення комфортної атмосфери.
Кухня-вітальня поділена на окремі зони через використання різних кольорів, текстур та меблевих конструкцій. При цьому всі елементи перегукуються між собою, відображуючи єдину ідею в оформленні.
Обідня група з круглим столом пом'якшує прямі лінії кухонного гарнітура.
Вітальна мебльована акцентним, м’яким диваном та ТБ-зоною навпроти.
Розумне рішення з лоджією. Вона не відділена дверми. На лоджії облаштоване робоче місце або зона відпочинку з барними стільцями, що дозволяє насолоджуватися краєвидом.
Наявність окремої гардеробної при спальні дозволила звільнити саму кімнату від важких шаф, залишивши лише простір для відпочинку.
Попри невелику площу в санвузлі вдалося розмістити повноцінну пральну та сушильну машини в колоні. Це є стандартом комфорту сьогодення.
- Чіткий зонований простір
Кухня-вітальня поділена на окремі зони через використання різних кольорів, текстур та меблевих конструкцій. При цьому всі елементи перегукуються між собою, відображуючи єдину ідею в оформленні.
Обідня група з круглим столом пом'якшує прямі лінії кухонного гарнітура.
Вітальна мебльована акцентним, м’яким диваном та ТБ-зоною навпроти.
Розумне рішення з лоджією. Вона не відділена дверми. На лоджії облаштоване робоче місце або зона відпочинку з барними стільцями, що дозволяє насолоджуватися краєвидом.
Наявність окремої гардеробної при спальні дозволила звільнити саму кімнату від важких шаф, залишивши лише простір для відпочинку.
Попри невелику площу в санвузлі вдалося розмістити повноцінну пральну та сушильну машини в колоні. Це є стандартом комфорту сьогодення.
2. Колірна палітра та матеріали
Поєднання сірих (антрацитових) фасадів кухні з дерев’яними вставками та підлогою створює затишок, попри темні відтінки. Кухонний фартух із темного каменю з вираженими жилами додає простору преміальності.
За бажанням замовника були додані насичені, гірчичні акценти. Жовтий диван та стільці на балконі — це “якорі”, які додають енергії спокійному інтер'єру.
3. Світловий сценарій
Дизайн дуже багатий на різні типи освітлення, що є базою в оформленні сучасних квартир. Були використані:
Поєднання сірих (антрацитових) фасадів кухні з дерев’яними вставками та підлогою створює затишок, попри темні відтінки. Кухонний фартух із темного каменю з вираженими жилами додає простору преміальності.
За бажанням замовника були додані насичені, гірчичні акценти. Жовтий диван та стільці на балконі — це “якорі”, які додають енергії спокійному інтер'єру.
3. Світловий сценарій
Дизайн дуже багатий на різні типи освітлення, що є базою в оформленні сучасних квартир. Були використані:
- магнітні трекові системи — чорні лінії на стелі, які виглядають графічно і дозволяють змінювати напрямок світла;
- декоративні підвіси — мінімалістичні скляні кулі над обіднім столом і спальним місцем додають легкості;
- контурна підсвітка — світло під ліжком (“ефект левітації”), під верхніми шафами кухні та вздовж стін створює глибину та інтимну атмосферу ввечері.
4. Цікаві деталі
Не завдяки використанню великої кількості непотрібного декору та складних архітектурних рішень цей простір виглядає сучасно. Враховуючи обмеженість площі та особливості геометрій квартири, дизайнер обрав кілька ефективних “фішок”, які роблять інтер'єр унікальним та захопливим.
До цього переліку входять:
Не завдяки використанню великої кількості непотрібного декору та складних архітектурних рішень цей простір виглядає сучасно. Враховуючи обмеженість площі та особливості геометрій квартири, дизайнер обрав кілька ефективних “фішок”, які роблять інтер'єр унікальним та захопливим.
До цього переліку входять:
- скляна перегородка в гардеробі з підсвічування полиць — “ламає” глуху стіну, додаючи глибини спальні та створюючи ефект дорогого бутика;
- мінімалізм у передпокої — двері прихованого монтажу та лаконічна банкетка не захаращують вхідну зону;
- текстурна стіна у спальні — м'які панелі за узголів'ям ліжка та декоративна штукатурка під бетон/камінь створюють багатошаровість;
- зона лоджії як мультифункціональний хаб — барна стійка замість підвіконня слугує одночасно місцем для сніданків з краєвидом, повноцінною робочою зоною;
- “левітуюче” ліжко з підсвіткою — хитрий захід для малих приміщень, візуально збільшуючи кімнату та додаючи м'якого світла у вечірній час;
- вертикальне зберігання техніки (пральня та сушильна машини в колоні) — звільняє місце для нормальної душової кабіни та просторої стільниці біля раковини, позбавляє від необхідності розкладати громіздкі сушарки для білизни посеред кімнати;
- приховане зберігання в передпокої — колір фасадів збігається зі стінами, створюючи ефект відсутності меблів (при їх наявності).
Ремонт квартир в невеликих приміщеннях виглядає “дорогим” завдяки балансу фактур та проміркованому освітленню. Створюються оптимальні, сучасні та функціональні простори, де кожен сантиметр працює. В студії інтер'єрів Бєлік розробляються саме такі дизайни квартир, які цілком задовольняють побажання та потреби замовників.
BELIK DESIGN:
🔗 Дивіться також:
🔗 Дивіться також:
Подивіться нашу презентацію