СУЧАСНИЙ СТИЛЬ В ІНТЕР’ЄРІ КВАРТИРИ У ЖК ФОРВАРД У КИЄВІ
ЖК Форвард - сучасний стиль в інтер'єрі квартири
Сьогодні про сучасний стиль в інтер'єрі квартири свідчить не впровадження всіх останніх трендів, інновацій та тенденцій. Використання найновіших оздоблювальних матеріалів, дизайнерських меблів та сучасної техніки також не дає таких гарантій.
Адже сучасний стиль зараз вирізняється саме персоналізованістю та орієнтовністю на потреби мешканців. Це направлення, в якому потрошку можуть бути реалізовані ідеї з різних стилів. Грамотне переплетення ідей зі скандинавського, етно, еко, мінімалізму, лофт та навіть класики дозволяють створити дійсно оригінальний інтер'єр. Вирізняє його саме доцільність всіх рішень.
Основою сучасного дизайну сьогодні лежить зручність, функціональність та практичність. Тому в таких інтер'єрах активно впроваджуються останні тренди та тенденції, які покращують рівень життя. Частіше за все, за основу беруться практичні планувальні рішення (як в мінімалізмі), що забезпечує ергономіку в приміщенні. Щоб об’єкт не виглядав стерильним, часто додаються цікаві декоративні елементи, фактури, поєднання кольорів.
Залежить реалізація сучасного стиля саме від індивідуальних побажань, потреб та можливостей замовника. Адже квартиру у 70 м2 можна оформлювати для родини з двома дітьми та собакою. А можна розробляти сучасний інтер'єр для молодого подружжя або одинаків, що працюють із дома. Концепція та реалізація в обох випадках будуть суттєво відрізнятися.
Залежить реалізація сучасного стиля саме від індивідуальних побажань, потреб та можливостей замовника. Адже квартиру у 70 м2 можна оформлювати для родини з двома дітьми та собакою. А можна розробляти сучасний інтер'єр для молодого подружжя або одинаків, що працюють із дома. Концепція та реалізація в обох випадках будуть суттєво відрізнятися.
Бюджет та особисті побажання також мають значення. Одним потрібні елементи розкоші та класики у вигляді молдингів, позолоти, цікавих предметів живопису та декору. Інші віддають перевагу стриманим рішенням та практичності, прагнуть до максимально функціонального простору з вбудованими шафами до стелі та мінімізації будь-якого декору (виключно в оздобленні стін, виборі освітлювальних приладів, меблів тощо).
Саме тому, перш ніж розробляти сучасний стиль в інтер'єрі квартири дизайнери інтер'єрної компанії Бєлік вивчають об'єкт та анкету клієнта. Вони показують приклади оформлення, схожого за запитом. В нашій студії дизайн інтер'єрів є багато реальних прикладів на різний смак, потреби, можливості. Органічним та доволі цікавим вважається квартира у ЖК Форвард, яка ідеально відображає тенденції сучасності та бездоганний смак власників.
Саме тому, перш ніж розробляти сучасний стиль в інтер'єрі квартири дизайнери інтер'єрної компанії Бєлік вивчають об'єкт та анкету клієнта. Вони показують приклади оформлення, схожого за запитом. В нашій студії дизайн інтер'єрів є багато реальних прикладів на різний смак, потреби, можливості. Органічним та доволі цікавим вважається квартира у ЖК Форвард, яка ідеально відображає тенденції сучасності та бездоганний смак власників.
Сучасне оформлення квартири у ЖК Форвард
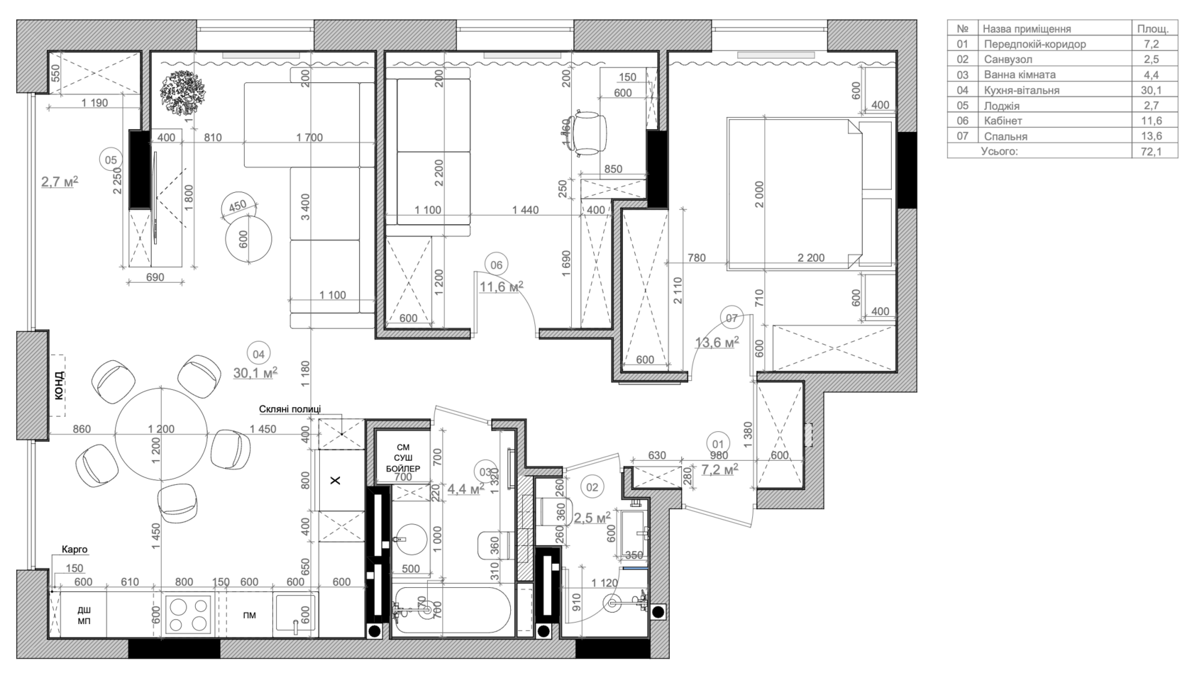
Об'єкт у новобудові має 70 м2. На цій площі нашому дизайнеру інтер'єрів вдалося вдало розмістити все необхідне та поділити квартиру на багато функціональних зон. Крокуючи в ногу із часом, у квартирі були об'єднані вітальня із кухнею. Завдяки вільному плануванню вдалося навіть виділити місце для створення зони столової, де був обраний дизайнерський круглий стіл із м'якими кріслами. Обідній стіл розміщено між зоною вітальні та кухні без переобтяження простору.
Кухня Г-образної форми є максимально функціональною. Однотонні матові фасади, вбудована сучасна техніка та вдосталь місця на робочій поверхні забезпечують зручність під час приготування їжі. Замість того щоб робити фасади рівними, на цьому об'єкті були виконані молдинги. Це візуально додає естетики та створює ефект затишку.
Що стосується вітальні? Дизайнер інтер'єрів розмістив всі необхідні та функціональні елементи в цій частині приміщення. Місткий кутовий диван в однотоні, невеликий журнальний стіл та ТВ-зона з необхідними полицями для зберігання речей, гаджетів тощо. Цікавою принадою є біокамін, під ТВ та навпроти дивана.
Що стосується вітальні? Дизайнер інтер'єрів розмістив всі необхідні та функціональні елементи в цій частині приміщення. Місткий кутовий диван в однотоні, невеликий журнальний стіл та ТВ-зона з необхідними полицями для зберігання речей, гаджетів тощо. Цікавою принадою є біокамін, під ТВ та навпроти дивана.
Він вмонтований в шафу, яка розділяє кімнату-студію із лоджією. Тобто, розділовим елементом виступає не стіна, а саме шафа з панелями для монтажу ТВ, додатковим місцем для зберігання книжок, декору.
Все приміщення оформлене в спокійному кольорі та фактурах. Були використані переважно дерев’яні панелі, які виступають MustHave у ремонті на сьогодні. Адже за ними зручно проводити всі комунікації та приховувати їх. При цьому не потрібно штробити та бити стіни, виконувати складні та брудні будівельні роботи.
Виглядають дерев'яні або гіпсокартонні фарбовані панелі дуже естетично. Вони можуть вдало переходити у фасади шаф, створюючи ефект цілісності стін. Такі рішення позбавляють від візуального переобтяження та забезпечують функціональність простору.
Все приміщення оформлене в спокійному кольорі та фактурах. Були використані переважно дерев’яні панелі, які виступають MustHave у ремонті на сьогодні. Адже за ними зручно проводити всі комунікації та приховувати їх. При цьому не потрібно штробити та бити стіни, виконувати складні та брудні будівельні роботи.
Виглядають дерев'яні або гіпсокартонні фарбовані панелі дуже естетично. Вони можуть вдало переходити у фасади шаф, створюючи ефект цілісності стін. Такі рішення позбавляють від візуального переобтяження та забезпечують функціональність простору.
Окрім дерева в темному та світлому кольорах, сучасний стиль в інтер'єрі квартири ЖК Форвард виконано у монохромних палітрах. Беж, сірий та білий палітри ідеально комбінуються з природними матеріалами.Різні фактури та візерунки (мармур, дерево, текстиль) додають цікавих акцентів. Тут відсутні різкі переходи. Кольори лавно перетікають від одних відтінків в інші, створюючи ефект єдності простору.
Освітлення в ЖК Форвард виконано у вигляді трекових систем по всій стелі. Додатково були обрані цікаві дизайнерські освітлювальні прилади (настінні, підсвічування дзеркал та шаф).
Освітлення в ЖК Форвард виконано у вигляді трекових систем по всій стелі. Додатково були обрані цікаві дизайнерські освітлювальні прилади (настінні, підсвічування дзеркал та шаф).
Крім великої кімнати-студії на цьому об’єкті присутні ще санвузол, ванна, спальня, кабінет. В спальні розмістити все, що хотіли замовники (велике ліжко, приліжкові тумби, дві великі вбудовані шафі для зберігання речей). Естетики було досягнуто завдяки вибору ліжка сучасної моделі - велике та на м’якій основі. Однотонні штори з якісної тканини, килим, гарні вази додали затишку. Цікавим елементом стали акцентна частина стіни (між декоративними дерев'яними панелями) та оригінальний настінний світильник.
Сучасний стиль в інтер'єрі квартири у ЖК Форвард прослідковується і в оформленні кабінету. Тут була зроблена робоча зона біля вікна, що забезпечило якісне освітлення. Наявність відкритих та вмонтованих у стіну відкритих полиць дозволило зручно розмістити документи, літературу, інші потрібні для роботи елементи. Наявність м’якого дивана забезпечує відпочинок у процесі роботи, а також виступає додатковим місцем для розміщення гостей.
Сучасний стиль в інтер'єрі квартири у ЖК Форвард прослідковується і в оформленні кабінету. Тут була зроблена робоча зона біля вікна, що забезпечило якісне освітлення. Наявність відкритих та вмонтованих у стіну відкритих полиць дозволило зручно розмістити документи, літературу, інші потрібні для роботи елементи. Наявність м’якого дивана забезпечує відпочинок у процесі роботи, а також виступає додатковим місцем для розміщення гостей.
Ванная та санвузол із душ кабіною - це дві окремі кімнати. Цікаві та інноваційні рішення були впроваджені навіть в цих приміщеннях. Трап у душі розміщено вздовж стіни, що не заважає під час його приймання. Також це дозволило відмовитися від бортика, адже завдяки ухилу вода стікає в трап, без ризику її витікання.
Поличку в ванній кімнаті було вмонтовано у стіну. Це максимально зручно, адже вони не заважають. Можна з легкістю дістати необхідні засоби під час приймання ванни.
Поличку в ванній кімнаті було вмонтовано у стіну. Це максимально зручно, адже вони не заважають. Можна з легкістю дістати необхідні засоби під час приймання ванни.
В цій квартирі (як і в більшості об'єктів, спроектованих дизайн студією Бєлік), були прийняти інноваційні рішення. Ті тенденції, які перевірені досвідом та які покращують рівень життя. Мова йде про:
В нас можна замовити сучасний інтер'єр квартири, який відповідатиме індивідуальними потребами та побажанням. Персоналізований дизайн проєкт від компанії Бєлік заощадить до 20% ремонту, зробивши реальним інтер'єр вашої мрії.
- приховану точку доступу та всі комунікації за декоративними панелями, фасадами;
- теплі підлоги та стіни;
- вибір сучасної сантехніки, освітлення, побутової техніки, меблів;
- термостат;
- вбудовані полиці, корпусні шафи та інші приховані елементи;
- багаторівневе освітлення, частина якого реагує на рухи;
- сигналізація тощо.
В нас можна замовити сучасний інтер'єр квартири, який відповідатиме індивідуальними потребами та побажанням. Персоналізований дизайн проєкт від компанії Бєлік заощадить до 20% ремонту, зробивши реальним інтер'єр вашої мрії.
Подивіться нашу презентацію