ДИЗАЙН ПРОЄКТ БУДИНКУ У С. ПОГРЕБИ У КИЇВСЬКІЙ ОБЛАСТІ
Дизайн інтер'єр будинку дозволяє впроваджувати сучасні тренди, інновації та ефективні рішення. Окремі забудови у два поверхи - ідеальне місце для комфортного життя великої родини. На таких об'єктах можна вмістити всі необхідні меблі, проявитися через власний інтер'єр та закрити всі потреби сім'ї. Безумовно безліч місця потребує правильного його використання. Кожну кімнату в будинку потрібно використати по-максимуму та за призначенням.
Звернувшись до дизайнера інтер'єрів ви отримаєте не просто гарний візуал. Для вас буде створено унікальний простір, в якому кожне рішення матиме сенс. Саме за таким принципом працюють фахівці інтер'єрної компанії Бєлік. У нас створюються дизайн інтер'єру будинків під ключ з урахуванням індивідуальних побажань, стилю життя та потреб родини.
Звернувшись до дизайнера інтер'єрів ви отримаєте не просто гарний візуал. Для вас буде створено унікальний простір, в якому кожне рішення матиме сенс. Саме за таким принципом працюють фахівці інтер'єрної компанії Бєлік. У нас створюються дизайн інтер'єру будинків під ключ з урахуванням індивідуальних побажань, стилю життя та потреб родини.
Кожний наш об’єкт - це окрема атмосфера, яка відповідає світогляду замовників. Подивитися, як саме може виглядати оформлення двоповерхового будинку можна на прикладі с. Погреби у Київській області.
Дизайн проект будинку та його інтер’єр виконано в сучасному стилі з елементами мінімалізму. Кожне прийнятне рішення гарантує зручність, комфорт та спокій. Візуально дарує естетичну насолоду.
Дизайн проект будинку та його інтер’єр виконано в сучасному стилі з елементами мінімалізму. Кожне прийнятне рішення гарантує зручність, комфорт та спокій. Візуально дарує естетичну насолоду.
Особливості оформлення приватного будинку в с. Погреби у Київській області
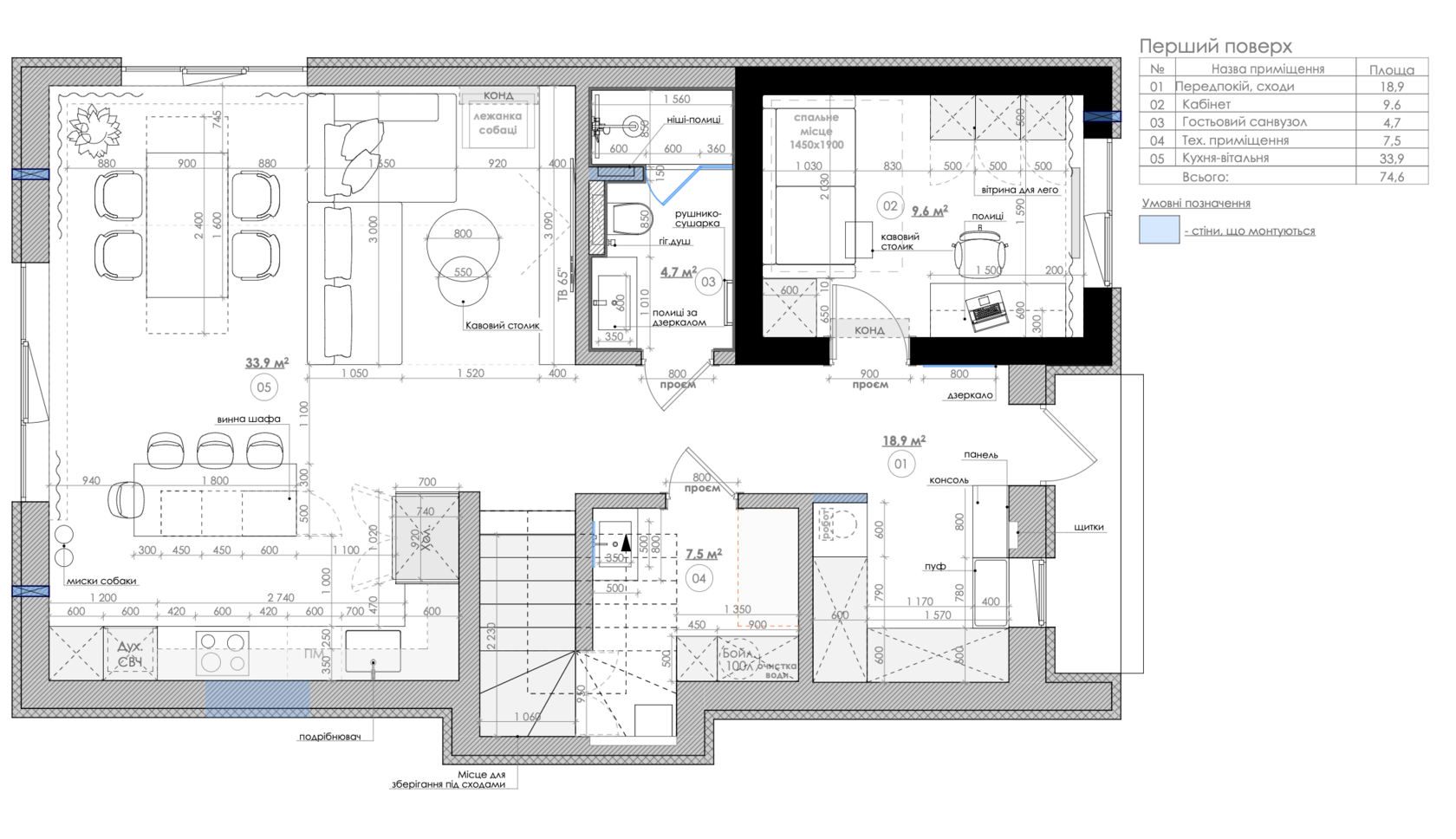
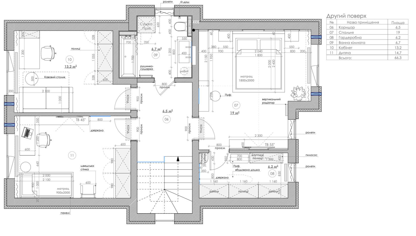
Маючи достатньо велику площу на обидва поверхи (приблизно 120 м2) дизайнер інтер'єру не поспішав все заставити меблями та додавати складних архітектурних елементів. В основі лягло вільне планування. Всі ніші були використані для створення вбудованих технічних або звичайних шаф, полиць. Щоб мінімізувати кількість корпусних меблів були зроблені гардеробні, технічне приміщення. За їх дверми зручно зберігати речі, інвентар, техніку, доглядові засоби. Кожний елемент розміщено на правильному місці. Нічого візуально не краде простору в кімнатах.
На першому поверсі знаходяться кімнати загального користування. Це:
- технічне приміщення;
- передпокій та сходи;
- вітальня-кухня;
- санвузол;
- кабінет, який може стати кімнатою для гостей.
Другий поверх є житловим простором. З загального коридора тут можна потрапити окремо в кожну кімнату - дитяча (їх 2 окремі), спальня, кабінет, ванна.
Кімната загального користування - це об’єднаний простір кухні, їдальні та вітальні. Цей сучасний підхід робить приміщення світлим та просторим. Зонування виконано за допомогою меблів. Великий кутовий диван відділяє зону відпочинку, а кухонний острів слугує межею між робочою зоною кухні та вітальнею. Окрім кухонного гарнітура окремо є обідній стіл. Така кількість меблів не краде простір. Це ідеальне рішення для великої родини, де часто бувають гості.
Кімната загального користування - це об’єднаний простір кухні, їдальні та вітальні. Цей сучасний підхід робить приміщення світлим та просторим. Зонування виконано за допомогою меблів. Великий кутовий диван відділяє зону відпочинку, а кухонний острів слугує межею між робочою зоною кухні та вітальнею. Окрім кухонного гарнітура окремо є обідній стіл. Така кількість меблів не краде простір. Це ідеальне рішення для великої родини, де часто бувають гості.
Загалом внутрішній дизайн приватного будинку в с. Погреби у Київській області можна схарактеризувати, як сучасний мінімалізм з елементами «тихої розкоші». Він виглядає дуже збалансованим, теплим та інтелігентним.
Інтер’єр «поза часом» - саме такі простори створюють працівники інтернатного бюро Бєлік. Цей простір виглядає дорого, але при цьому він є максимально комфортним для повсякденного життя.
Інтер’єр «поза часом» - саме такі простори створюють працівники інтернатного бюро Бєлік. Цей простір виглядає дорого, але при цьому він є максимально комфортним для повсякденного життя.
Кольори та матеріали на об'єкті с. Погреби у Київській області
Інтер’єр побудований на монохромній палітрі теплих відтінків.
Це створює відчуття спокою та візуального «шумопоглинання». Відсутність яскравих акцентів робить простір позачасовим. Використовуються кольори:
- тауп та кава з молоком - основний колір дивана та стін;
- бежевий та пісочний - ним оформлено текстиль, килим, журнальний столик, декоративні елементи;
- темне дерево та антрацит - це кухонні фасади та острів, що додають графічності та глибини.
Як і дизайн інтер'єру квартири у Києві, в оформленні будинку присутньо багато різноманітних фактур. Дизайн виграє не за рахунок кольору, а саме через гру текстур. Поєднання активної текстури темного мармуру з матовими дерев'яними фасадами додають особливий ефект в дизайн інтер'єру квартири під ключ чи будинку.
Деревом викладена підлога «англійською ялинкою». Також ці фактури зустрічаються на фасадах меблів, в декоруванні стін панелями. Матеріали обиралися ідентичними або максимально схожими, що створює ефект цілісності.
Каменем/Керамогранітом оформлені столова поверхня, кухонний острів та стільниця. Текстура темного мармуру виглядає дуже ефектно. Такі самі матеріали зустрічаються в оздобленні ванної та санвузла.
Каменем/Керамогранітом оформлені столова поверхня, кухонний острів та стільниця. Текстура темного мармуру виглядає дуже ефектно. Такі самі матеріали зустрічаються в оздобленні ванної та санвузла.
До вибору текстилю та декору також поставилися відповідально. Обрали багатошарові штори, декоративні подушки та килим з грубим плетінням. Всі ці елементи додають «м’якості» в дизайн. Журнальний столик, обідні стільці та інші елементи круглої форми пом'якшують прямі лінії меблів. Декором виступають потрібні в побуті елементи, які відповідають концепції стиля. Це мінімалістичні вази, свічки, книги та живі рослини.
Освітлення в дизайн проєкті будинку є окремим декоративним елементом:
Всі меблі на об'єкті виконувалися під замовлення. Це дозволило їх зробити максимально функціональними та за потреби непомітними. Підвісна консоль (туалетний столик) та інших полиці, інтегровані ручки, суцільні фасади - все це підтримує ідею чистого простору без зайвих деталей.
- люстра-кульки над обіднім столом, ліжком у спальні та дитячих - це акцентні елементи, що працюють як арт-об’єкти;
- трекові системи на стелі забезпечують загальне технічне освітлення;
- лрисутнє локальне світло - торшер біля дивана, підсвічування робочої зони на кухні, полиць всередині шафи, дзеркала, панелей по периметру дозволяє впливати на атмосферу.
Всі меблі на об'єкті виконувалися під замовлення. Це дозволило їх зробити максимально функціональними та за потреби непомітними. Підвісна консоль (туалетний столик) та інших полиці, інтегровані ручки, суцільні фасади - все це підтримує ідею чистого простору без зайвих деталей.
Прагнете отримати інтер'єр, який стане зразком гарного смаку, як в с. Погреби у Київській області? В інтер'єрній компанії Бєлік створюються персоналізовані простори, де розкіш проявляється через якість та матеріали, а не надмірність декору.
Вартість розробки дизайну квартири чи будинку в обраному вами направленні (стиль, колористика, планування, використання конкретних елементів меблів) можна скорегувати. Ще на стадії розробки проектної документації ви зазначите бюджет, який готові витратити на ремонт на інтер'єр. Орієнтуючись на приблизні межі дизайнер спланує ремонт та візуал, роблячи його функціональним та комфортним.
Вартість розробки дизайну квартири чи будинку в обраному вами направленні (стиль, колористика, планування, використання конкретних елементів меблів) можна скорегувати. Ще на стадії розробки проектної документації ви зазначите бюджет, який готові витратити на ремонт на інтер'єр. Орієнтуючись на приблизні межі дизайнер спланує ремонт та візуал, роблячи його функціональним та комфортним.
Подивіться нашу презентацію