СТИЛЬ ЛОФТ В ІНТЕР’ЄРІ БУДИНКУ В КИЄВІ
Відобразити через житло свій темперамент, творчий потенціал та уподобання сьогодні досить реально. Для цього потрібно звернутися до інтер’єрної компанії та замовити дизайн проект квартири під ключ (будинку). Саме під час розробки проєктної документації освічений фахівець спланує ваш візуал, покроковість всіх ремонтних робіт, підбере необхідні товари та досягне максимальної функціональності простору.
Студія дизайн інтер'єру в Києві Бєлік на професійному рівні створює проекти та втілює в життя сучасності простори. Кожний наш приклад - це індивідуальний, підлаштований під потреби та стиль життя родини інтер’єр. Це оселі, в яких зручно знаходитися тривалий час (відпочивати, працювати, ростити дітей, зустрічати гостей, будувати плани на майбутнє).
Студія дизайн інтер'єру в Києві Бєлік на професійному рівні створює проекти та втілює в життя сучасності простори. Кожний наш приклад - це індивідуальний, підлаштований під потреби та стиль життя родини інтер’єр. Це оселі, в яких зручно знаходитися тривалий час (відпочивати, працювати, ростити дітей, зустрічати гостей, будувати плани на майбутнє).
Правильно виконаний дизайнерський ремонт будинку не доставлятиме проблем та бажання щось переробити через кілька місяців. Роками наші інтер'єри лишаються оптимальними, комфортними, унікальним та сучасними. Візуально цілком орієнтованими на персональні побажання клієнтів, їх можливості та запити.
Залежно від власних уподобань можна попросити співробітника інтер'єрної компанії Бєлік підібрати відповідні приклади. Стиль лофт в інтер'єрі будинку - це ідеальне рішення для тих, хто цінує комфорт та натуральні матеріали. Для тих, хто прагне мати сучасне житло «з характером», де індустріальний стиль не виглядає холодним, але відображає світогляд в цьому напрямку.
Залежно від власних уподобань можна попросити співробітника інтер'єрної компанії Бєлік підібрати відповідні приклади. Стиль лофт в інтер'єрі будинку - це ідеальне рішення для тих, хто цінує комфорт та натуральні матеріали. Для тих, хто прагне мати сучасне житло «з характером», де індустріальний стиль не виглядає холодним, але відображає світогляд в цьому напрямку.
Стиль лофт в інтер'єрі будинку від дизайн студії Бєлік
Сучасний та персоналізований лофт від компанії інтер'єрів Бєлік є ідеальним прикладом того, як на засадах індустріального стиля можна створити дійсно затишний просторі. Для цього дизайнером інтер'єрів були використані ефективні рішення та цікаві комбінування. Витримано ідею м’якого лофту та відображено основний концепт.
Цей стиль лофт в інтер'єрі будинку показує, як можна вдало поєднати брутальні рішення з домашнім затишком, теплою деревиною та елегантними меблями. Ефекту спокою та комфорту досягнуто завдяки правильній колористиці, плануванню, впровадженню тенденцій сьогодення.
Інтер'єр побудований на поєднанні природних, «землистих» відтінків з контрастними темними акцентами:
- світло-бежева цегла, сірий бетон на стінах та теплий відтінок натурального дерева на підлозі й стельових балках - це база;
- теракотовий та коньячний шкіряний диван, барні стільці та банкетка - це акцентні кольори;
- смарагдово-зелений колір крісел у кабінеті та скляних плафонів над обіднім столом - ще одна акцентна палітра;
- графітовий та чорний використовується в металевих конструкціях, меблевій фурнітурі та побутовій техніці для створення чітких ліній - вони створюють контрасти.
Ця колористика зустрічається в оформленні всього будинку. Переплітаються різні текстури та відтінки, що відображає загальну ідею інтер'єру. Цей будинок мав цікаве планування, яке також дизайнер облаштував на користь.
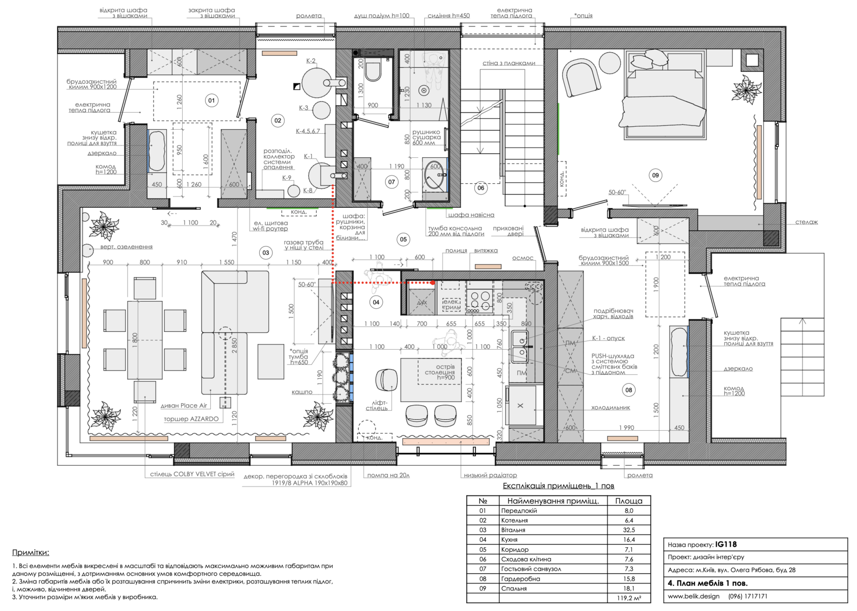
- Кухня з островом виконана окремо. Не було запиту об'єднати кімнату з вітальнею або столовою. В невеликій кімнаті вдалося розмістити кухонний гарнітур та всю необхідну техніку, інвентар. Для зручного приготування їжі, можливості поснідати або спілкуватись в цій кімнаті дизайнером інтер'єрів було прийняте рішення зробити острів. Він виглядає як барна стійка та є максимально корисним рішенням для будинку.
- Кімната загального користування складається з вітальні та столової. Саме тут обидві зони об'єднані в єдиний простір. Межі в приміщенні позначені не стінами, а килимами, освітленням та розташуванням меблів (наприклад, диван розгорнутий спинкою до обідньої зони). Різні освітлювальні сценарії, переходи в оздобленні, фактури або відтінки - все це чітко розподіляє кімнату на зони, роблячи її затишною та візуально цілісною.
- Спальня. Облаштована необхідними меблями для відпочинку та спокійного проведення часу. Було обране велике зручне ліжко, приліжкова тумба та ТВ зона. Зі спальні є вихід у власну гардеробну. Саме в ній розмістили всі системи для зберігання речей, аксесуарів, взуття та інших предметів, які додавали б візуального шуму.
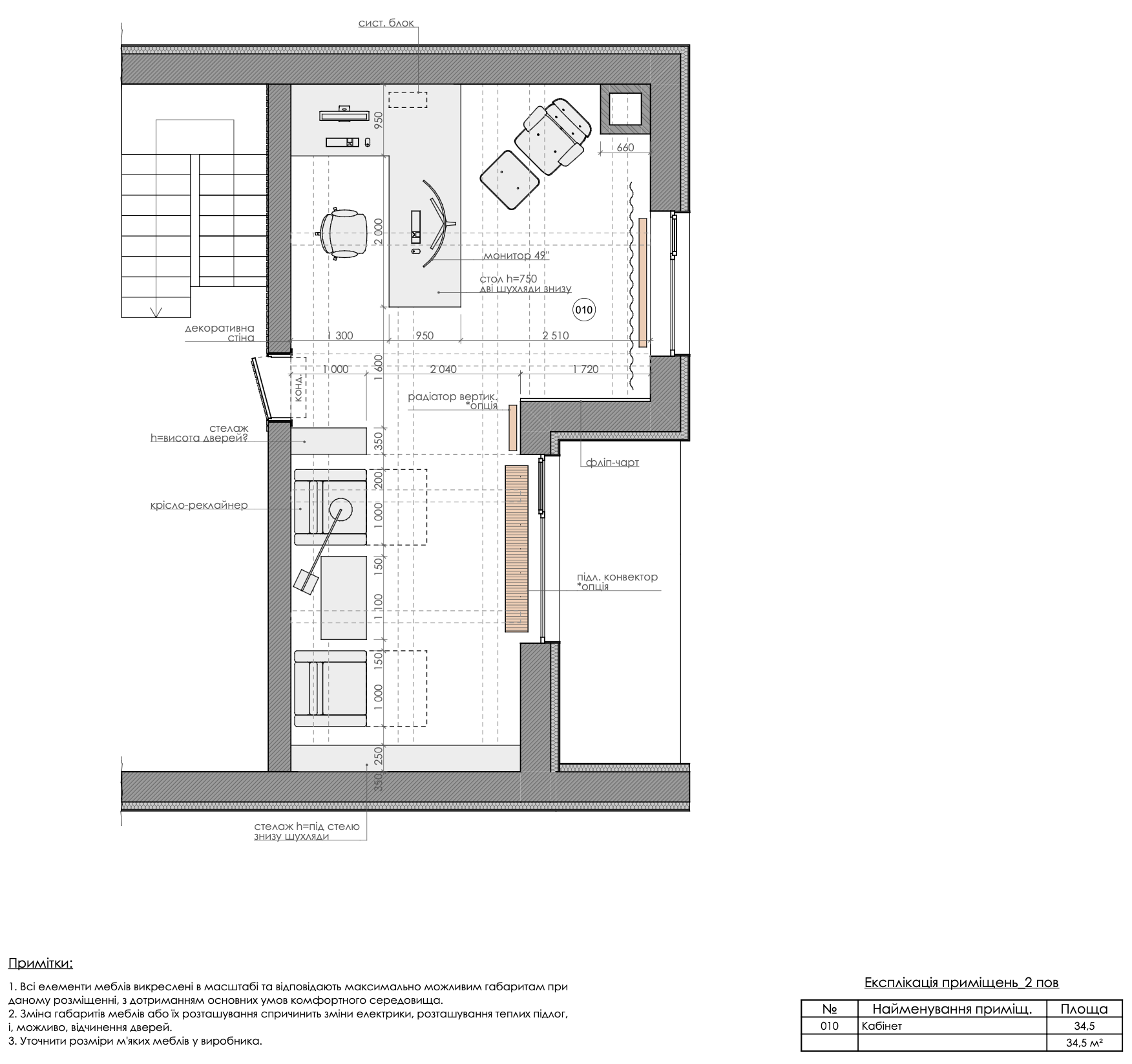
- Кабінет. Розташований в мансардній частині, що створює камерну атмосферу для роботи. Має вдале розміщення меблів, багато світлого простору та цікавих “фішок”.
Цей стиль лофт в інтер'єрі будинку не можна назвати посереднім та схожим на приклади з мережі. Адже він розроблявся детально та з урахуванням всіх запитів замовника. По фото об'єкта можна побачити багато цікавих дизайнерських рішень, які роблять квартиру унікальною та цікавою. Уваги заслуговують такі ідеї дизайнера компанії інтер'єрів Бєлік, як:
- скляні перегородки з підсвічуванням та блоки замість звичайних стін;
- стіна-стелаж із рослинами, підсвічена м'яким зеленим світлом, працює як «жива картина» та додаткове джерело освітлення;
- цікавої форми освітлювальні прилади - торшер-вудка, світильники-кулі та інші схожі дизайнерські елементи в якості акцентів;
- мінімалістичні фасади на кухні - тут вдало поєднано білий верх, дерев’яний низ та чорні матові акценти (побутова техніка, сантехніка, елементи меблів);
- масивні відкриті дерев'яні балки на стелі — класика лофту, що додає приміщенню архітектурної ритміки;
- стіна-маркерна дошка — біла стіна з графіками та записами прямо в інтер'єрі стала ідеальним рішенням для креативної людини;
- стелажі на металевому каркасі;
- дзеркало з контурним підсвічуванням — величезне кругле дзеркало візуально розширює вузький коридор і виглядає дуже футуристично на фоні бетонної стіни.
- приховане зберігання - шафи до стелі в колір стін стають «невидимими», зберігаючи відчуття простору.
Кожна обрана деталь в інтер'єрі цього будинку додає динаміки та «крафтовості», при цьому створюючи комфорт та сучасний простір.
Вартість розробки дизайну інтер'єру на цьому об'єкті (як і на всіх інших) містить в собі всі деталі та елементи, які були додані в оформленні цієї квартири. Також ще на стадії проекту була розчарована приблизна ціна всіх ремонтних робіт, впроваджених інновації, інших процесів.
Звернувшись до інтер'єрної компанії Бєлік ви можете замовити дизайн під ключ, ремонт чи розробку проектної документації. Ціна дизайн проекту квартири Київ є фіксованою. Розробка цього документа не зобов’язує в обов'язковому режимі звертатися до нас задля його реалізації. Це окрема послуга, яка надається клієнтам. Що стосується реалізації? Можна самостійно відтворювати всі рішення з проекта або продовжити співпрацю з нашої компанією, отримавши максимально відповідний ідеям результат.
Вартість розробки дизайну інтер'єру на цьому об'єкті (як і на всіх інших) містить в собі всі деталі та елементи, які були додані в оформленні цієї квартири. Також ще на стадії проекту була розчарована приблизна ціна всіх ремонтних робіт, впроваджених інновації, інших процесів.
Звернувшись до інтер'єрної компанії Бєлік ви можете замовити дизайн під ключ, ремонт чи розробку проектної документації. Ціна дизайн проекту квартири Київ є фіксованою. Розробка цього документа не зобов’язує в обов'язковому режимі звертатися до нас задля його реалізації. Це окрема послуга, яка надається клієнтам. Що стосується реалізації? Можна самостійно відтворювати всі рішення з проекта або продовжити співпрацю з нашої компанією, отримавши максимально відповідний ідеям результат.
Подивіться нашу презентацію