СУЧАСНІ ДИЗАЙНИ КІМНАТ КВАРТИРИ В ЖК НОВИЙ АВТОГРАФ У КИЄВІ
Сучасні дизайни кімнат квартири можуть бути повністю адаптовані під потреби власників житла. Сьогодні існує багато способів зробити квартиру або будинок функціональним, затишним, ергономічним, енергоефективним та персоналізованим. Для досягнення цієї мети варто лише замовити дизайн проект квартири у Києві у професіоналів.
Якщо ви хочете не лише гарні пропозиції з оформлення простору на вашому об’єкті, а прагнете отримати чіткий план з можливістю реалізації ідей на 100%, тоді варто придивитися до інтер'єрних компаній. На відміну від дизайнера інтер'єру, який працює сам, такі студії пропонують повний комплекс послуг. Ви матимете детальний дизайн проект приватного будинку або квартири. Також можете замовити ремонт (реалізацію проєктної документації) та авторський супровід. В студії дизайн інтер'єрів Бєлік надаються всі три типи послуг окремо або в комплексі.
Якщо ви хочете не лише гарні пропозиції з оформлення простору на вашому об’єкті, а прагнете отримати чіткий план з можливістю реалізації ідей на 100%, тоді варто придивитися до інтер'єрних компаній. На відміну від дизайнера інтер'єру, який працює сам, такі студії пропонують повний комплекс послуг. Ви матимете детальний дизайн проект приватного будинку або квартири. Також можете замовити ремонт (реалізацію проєктної документації) та авторський супровід. В студії дизайн інтер'єрів Бєлік надаються всі три типи послуг окремо або в комплексі.
Ми маємо перевірену досвідом команду фахівців, напрацьовану базу партнерів та понад 100 вдалих проектів. Використовуємо індивідуальний підхід. Впроваджуємо ефективні та функціональні рішення, які підлаштовуються під запити та потреби клієнтів. Надаємо гарантії на кожний процес. Дотримуємося узгоджених у договорі термінів та цін.
Найрозповсюдженішим запитом останніх років стали сучасні дизайни кімнат квартири. В нашому портфоліо присутні максимально не схожі між собою приклади об’єктів. Різниця в площі, складності реалізації, колористиці та стилістиці.
Приклад ЖК Новий Автограф заслуговує уваги, якщо ви хочете в себе вдома затишний та спокійний простір. Якщо вам потрібно раціонально використати площу, при наявності певних незручностей в плануванні об'єкта. Родини з дітьми можуть надихнутися варіантами оформлення дитячих та кімнат загального користування.
Найрозповсюдженішим запитом останніх років стали сучасні дизайни кімнат квартири. В нашому портфоліо присутні максимально не схожі між собою приклади об’єктів. Різниця в площі, складності реалізації, колористиці та стилістиці.
Приклад ЖК Новий Автограф заслуговує уваги, якщо ви хочете в себе вдома затишний та спокійний простір. Якщо вам потрібно раціонально використати площу, при наявності певних незручностей в плануванні об'єкта. Родини з дітьми можуть надихнутися варіантами оформлення дитячих та кімнат загального користування.
Розроблений заздалегідь дизайн проект послуга для цього об’єкта дозволила не лише прийняти правильні планувальні рішення. Тут присутньо багато ефективних, сучасних та інноваційних ідей. Поєднання кольорів, фактур та виробів дозволило створити максимально комфортну атмосферу. Сам інтер'єр має максимально затишний вигляд, відображує любов до природи та естетику через простоту.
Квартира ЖК Новий Автограф - затишок та комфорт в одному місці
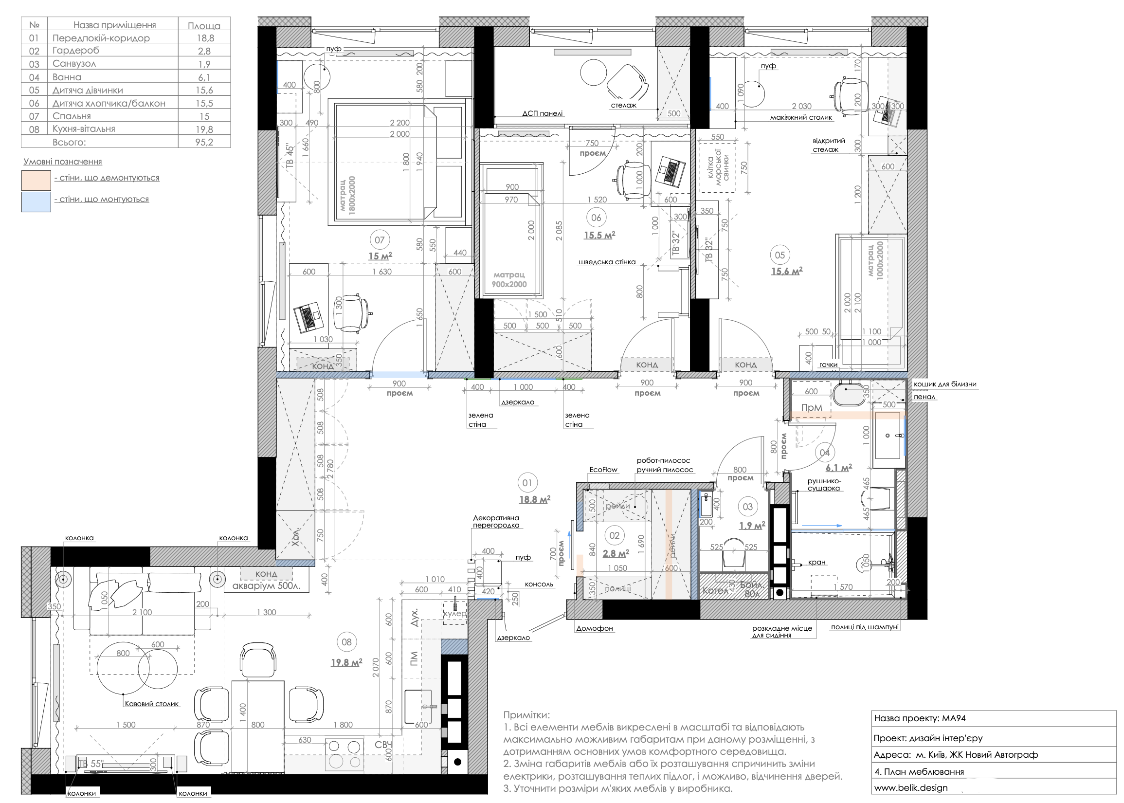
Сучасний дизайн інтер'єру на об’єкті ЖК Новий Автограф не потребував складних архітектурних та технічних рішень. У квартирі не робили масштабне перепланування. З монтажно-демонтажних робіт лише трохи змінили розташування дверей у гардеробній та розширили ванну кімнату, зменшивши одну з дитячих. Весь інший простір лишили таким, який було надано забудовником. Де це було можливо не встановлювали двері та перегородки. В результаті отримали величезний простір загального користування.
На передпокій, коридор та вітальню-кухню припадає понад 30 м2 (при загальній площі приміщення 95 квадратів). В цих кімнатах вдалося розмістити окремо гардеробну із технічними шафами, полицями для зберігання приладдя для прибирання та мийних засобів, інших речей. Також окремо є шафа для зберігання одягу.
З передпокою ви потрапляєте в кожну з житлових кімнат, ванну, гостьовий санвузол. Це досить зручно. Оформлення всього цього простору виконано в однакових кольорах, фактурах, зі схожим декоруванням стін та єдиною меблевою групою. Двері були обрані прихованого монтажу, плінтуси фарбовані. Такий підхід дозволив поєднати всі елементи між собою, на привертаючи уваги на непотрібні дрібниці.
Кухня-вітальня розподілена максимально раціонально. В цьому приміщенні вздовж стіни, кутом розміщено кухонний гарнітур. Ця меблева група робилася під замовлення. Вона має всі необхідні полиці та шафи для зберігання, меблі під вбудовану техніку. Також частиною гарнітура виступає пенал-сервант для посуду зі скляними дверцятами. Обідній стіл полотно прилягає до серванту, створюючи ефект єдиної конструкції. Цей хід заощадив місце в приміщенні.
Кухня-вітальня розподілена максимально раціонально. В цьому приміщенні вздовж стіни, кутом розміщено кухонний гарнітур. Ця меблева група робилася під замовлення. Вона має всі необхідні полиці та шафи для зберігання, меблі під вбудовану техніку. Також частиною гарнітура виступає пенал-сервант для посуду зі скляними дверцятами. Обідній стіл полотно прилягає до серванту, створюючи ефект єдиної конструкції. Цей хід заощадив місце в приміщенні.
За обіднім столом починається зона вітальні. Вона мебльована всіма необхідними елементами. Це ТВ та полиця під ним, колонки, диван навпроти, журнальний столик, акваріум (на прохання клієнта).
Колористика кожного елемента - це базові монохромні палітри. Зустрічаються багато дерев’яних фактур, сірого, бежевого та молочного відтінків. На прохання замовника була зроблена окремо жива стіна з рослин. По всій квартирі присутні горщики та вазони з живими квітами. У поєднанні з базовими кольорами та дерев'яними фактурами вони створюють особливий затишок, ефект єднання з природою.
Колористика кожного елемента - це базові монохромні палітри. Зустрічаються багато дерев’яних фактур, сірого, бежевого та молочного відтінків. На прохання замовника була зроблена окремо жива стіна з рослин. По всій квартирі присутні горщики та вазони з живими квітами. У поєднанні з базовими кольорами та дерев'яними фактурами вони створюють особливий затишок, ефект єднання з природою.
Замість великих дерев’яних панелей для декорування, в квартирі ЖК Новий Автограф використали вертикальні рейки по периметру стіни в вітальні. Також вертикальні рейки стали розділовим елементом між передпокоєм та зоною кімнату-студію. Це додало естетики та місця для зберігання, не вкравши при цьому простору.
Ще одне цікаве рішення в зоні кухні - використання однакової компакт плити на робочий поверхнi та кухонному фартуку. Немає різкого переходу. Мийка та варильна поверхня вбудовані в плиту, тобто вона накриває ці елементи.
Дерев’яні фактури активно використані не лише у кімнатах загального користування. Оздоблення підлоги та декорування стін, вибір меблів з тими самим фактурами - все це є частиною загальної концепції.
Ще одне цікаве рішення в зоні кухні - використання однакової компакт плити на робочий поверхнi та кухонному фартуку. Немає різкого переходу. Мийка та варильна поверхня вбудовані в плиту, тобто вона накриває ці елементи.
Дерев’яні фактури активно використані не лише у кімнатах загального користування. Оздоблення підлоги та декорування стін, вибір меблів з тими самим фактурами - все це є частиною загальної концепції.
Житлові кімнати проектувалися з урахуванням індивідуальних побажань власників. Спальня виконувалася в сіро-бежевих тонах. Меблювалася шафою, приліжковими тумбами, комодом, косметичним столиком, великим м'яким ліжком.
Дитячі оформлювалися для двох різних дітей, у яких власні інтереси, смаки, вік, стать. Перша, для хлопця-підлітка. Використані блакитно-сірі кольори. Є місце для навчання, ігор, розвитку та занять спортом (шведська стінка).
Друга - для дівчинки. Виконана в спокійних гірчично-бежевих тонах, з додаванням помаранчевих візерунків на стінах. Було зроблено вдосталь місця для зберігання речей та іграшок, куточки для ігор, косметичний столик із дзеркалом, місце для навчання та відпочинку.
Дитячі оформлювалися для двох різних дітей, у яких власні інтереси, смаки, вік, стать. Перша, для хлопця-підлітка. Використані блакитно-сірі кольори. Є місце для навчання, ігор, розвитку та занять спортом (шведська стінка).
Друга - для дівчинки. Виконана в спокійних гірчично-бежевих тонах, з додаванням помаранчевих візерунків на стінах. Було зроблено вдосталь місця для зберігання речей та іграшок, куточки для ігор, косметичний столик із дзеркалом, місце для навчання та відпочинку.
В загальному вигляді цей об’єкт цілком підходить під визначення сучасні дизайни кімнат квартири. Адже тут використані ефективні рішення, які позитивно впливають на функціональність та зручність інтер'єра. Мають естетичний та оптимальний вигляд. Характеризується логічністю та зручністю.
Якщо вас цікавить ціна дизайн проекту інтер'єру схожого на цей, варто надати інформацію в інтер'єрну компанію Бєлік про розміри об'єкта. Адже саме від площі залежить вартість розробки документації. Обраний вами стиль або складність робіт ніяк не впливають на те, якою буде дизайн проєкт квартири ціна.
Що стосується бюджету на весь ремонт?
Цю цифру ви можете обговорити з дизайнером інтер'єрної компанії Бєлік та позначити певні межі.
Якщо вас цікавить ціна дизайн проекту інтер'єру схожого на цей, варто надати інформацію в інтер'єрну компанію Бєлік про розміри об'єкта. Адже саме від площі залежить вартість розробки документації. Обраний вами стиль або складність робіт ніяк не впливають на те, якою буде дизайн проєкт квартири ціна.
Що стосується бюджету на весь ремонт?
Цю цифру ви можете обговорити з дизайнером інтер'єрної компанії Бєлік та позначити певні межі.
Подивіться нашу презентацію