СТИЛЬ МІНІМАЛІЗМ В ІНТЕР’ЄРІ КВАРТИРИ В ЖК НОВА АНГЛІЯ У КИЄВІ
Мінімалізм - це стиль в дизайні інтер'єрів який не обов’язково використовують для збереження простору. На старті свого розквіту саме мінімалізм рятував при нестачі місця.
Він дозволяє прибрати всі непотрібні рішення забудовників, максимально використати кожний см2 та уникнути будь-якого візуального шуму. Проживати тривалий час у мінімалізмі в чистому вигляді майже неможливо. Адже атмосфера всередині нагадує пустуючу кімнату, де все стерильно та надто консервативного.
Саме тому, плануючи стиль мінімалізм в інтер'єрі квартири, в компанії Бєлік дизайнери вдало комбінують його з іншими направленнями. За основу беруться головні засади в плануванні, використанні простору, виборі кольорів та фактур, комбінуванні елементів між собою та впровадженні інновацій. Затишку та комфорту досягається завдяки додаванню цікавого декору та текстилю, впровадженню оригінальних рішень в оздобленні кімнат тощо.
Він дозволяє прибрати всі непотрібні рішення забудовників, максимально використати кожний см2 та уникнути будь-якого візуального шуму. Проживати тривалий час у мінімалізмі в чистому вигляді майже неможливо. Адже атмосфера всередині нагадує пустуючу кімнату, де все стерильно та надто консервативного.
Саме тому, плануючи стиль мінімалізм в інтер'єрі квартири, в компанії Бєлік дизайнери вдало комбінують його з іншими направленнями. За основу беруться головні засади в плануванні, використанні простору, виборі кольорів та фактур, комбінуванні елементів між собою та впровадженні інновацій. Затишку та комфорту досягається завдяки додаванню цікавого декору та текстилю, впровадженню оригінальних рішень в оздобленні кімнат тощо.
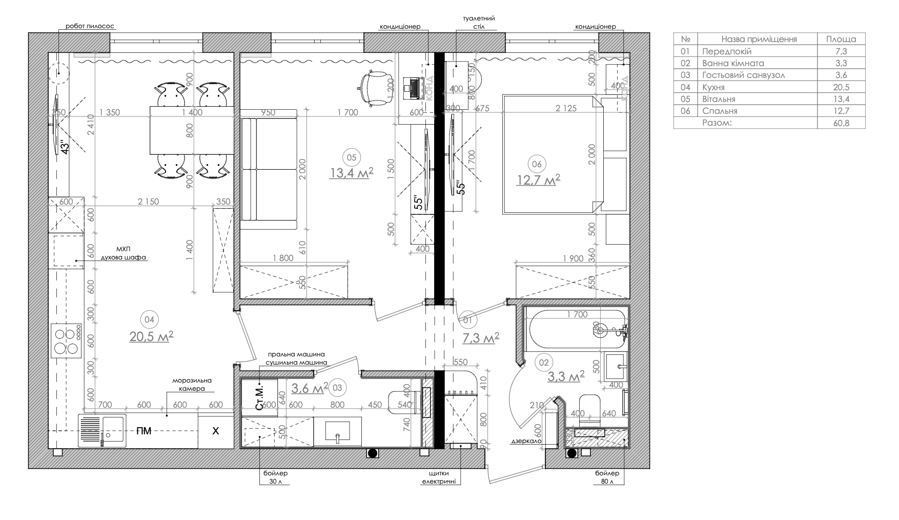
Інтер'єрна компанія Бєлік має понад 100 прикладів розробки дизайн проектів для квартир. У більшості з них можна побачити рішення з мінімалізму у різних його проявленнях. Особливо актуальним став стиль мінімалізм в інтер'єрі квартири новобудов. Адже ці об’єкти здаються з вільним плануванням та характеризуються обмеженим простором. Часто на 60 м2 потрібно створити інтер'єр та лишити вдосталь місця для:
- молодят, які тільки починають самостійне життя;
- родини з дітьми;
- замовників з домашніми улюбленцями;
- творчих людей, для яких важливий затишок та місце для занять хобі;
- фрілансерів, яким потрібно працювати з дому.
Всі ці аспекти обов'язково враховуються під час розробки дизайн проекту. Також до уваги береться бюджет, який замовник готов витратити на ремонт. В мінімалізмі присутньо багато ефективних рішень, які не вартують всіх грошей світу. При цьому, саме оптимальні планувальні та технічні заходи дозволяють оптимізувати простір, уникнути більшості помилок під час ремонту та досягти функціональності дизайну.
Впевнитися, що стиль мінімалізм в інтер'єрі квартири може виглядати органічно та сучасно можна на прикладі ЖК Нова Англія. Пустуючі стіни дизайнеру інтер’єрної компанії Бєлік вдалося перетворити в зручну оселю, яка покращує рівень життя власників та дарує відчуття комфорту.
Впевнитися, що стиль мінімалізм в інтер'єрі квартири може виглядати органічно та сучасно можна на прикладі ЖК Нова Англія. Пустуючі стіни дизайнеру інтер’єрної компанії Бєлік вдалося перетворити в зручну оселю, яка покращує рівень життя власників та дарує відчуття комфорту.
Мінімалізм у квартирі ЖК Нова Англія та його особливості
Кухня
Головними засадами мінімалізму вважається відсутність візуального шуму. Саме тому, на цьому об'єкті було прийнято відмовитися від меблів з ручками, різьбленням, яскравими фасадами та помітними переходами. Кухонний гарнітур має однотонну матову колористику. Зроблений під замовлення та вздовж всієї стіни, він створює ефект цілісності простру. Дверцята відчиняються за допомогою врізних ручок або автоматичних механізмів (від натискання).
Фасади кухні в квартирі оформлені в чорному та білому матових кольорах. Вся техніка вбудована. Інвентар та посуд приховані за фасадами. Всередині зроблені полиці та ящики різних розмірів, що дозволяє максимально раціонально використати простір.
Меблі виготовлялися під замовлення, що призвело до ідеального їх прилягання до стіни, стелі. Перехід непомітний. Також відсутні щілини та порожнини, які лише збирають бруд. Завдяки тому, що гарнітур замовляли у виробника, вдалося додати однакові фактури у меблі по всій квартирі. Можна побачити шафу в зоні столової або коридорі з тих самих матеріалів.
Стиль мінімалізм в інтер'єрі квартири часто має вільне планування та об'єднані кімнати студії. На об'єкті ЖК Нова Англія був чіткий запит, щоб вітальня та житлова кімната були зроблені окремо. Тому кухня тут доволі простора та об'єднана виключно із зоною столової. Одна стіна - це робочий функціонал для приготування їжі. Інша - зручний стіл та м'які дизайнерські стільці.
Стиль мінімалізм в інтер'єрі квартири часто має вільне планування та об'єднані кімнати студії. На об'єкті ЖК Нова Англія був чіткий запит, щоб вітальня та житлова кімната були зроблені окремо. Тому кухня тут доволі простора та об'єднана виключно із зоною столової. Одна стіна - це робочий функціонал для приготування їжі. Інша - зручний стіл та м'які дизайнерські стільці.
Фактури чорного та білого на кухні вдалося розвести кріслами акцентного смарагдового кольору, дерев'яними фактурами панелей на стінах, оригінальними стельовими світильниками. Дерев'яні панелі використані не лише в кухні, але й інших кімнатах квартири. Вони дозволяють вдало приховати всі дроти та інші комунікації, підвести електрику в потрібні місця та гарантують зручність у догляді.
Таке оздоблення достатньо протерти вологою ганчіркою. Воно не піде плямами, не почне осипатися або відклеюватися (як шпалери, фарба). Крім цікавої люстри в зоні столової, дизайнери додали якісне освітлення по всій оселі. Обов’язково присутні трекові системи, світлодіодні стрічки в функціональних зонах (кухонний фартух, всередині шаф), настінні бра тощо.
Таке оздоблення достатньо протерти вологою ганчіркою. Воно не піде плямами, не почне осипатися або відклеюватися (як шпалери, фарба). Крім цікавої люстри в зоні столової, дизайнери додали якісне освітлення по всій оселі. Обов’язково присутні трекові системи, світлодіодні стрічки в функціональних зонах (кухонний фартух, всередині шаф), настінні бра тощо.
Вітальня
Вітальня на об'єкті ЖК Нова Англія виступає також робочим кабінетом та навіть гостьовою кімнатою. Дизайнером інтер'єрів було передбачено всі вимоги для цього приміщення. Тут чітко відстежується стиль мінімалізм в інтер'єрі квартири через раціональне використання простору. Було обрано зручний диван. Створено окрема робоча зона, біля вікна. Встановлені шафи та полиці для зберігання речей, документів, книжок, аксесуарів та інших предметів. Також присутні ТВ зона. Додано багато різнорівневого освітлення.
Як і в інших кімнатах, у вітальні використовувалися чорно-білі кольори. Розвели їх, для створення затишної атмосфери, фактурами дерева, відтінками бежевого та текстильними елементами. Органічно в цьому інтер'єрі виглядають живі рослини в горщиках (присутні майже в кожній кімнаті).
Спальня
Спальня також має оформлену дерев'яними панелями стіну. Саме з цього матеріалу виготовлені приліжкові тумби, що створює гармонійний візуал. Крім просторого ліжка у спальні вдалося розмістити дві шафи-пенали. Вони виступають продовженням стіни та мають такі самі фактури з кольором. Фактури дерева, світла кольористика та предмети текстилю (фіранки, килим, постільна білизна) створюють атмосферу затишку та спокою всередині.
Ванна кімната
Дуже естетично відображено стиль мінімалізм в інтер'єрі квартири, зокрема, в ванній кімнаті ЖК Нова Англія. Переважають у санвузлі світлі мармурові фактури. Обрані широкоформатні плити в оздобленні. Зроблені інсталяції та вбудовані у стіну полиці, меблі. Додані також фактури дерева.
Кожна позиція обиралася дизайнером інтер'єрів Бєлік з каталогів реальних та перевірених досвідом постачальників (виробників). Всі вироби, запропоновані у проєктній документації, характеризуються ідеальними показниками якості, стійкості до вологи та подразнень. Їх реально придбати під час реалізації дизайн проєкта. Вартість також відповідає закладеному на старті бюджету.
Якщо ви є прихильником лаконічності, функціональності та консерватизму - можна сміливо замовляти стиль мінімалізм в інтер'єрі квартири. Дизайнери компанії інтер'єрів Бєлік не лише відтворять головні засади цього направлення, але й створять в середні вашої оселі затишні та комфортні умови. На прикладі ЖК Нова Англія можна впевнитися, що мінімалізм не завжди буває стерильним та пустуючим. Правильний підхід дозволяє створити всередині персоналізований та відповідний потребам простір. Завдяки розробці дизайн проекту можна впевнитися в цьому на старті, скоригувати витрати на ремонт та отримати інтер'єр мрії.
Подивіться нашу презентацію