ДИЗАЙН КВАРТИРИ МІНІМАЛІЗМ В ЖК PARADISE AVENUE У КИЄВІ
Облаштувати двоповерхову квартиру на 100 м2 для всієї родини цілком реально на сьогодні. Для цього не потрібно мати всі гроші світу, виконувати складні архітектурні роботи та чекати кілька років на бажаний результат. Щоб зробити дизайнерський ремонт у приватному будинку чи квартирі комфортним, сучасним, візуально гармонійним та максимально зручним треба довірити весь процес професіоналам.
Саме кваліфіковані фахівці можуть розробити детальний дизайн проект квартир. В цьому документі не лише будуть запропоновані ефективні та гарні візуальні рішення. Через проєктну документацію вам покажуть шлях досягнення результату. Тобто покроковість дій з боку ремонтно-будівельної бригади, які приведуть до інтер'єру мрії. Саме такий результат, який було зображено на фотореалістичних 3Д візуалізаціях.
Саме кваліфіковані фахівці можуть розробити детальний дизайн проект квартир. В цьому документі не лише будуть запропоновані ефективні та гарні візуальні рішення. Через проєктну документацію вам покажуть шлях досягнення результату. Тобто покроковість дій з боку ремонтно-будівельної бригади, які приведуть до інтер'єру мрії. Саме такий результат, який було зображено на фотореалістичних 3Д візуалізаціях.
Студія дизайну інтер'єру Бєлік - це компанія, як на професійному рівні понад 10 років займається дизайном нерухомості. Серед наших прикладів ви знайдете дизайн квартири мінімалізм, лофт, артдеко, неокласика та інші. Кожний наш об'єкт - це осучаснений та підлаштований під потреби замовників простір. Той що відображає особистість мешканців та робить їх життя комфортнішим. В наших дизайнах візуально приємно знаходитися тривалий час, зручно працювати, легко ростити дітей та ідеально приймати гостей. Кожне рішення помірковане до дрібниць, що робить простір оптимальним на тривалий час.
Клієнт обирає для себе певні стилістичні направлення, колористику, типи меблів, варіанти планування. Наші фахівці можуть показати приклади об'єктів, які відповідають стартовим запитам та потребам замовника. Якщо ви цінуєте порядок, простір та тихий візуальний комфорт, то дизайн квартири мінімалізм в ЖК Paradise Avenue ідеально підійде в якості приклада. Тут впроваджені ефективні рішення в плануванні та дизайні, досягнута гармонія в об'єднанні всіх елементів, відображено певний концепт та присутній максимальний комфорт.
Клієнт обирає для себе певні стилістичні направлення, колористику, типи меблів, варіанти планування. Наші фахівці можуть показати приклади об'єктів, які відповідають стартовим запитам та потребам замовника. Якщо ви цінуєте порядок, простір та тихий візуальний комфорт, то дизайн квартири мінімалізм в ЖК Paradise Avenue ідеально підійде в якості приклада. Тут впроваджені ефективні рішення в плануванні та дизайні, досягнута гармонія в об'єднанні всіх елементів, відображено певний концепт та присутній максимальний комфорт.
Планувальні та стилістичні рішення в оформленні об'єкта ЖК Paradise Avenue
Запорукою успіху будь-якого простору є правильно прийняті планувальні рішення. Навіть велика площа може стати не зручною, захаращеною та дратівною при невдалих дизайнерських ідеях. Якщо мова йде про малі об'єкти, тут взагалі важливо використати кожний м2 по максимуму.
Квартира в ЖК Paradise Avenue мала вартість дизайну інтер'єру будинків, через відповідну площу (майже 100 м2). Сума видатків на весь ремонт, при зверненні в інтер'єрну агенцію Бєлік зазначається клієнтом заздалегідь. Кошторис приблизних витрат має певні межі, на які дизайнері інтер'єрів орієнтується під час розробки проекта (прийняття архітектурних, технічних та дизайнерських рішень, вибір певних матеріалів тощо).
Дизайн квартири мінімалізм в ЖК Paradise Avenueм виглядає цілісним завдяки повторюваним матеріалам і спільній колірній палітрі. В кожній з кімнат зустрічаються ти ж самі декоративні рішення, оздоблення, освітлювальні прилади, кольори, фактури, дизайнерські “фішки”. Були обрані базові кольори (антрацитовий, теплий сірий, відтінки натурального дуба). Акцентними стали глибокий коричневий та теракотовий. У дитячий ніжний рожевий (попіл троянди). Також дизайнер інтер’єрів додав контрастів, використовуючи чорні лінійні елементи (світильники, рами перегородок) на фоні світлих стін.
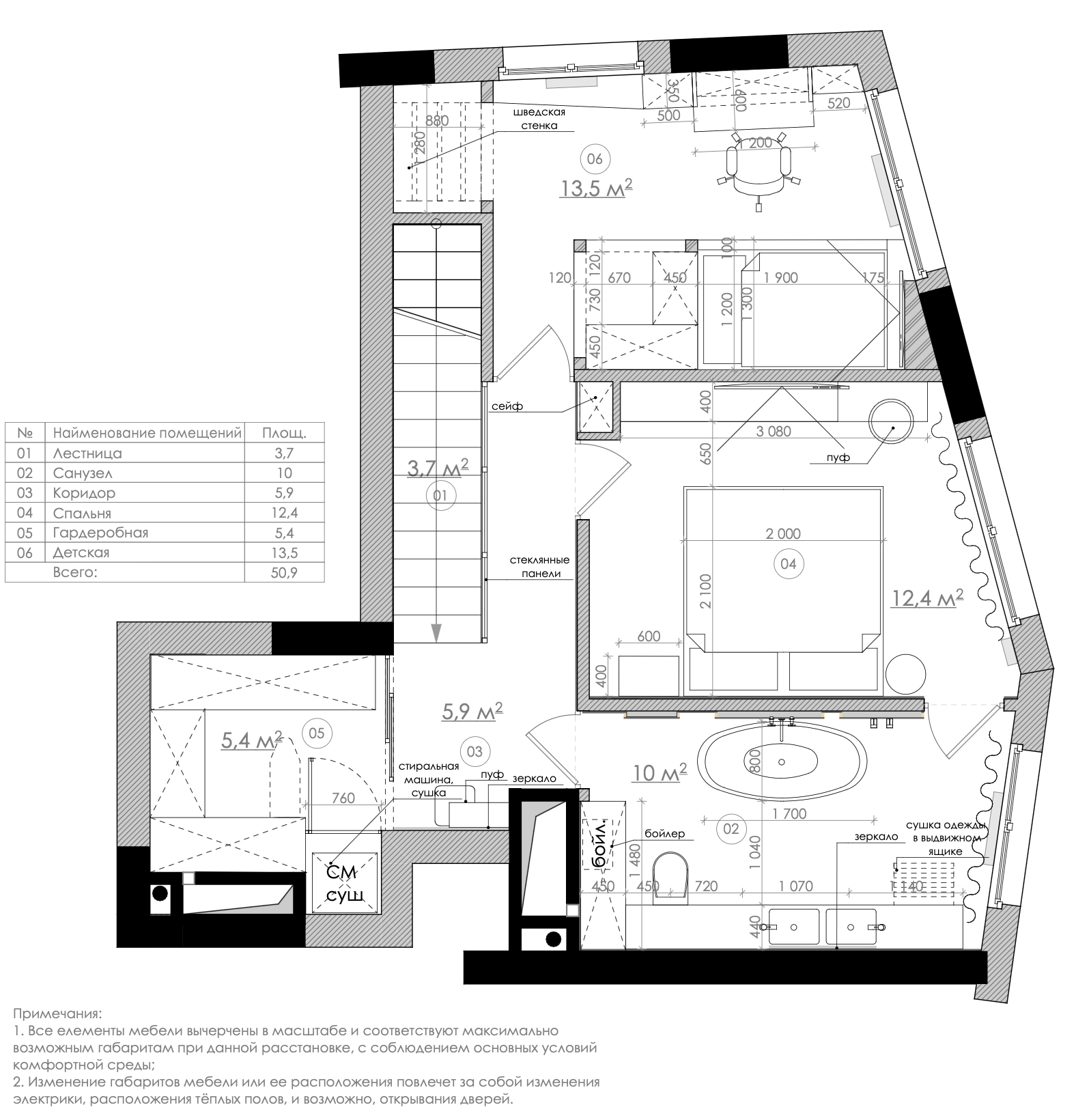
Був запит клієнта на дизайн квартири мінімалізм, тому велику увагу приділили плануванню. ЖК Paradise Avenue має чіткий розподіл на зони:
Був запит клієнта на дизайн квартири мінімалізм, тому велику увагу приділили плануванню. ЖК Paradise Avenue має чіткий розподіл на зони:
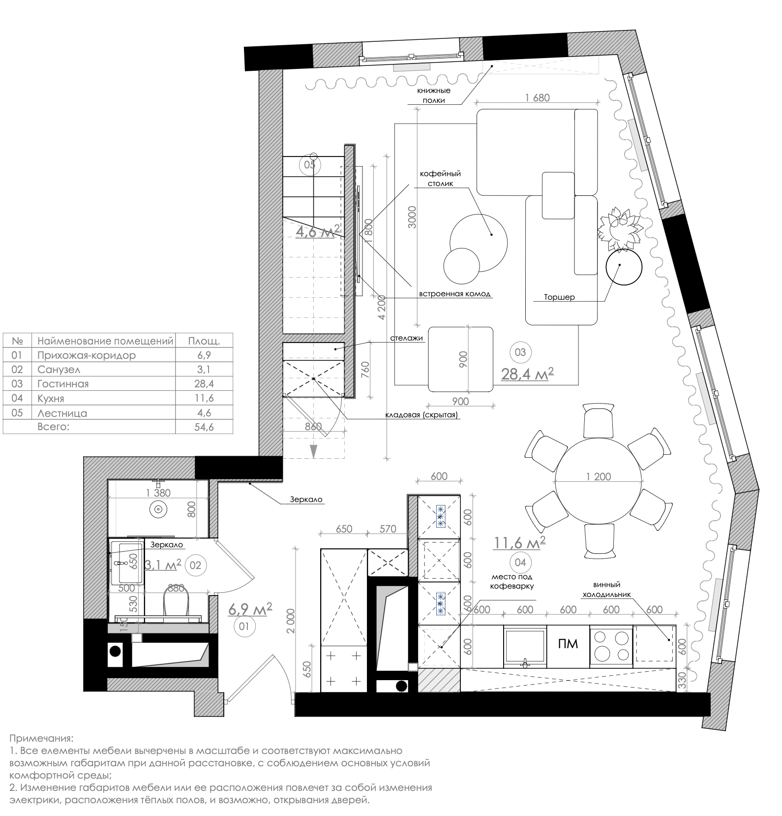
- Оpen Space (Кухня-вітальня), передпокій, гостьовий санвузол - на першому поверсі;
- приватна (спальня, дитяча, гардеробна, ванна) - на другому.
Кухня-вітальня
Оpen Space (Кухня-вітальня) — це об'єднана зона для спілкування. Простір в кімнаті загального користування не просто обставлений меблями, він сформований ними. Головна ідея — приховати побутові процеси та створити ідеальне місце для відпочинку.
Кухня інтегрована в стіну та має приховані фасади. Вона не виглядає як робоча зона, а більше нагадує декоративну стіну. Використано два контрастні типи оздоблення. Високі колони (де сховано холодильник, духовку та системи зберігання) мають темно-сірий колір. Робоча зона (фартух і нижні модулі) виконана у світлих тонах, що додає глибини.
Матові поверхні мають покриття Anti-fingerprint (на якому не залишаються відбитки пальців). Фартух і стільниця зроблені з плит, що імітують натуральний камінь. Відсутні ручки, що створює чистоту ліній. Всі шафи відчиняються за допомогою сучасних вбудованих систем. Кожне прийняте рішення в зоні кухні робить її частиною архітектури, а не просто робочим місцем.
Обідня зона з круглим столом є центром композиції. Це перехідний місток між кухнею та вітальнею. Стіл обрали круглої форми на масивній центральній опорі. Таке рішення візуально «розмиває» кути та полегшує трафік між зонами. Стільці мають м’яку оббивку коричневого кольору та легкий вінтажний ефект. Обертова основа стільців додає комфорту, тому що дозволяє легко повернутися в потрібну сторону.
Саме над обіднім столом зробили акценту люстру. Каскад скляних світильників-куль різного розміру та відтінків (димчастий, коньячний) створює затишний «острів» світла над цією зоною.
Вітальня повністю виконує свою функцію. Вона налаштовує на відпочинок та відображає максимальний комфорт. Побудована ця частина приміщення на грі горизонтальних ліній та м'яких текстур.
Модульний, низький диван має великі розміри. Також присутній пуф у ідентичній оббивці. Він здатний вмістити велику кількість людей. Телевізор розміщений на панелі з дерева навпроти. Під ним — довга підвісна консоль чорного кольору, яка «левітує» над підлогою.
Саме над обіднім столом зробили акценту люстру. Каскад скляних світильників-куль різного розміру та відтінків (димчастий, коньячний) створює затишний «острів» світла над цією зоною.
Вітальня повністю виконує свою функцію. Вона налаштовує на відпочинок та відображає максимальний комфорт. Побудована ця частина приміщення на грі горизонтальних ліній та м'яких текстур.
Модульний, низький диван має великі розміри. Також присутній пуф у ідентичній оббивці. Він здатний вмістити велику кількість людей. Телевізор розміщений на панелі з дерева навпроти. Під ним — довга підвісна консоль чорного кольору, яка «левітує» над підлогою.
Санвузол
Санвузол має практичні та зручні рішення. В ньому зробили душ Walk-in shower (без піддона) зі скляною перегородкою. Використання Smart Glass (розумного скла), яке стає матовим одним натисканням кнопки — ідеально для приватності без втрати світла. Присутні інсталяції та вбудовані меблі, в яких знаходяться всі необхідні доглядові засоби, рушники, інші предмети гігієни. Маленький простір цього приміщення використано по-максимуму.
Спальня
Спальня облаштована у відповідній колористиці та стилістиці. Всередині розмістили необхідні меблі, а саме:
- велике ліжко;
- косметичний столик із дзеркалом;
- ТВ-зону на стіні навпроти ліжка;
- приліжкову тумбу.
В цій кімнаті немає великих шаф та непотрібних елементів. Затишку досягли завдяки використанню декорування в оздобленні, комбінуванню текстур та впровадженню різних сценаріїв освітлення.
Ванна кімната
Спальня має власний вихід у ванну кімнату. Вона стала місцем для перезавантаження. Було використано керамограніт великого формату (мінімум швів). Основна фішка — дзеркала асиметричної форми з м'яким контурним підсвічуванням. Це хід візуально «ламає» строгу геометрію і додає природності. Чорні матові або графітові змішувачі прихованого монтажу - це максимально зручно та естетично. Раковина накладна, з імітацією натурального каменю. А головна принада - це ванна овальної форми.
Дитяча
Дитяча тут є цікавою принадою. Вона є ідеальним прикладом того, як поєднати безпосередність із загальною естетикою мінімалізму будинку. Дизайнер використав тут архітектурні форми та арки. Арки зустрічаються в оформленні :
- входу до гардеробної зони;
- ніші для робочого столу.
- формі м'якого узголів’я ліжка.
Заокруглені форми роблять інтер'єр безпечнішим (менше гострих кутів) і психологічно комфортнішим. Також вони виступають цікавим декоративним елементом, не крадучи простору.
В оздобленні були обрані м’які стінові панелі за ліжком. Вони виглядають як декор й виконують функцію додаткової тепло- та звукоізоляції. Шафи та стелажі вмонтовані в стіни. Це створює ефект «невидимих меблів» і залишає більше місця для ігор. Цікавою фішкою цього об'єкта стала стіна для скелелазіння в ніші дитячої. Це окремий закуток для занять спортом та активних ігор, який сприяє розвитку дитини.
Технічні зони
В квартирі присутні окремі гардеробні та пральна зони. Такий хід суттєво розвантажив основний простір від побутового візуального шуму. Дозволив приховати всі речі, техніку та інвентар для прибирання за дверима. Допоміг уникнути великих шаф по всій квартирі.
Ціна дизайн проекту Київ в такому або будь-якому іншому стилістичному форматі при зверненні в студію інтер'єрів Бєлік буде фіксованою. Вона залежатиме лише від площі об’єкта. Що стосується самого дизайну? Ви зможете скоригувати бюджет на ремонт та дизайн. Вислухати пропозиції дизайнера, які відповідатимуть вашим запитам та допомагатимуть відтворити інтер'єр мрії без зайвого клопоту.
Подивіться нашу презентацію